The UK's Largest Customer Review Website for the Property Industry
The UK's Largest Customer Review Website for the Property Industry
Back to Property Listings
Harefield Road, North Uxbridge
This traditional three-bedroom home offers well-proportioned interiors and is ideally located just moments from Uxbridge town centre, with highly regarded primary and secondary schools also within close proximity.
Description - Situated in a sought after location this attractive property provides light filled living space a very attractive rear garden, and ample off street parking.
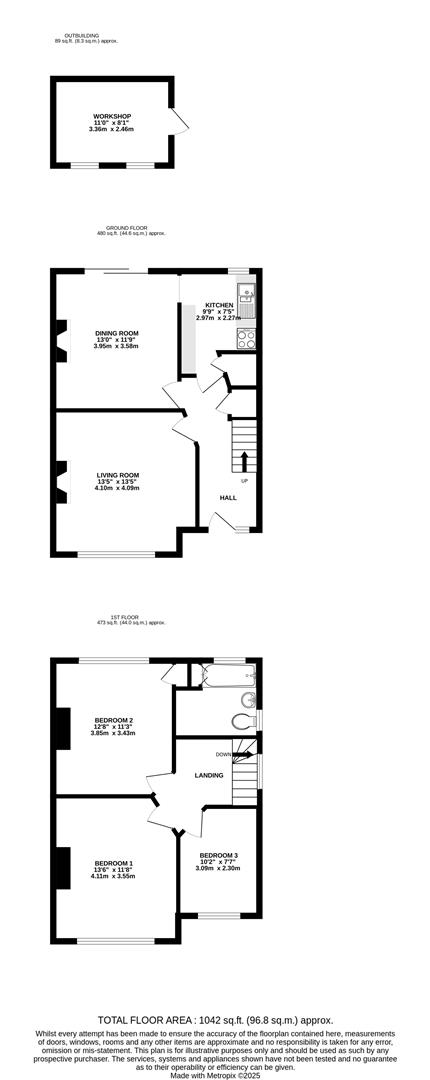
Accommodation - The accommodation briefly comprises an entrance hall with stairs to the first floor and useful under-stairs storage. The front reception room features a front aspect window and a tiled fireplace, while the rear reception room overlooks and opens onto the garden, also enjoying a feature fireplace. The kitchen is fitted with a range of storage units and drawers, work surfaces with tiled splashbacks, space for appliances, and a double-glazed door providing access to the rear garden.
To the first floor there are three well proportioned bedrooms and the family bathroom.
Outside - To the rear of the property is a large, well-maintained garden featuring a variety of mature shrubs and trees. A timber shed provides ample storage and benefits from power and lighting. Off-street parking is also available at the rear, accessed via a private service road. To the front, there is an attractive garden.
Situation - Positioned in this well regarded location moments from Uxbridge town centre with its multiple shopping facilities, restaurants, bars and Uxbridge station which provides Metropolitan and Piccadilly line services to London. For the motorist the A40 / M40 is a short drive away giving access to London and the M25. Well regarded primary and secondary schools are within close proximity.
Terms And Notification Of Sale - Tenure: Freehold
Local Authority: London Borough of Hillingdon
Council Tax Band: E
EPC Rating: D

This property is marketed by

Cameron Estate Agents - Uxbridge, Uxbridge, UB8
4.8/5 Rating
(1175) reviews
Agent Statistics (Based on 1175 Reviews) :