The UK's Largest Customer Review Website for the Property Industry
The UK's Largest Customer Review Website for the Property Industry
Back to Property Listings
Harcourt Farm Lodge, Kibworth Harcourt, Leicestershire
Situated in a private location and within the Conservation Area of Kibworth Harcourt, this is a superb four bedroom detached barn conversion boasting spacious accommodation over two floors, heated indoor swimming pool and beautiful mature rear gardens.
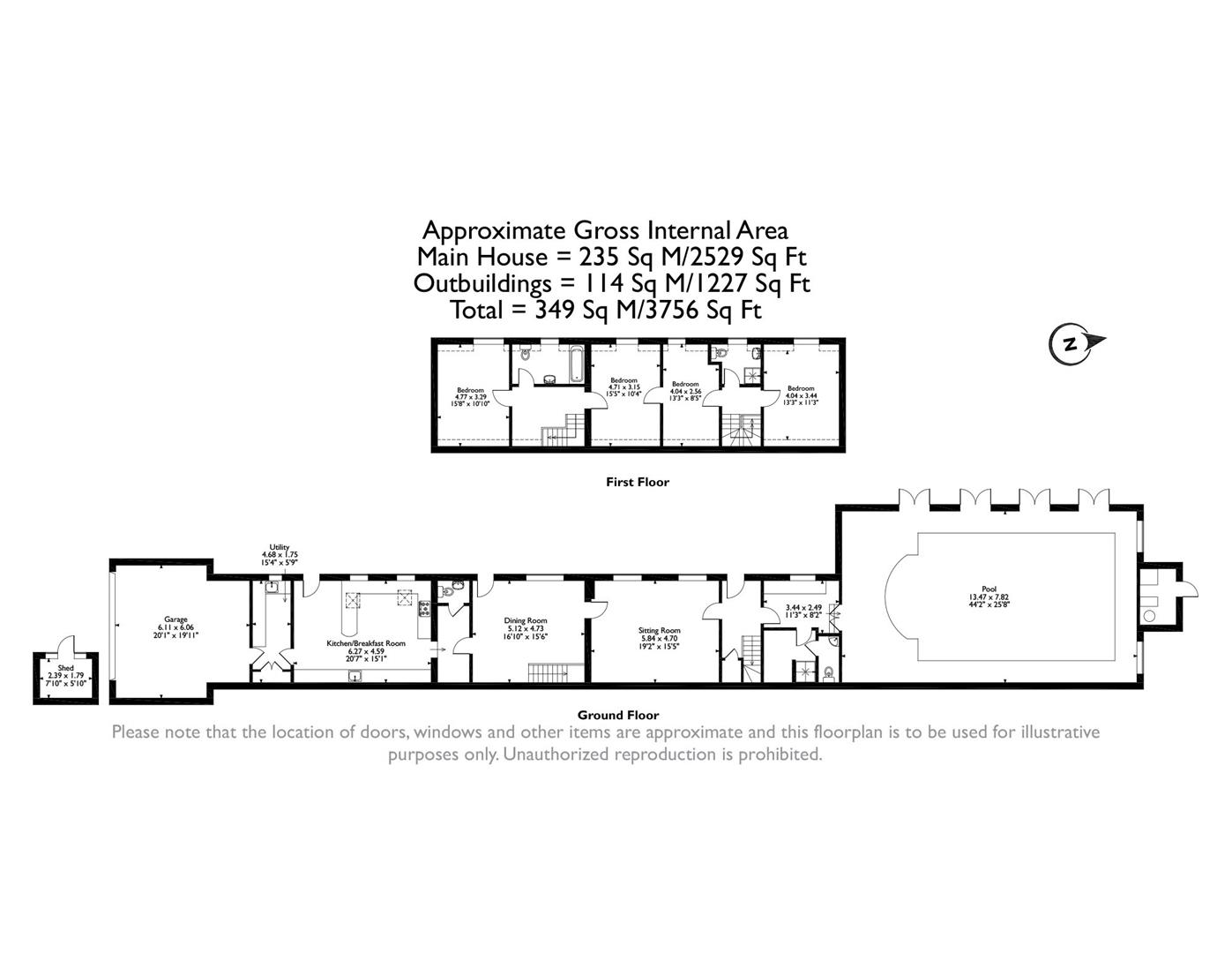
Accommodation - Harcourt Farm Lodge is entered into an entrance hall with stairs rising to the first floor and a handy understairs storage cupboard. A sitting room to the right has two windows to the side elevation and from here the dining room is accessed. This has a door and window to the side elevation, beautiful oak flooring and a second staircase with understairs storage rising to the first floor landing. An inner lobby has oak flooring and access to the cloakroom with a low flush WC, wash hand basin and oak flooring.
A fantastic dining kitchen is light and bright by virtue of a stable door, two windows and further Velux windows to the side elevation. It has a beautiful showstopping vaulted ceiling with original exposed oak trusses. The kitchen offers an excellent range of shaker style eye and base level units and soft closing drawers with granite worktops over. A central island also has a granite worktop and cupboards under. There is a Rangemaster cooker with a tiled splashback and extractor hood over, a granite breakfast bar, display cabinet, Samsung American fridge freezer, microwave with oven under, one and a quarter undermounted sink and granite drainer, plinth feature lighting and solid oak flooring. The utility room has a door to the garage, a window to the side elevation, Worcester wall mounted boiler, eye and base level units and drawers with oak worktops over, stainless steel sink and drainer unit, plumbing for an automatic washing machine, space for fridge, large cloaks cupboard, overhead storage cupboard and oak flooring.
Off the entrance hall is the office space with worktop and window to the side elevation and a further boiler. Off here is a dressing room with shower, low flush WC and wash hand basin, and this gives access to the indoor swimming pool complex.
A return staircase rises to the first-floor landing, bedroom one has a window to the side elevation, landing, shower room off the landing with a window to the side elevation, low flush WC, wash hand basin with cupboard under, shower cubicle, heated chrome towel rail, part tiled walls and floor. Off the landing is a further bedroom with a window to the side elevation. From here is another bedroom with a window to the side elevation. The main landing has exposed beams, off this landing is a bathroom with a window to the side elevation, panelled bath with shower over, wash hand basin with cupboard under, low flush WC, heated chrome towel rail, exposed beams, spotlights, tiled floor, bedroom two has exposed beams, window to the side elevation.
Outside - The property is approached via a shared driveway which leads to a double garage with an electric up and over door. The shared driveway leads to twin electric gates with private block paved driveway for several vehicles with a further block paved pathway leading round to the indoor swimming pool complex, which is of brick construction and attached to the house.
The pool complex with an air heating / cool system has four sets of French doors, two further windows, a fantastic, vaulted ceiling with exposed trusses and a heated fully tiled swimming pool set within a tiled floor. There is a door back to the dressing room and office area.
To the side of the property are planted flower beds, and to the rear are beautiful mature landscaped rear gardens with large patio entertaining areas taking best advantage of the evening sun. Steps lead up to a large lawned garden with fully fenced boundaries.
Location - Kibworth is a thriving village, popular with young families and retired couples alike because of a strong community sprit centred around an excellent range of amenities which includes sporting and recreational facilities and includes cricket, golf, bowls and tennis clubs. There is excellent schooling within the area in both the state and private sector. Shopping is catered for with local shops and delicatessen which caters for all day to day needs. There is also a Dr's surgery and popular public houses and restaurants.
Property Information - Tenure: Freehold
Local Authority: Harborough District Council
Tax Band: G
SERVICES: The property is offered to the market with all mains services and gas-fired central heating.
Satnav Information - The property's postcode is LE8 0NA, and house no. 20.

This property is marketed by

James Sellicks Estate Agents - Market Harborough, Market Harborough, LE16
4.9/5 Rating
(273) reviews
Agent Statistics (Based on 273 Reviews) :