The UK's Largest Customer Review Website for the Property Industry
The UK's Largest Customer Review Website for the Property Industry
Back to Property Listings
Harborne Park Road, Harborne, Birmingham, B17
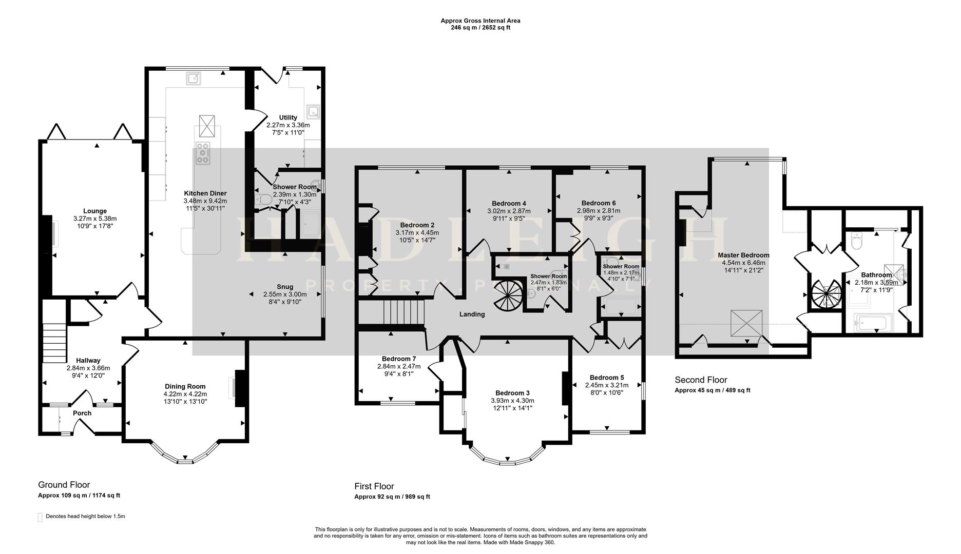
Hadleigh Estate Agents are delighted to offer this substantial semi detached property for sale. The property has been refurbished and extended throughout offering excellent living accommodation. Boasting seven bedrooms and four bathrooms, this fantastic home has been extended to the rear, double storey extension to the side elevation and further benefitting from a spacious loft conversion.
The property comprises of entrance porch and spacious entrance hallway. To the front of the property is a dining room and to the rear a further lounge boasting bi-fold doors. A fantastic sized kitchen diner, with snug area, leading through to a beneficial utility room and downstairs shower room.
The first floor offers a spacious landing leading through to six double bedrooms and two modern shower rooms. A spiral staircase leads up to the second floor boasting a spacious master bedroom and bathroom, complete with freestanding bath. To the rear is a private garden, with sun terrace, and currently incorporating a welcome hot tub. Further adding to this fantastic property is a rear purpose built garden house.
Location - Harborne Park Road is conveniently located for easy access into Harborne High Street, offering an array of bars, award winning restaurants and local supermarkets. A short walk to Queen Elizabeth Hospital and most notably a short walk away from University of Birmingham. Local leisure facilities include Harborne Golf Club, the world renowned Edgbaston Priory and Tennis Club, along with Harborne Leisure Centre. The property is also nearby to Selly Oak retail park offering an abundance of shopping facilities and eateries.
Entrance Porch/ Hallway - Beneficial entrance porch with built in cupboards, secure entry front door and ceiling light point. Spacious hallway with partially glazed door and internal obscure glazed windows, understairs storage, cornices, ceiling light point and central heating radiator.
Dining Room - Spacious dining room with bay window to front elevation, enclosing bespoke fitted shutters. Feature fireplace, coving, ceiling light point and central heating radiator.
Lounge - Fantastic sized lounge benefitting from feature fireplace and bi-fold doors. Coving, ceiling light point and central heating radiator.
Kitchen Diner - Modern fitted kitchen diner, benefitting from being heavily extended to the rear. Allowing for a large breakfast island, with built in cupboards. Ample storage along with integrated appliances and ample worktop space. Boasting a convenient sky light and double glazed windows to the rear elevation, central heating radiator and ceiling spotlights.
Snug - Benefitting from being open plan style living with the kitchen diner, the snug further adds to the sociable family life. With double glazed window to side elevation, ceiling spotlights and central heating radiator.
Utility Room - Housing boiler, worktops and sink unit. Plumbing for appliances and rear garden access. Double glazed window to rear elevation and ceiling spotlights.
Shower Room - Low level flush WC, hand wash basin, towel radiator and shower cubicle. Further offering double glazed window to side elevation and built in cupboards.
Landing - Spacious landing with central heating radiator and ceiling light points. Giving access to six bedrooms and two shower rooms.
Bedroom Two - Large double bedroom with built in wardrobes, window to rear elevation, ceiling light point and central heating radiator.
Bedroom Three - Spacious double bedroom with built in sliding wardrobe. Bay window to front elevation, central heating radiator and ceiling light point.
Shower Room - Modern fitted shower room with walk in mains shower, floating sink and low level flush WC. Tiled flooring and partially tiled walls, towel radiator and ceiling spotlights.
Bedroom Four - Double bedroom offering double glazed window to rear elevation, ceiling light point and central heating radiator.
Bedroom Five - Double bedroom with dual aspect windows, central heating radiator, ceiling light point and built in wardrobe.
Bedroom Six - An additional bedroom with rear elevation window, fitted wardrobe, central heating radiator and ceiling light point.
Shower Room - Low level flush WC, floating hand wash basin, walk in mains shower cubicle. Obscure glazed window to side elevation, towel radiator and ceiling spotlights.
Landing - Spiral staircase leading to the master bedroom and bathroom, with skylight and internal storage cupboards.
Master Bedroom - Substantial master bedroom, benefitting from dormer. Sky light to front elevation and additional windows to rear elevation. Ample storage within the eaves, central heating radiator, ceiling spotlights and further benefitting from air conditioning unit.
Bathroom - Modern bathroom suite, with low level flush WC and vanity unit. Freestanding bath and additional walk in shower. Additional storage within the eaves, ceiling spotlight and sky light.
Garden - Landscaped garden with tiered sun terrace, glass paned balustrades, pergola and hot tub. The garden is predominantly laid to lawn with a mix of hedge and fenced boundaries. To the rear of the garden is a purpose built garden house, offering electrics, lighting and two rooms.
Additional Information - We have been advised the following information, however we advise for you to confirm this with your legal representative as Hadleigh Estate Agents cannot be held accountable.
Tenure - Freehold
EPC - C
Council Tax Band - F

This property is marketed by

Hadleighs Estate Agents & Surveyors - Hadleigh Estate Agents and Surveyors, Birmingham, B17
4.6/5 Rating
(43) reviews
Agent Statistics (Based on 43 Reviews) :