The UK's Largest Customer Review Website for the Property Industry
The UK's Largest Customer Review Website for the Property Industry
Back to Property Listings
HALLMARK FINE HOMES | Shepstye Road, Horbury, Wakefield
*NO CHAIN - VACANT POSSESSION* This beautifully refurbished PERIOD STONE residence combines classic elegance with modern LUXURY, featuring spacious living areas, an AWARD WINNING kitchen, and generous bedrooms with en suites. Set in a peaceful location near Horbury's amenities, it boasts EXTENSIVE GARDENS, automated gates, ample PARKING, and easy access to Wakefield and transport links. VIRTUAL TOUR AVAILABLE. EPC rating D60.
Painstakingly refurbished to a stunning standard, a significant period stone residence thoughtfully and sympathetically updated into the modern era.
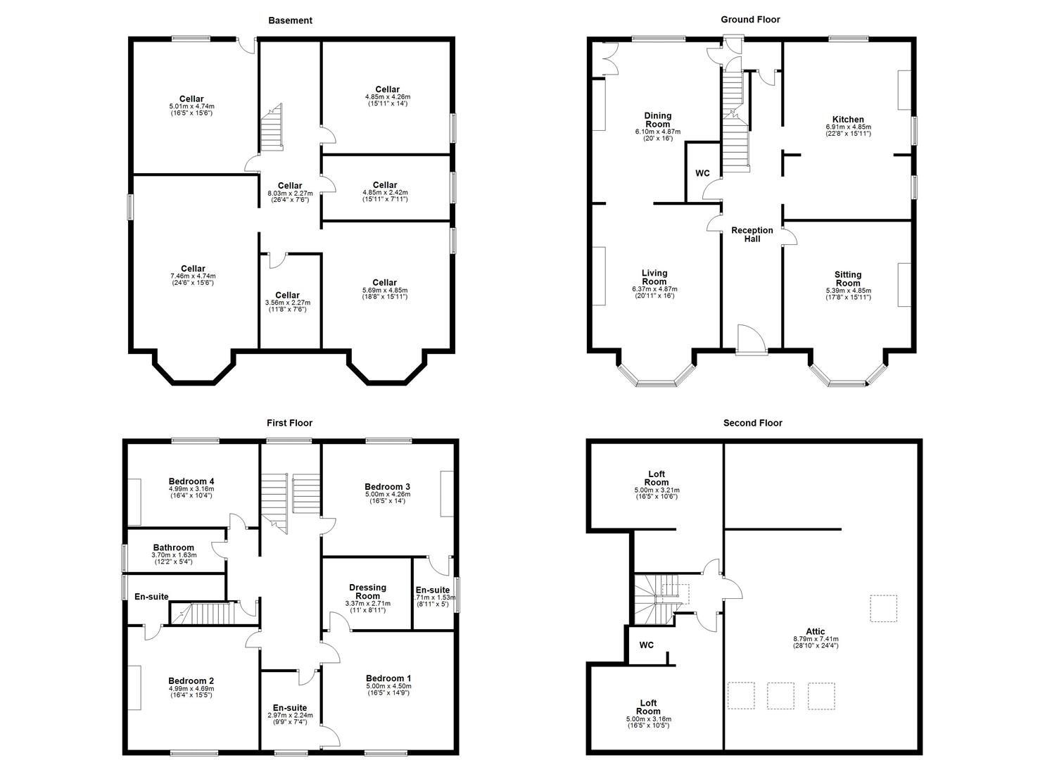
A grand house of excellent proportions, this fine old property has a formal front entrance door leading into a classical central reception hall with a guest cloakroom off to the side and an everyday entrance vestibule to the rear. The principal living room is stylishly finished and has a bay window taking full advantage of the southerly views over the gardens. On the opposite side of the hall is a further more relacing living room again with a bay overlooking the gardens but also having an archway through to the atmospheric dining room. The stunning kitchen has won awards for it's design and finish, centred around a lovely island with bar seating and flanked by a full height wall of bespoke units with a playful sliding library style ladder to reach the hight cupboards. Banquette seating completes this most enviable room. To the first floor the principal bedroom has southerly views over the gardens and leads through into an adjoining dressing room as well as a separate modern en suite. The grandly proportioned second and third bedrooms also have en suite facilities with the large fourth double bedroom situated alongside the family bathroom. A full staircase leads up to the second floor where there is a most spacious, grandly proportioned attic room that is ideal for a multitude of different uses with a large walk in storage area tucked away round the corner. Also on this floor there are two separate characterful loft rooms, one having a washroom alongside. This fine old house makes a statement with it's automated gates leading through into a broad parking/turning area providing ample off street space and leading up to a oversized garage block, suitable for several cherished vehicles. The principal gardens lie to the south side of the house where there is an expansive lawn bounded by well tendered beds and borders.
This gorgeous family home is tucked away in something of a back water position, yet within an easy stroll of the broad range of shops, schools and recreational facilities offered by the centre of Horbury. A more extensive range of amenities are available in the nearby city centre of Wakefield which has it's own mainline railway station and ready access to the national motorway network.
Accommodation -
Reception Hall - 10.5m x 2.2m (34'5" x 7'2") - Panelled front entrance door into the reception hall. Wood stripped flooring, three column central heating radiators, dado panelling, turn staircase to the first floor. Doors to the sitting room, living room and downstairs W.C.. Opening to the kitchen.
Sitting Room - 5.7m x 4.9m (18'8" x 16'0") - UPVC double glazed splay bay window to the front, panelled walls, column central heating radiator, moulded ceiling cornice, picture rail. Feature fireplace with a stone surround, marble hearth and cast iron insert housing a living flame coal affect gas fire.
Living Room - 6.4m x 4.9m (20'11" x 16'0") - UPVC double glazed splay bay window to the front, column central heating radiator, fitted shelving, picture rail, moulded ceiling cornice, feature fireplace with stone surround and tiled interior housing a contemporary style cast iron wood burning stove. Archway to the dining room.
Dining Room - 6.1m x 4.9m (max) (20'0" x 16'0" (max) ) - UPVC double glazed floor window to the cellar, UPVC double glazed window to the rear, column central heating radiator, stone paved floor, feature fireplace. Period fitted cupboards, moulded ceiling cornice.
Guest W.C. - 2.3m x 1.4m (7'6" x 4'7") - Fitted shelving, stone flagged floor. Fitted with a two piece white suite comprising of a wall mounted wash basin and low suite W.C. with concealed cistern.
Kitchen - 6.9m x 4.9m (22'7" x 16'0") - UPVC double glazed window with window seats to the side and rear, full height wall of units with an innovative library style ladder, banquette seating area with matching table. Large centralised island incorporating a inset stainless steel sink unit with instantaneous boiling water tap, twin siemens induction hobs with integrated extraction, twin built in siemens ovens, full height larder style fridge and separate freezer, separate preparation sink, integrated breakfast bar.
Rear Entrance Porch - External door to the rear, doors to the dining room and cellar.
Cellar - 12.47m (max) x 11.86m (40'10" (max) x 38'10") - Full height cellars cover the entire floorplan of this home providing valuable additional storage space with scope for further development if required. The cellars are subdivided into two smaller rooms and four larger rooms, one of which has been converted to a bar and entertainment room.
First Floor Landing - Central landing with a feature stained glass tall window to the rear, column central heating radiator, moulded ceiling cornice. Doors to four bedrooms, the house bathroom, the principal bedrooms en suite and stairs to the second floor landing.
Principal Bedroom - 5.0m x 4.5m (16'4" x 14'9") - UPVC double glazed window to the front, column central heating radiator, picture rail, moulded ceiling cornice, feature former fireplace with wooden surround and a cast iron insert.
Dressing Room - 3.37m x 2.71m (11'0" x 8'10") - Fitted shelving and rails.
En Suite Shower Room - 3.2m x 2.3m (10'5" x 7'6") - UPVC double glazed window to the front, part tiled walls and floor, extractor fan. Fitted to a lovely standard with a three piece suite comprising of a wall mounted W.C. with concealed cistern, vanity wash basin with drawers under and a wet room style shower with glazed screen and twin head shower.
Bedroom Two - 5.0m x 4.7m (16'4" x 15'5") - UPVC double glazed window to the front, column central heating radiator, feature former fireplace with cast iron grate.
En Suite - 3.5m x 1.9m (max) (11'5" x 6'2" (max) ) - UPVC double glazed frosted window to the side, part tiled walls and floor, extractor fan. Fitted with a three piece suite comprising of a low suite W.C. with concealed cistern, wash basin and shower cubicle with overhead rain fall style shower and body jets.
Bedroom Three - 5.0m x 4.3m (16'4" x 14'1") - UPVC double glazed window to the rear, moulded ceiling cornice, exposed brick chimney breast with former fireplace, column central heating radiator.
En Suite - 2.7m x 1.5m (8'10" x 4'11") - UPVC double glazed frosted window to the side, vertical contemporary style central heating radiator, extractor fan. Fitted with a three piece suite comprising of a low suite W.C. with concealed cistern, wall mounted wash basin and shower cubicle with glazed screen and twin head shower.
Bedroom Four - 5.0m x 3.2m (16'4" x 10'5") - UPVC double glazed window to the rear, column central heating radiator, exposed brick chimney breast with former grate for an open fire, corner wash basin.
House Bathroom - 3.7m x 1.6m (12'1" x 5'2") - UPVC double glazed part frosted window to the side, part tiled walls, mosaic style tiled floor, column central heating radiator, extractor fan. Fitted with a lovely three piece suite comprising of a freestanding bath with shower over, pedestal wash basin and low suite W.C. with concealed cistern.
Second Floor Landing - Doors to the attic room and two loft rooms. One of the loft rooms benefits from a wash room.
Attic Room - 8.8m x 7.4m (max) (28'10" x 24'3" (max)) - Sloping ceilings incorporating four Velux style roof lights and exposed beams. This large space has potential to be used for a multitude of different opportunities, has vertical style central heating radiators and a step through into a concealed storage area which houses the central heating boiler.
Council Tax Band - The council tax band for this property is G.
Floor Plans - These floor plans are intended as a rough guide only and are not to be intended as an exact representation and should not be scaled. We cannot confirm the accuracy of the measurements or details of these floor plans.
Epc Rating - To view the full Energy Performance Certificate please call into one of our local offices.
Viewings - To view please contact our Ossett office and they will be pleased to arrange a suitable appointment.

This property is marketed by

Richard Kendall Estate Agent - Hallmark from Richard Kendall, Wakefield, WF4
0/5 Rating
(1653) reviews
Agent Statistics (Based on 1653 Reviews) :