The UK's Largest Customer Review Website for the Property Industry
The UK's Largest Customer Review Website for the Property Industry
Back to Property Listings
HALLMARK FINE HOMES | Backhouse Lane, Woolley, Wakefield
A generously proportioned, individual built stone residence featuring four bedrooms, a spacious indoor heated SWIMMING POOL, main bedroom with en suite, a second bedroom with a balcony, a sizable integrated double garage, and SECLUDED PRIVATE GROUNDS. EPC rating C69.
Situated within the highly sought after village of Woolley set within private enclosed grounds extending towards 3/4 of an acre is this substantial and individually designed stone built house offering spacious and versatile accommodation throughout including full size indoor heated swimming pool.
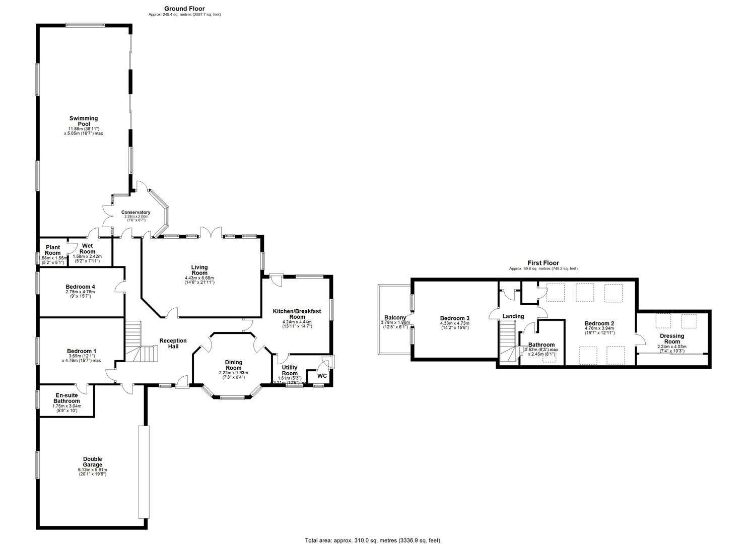
The accommodation, which extends towards 3600 square feet, briefly comprises reception hallway, breakfast kitchen with utility room off, living room, separate dining room, principal bedroom complete with en suite bathroom/w.c., bedroom four, conservatory, leisure room with full size swimming pool with shower room and plant room off and the integral large double garage. To the first floor landing there are two double bedrooms, one with dressing room/office off and additional bathroom/w.c. The property enjoys a high degree of privacy there is a larger well tended manicured garden with plants and shrubs bordering with gardens to all sides incorporating large terrace patio ideal for entertaining purposes. Accessed via electronic gates and leading to a block paved courtyard setting providing ample off street parking for several vehicles leading to the large integral double garage.
The picturesque village of Woolley features a golf course, village hall and is well placed for access to the M1 motorway (via Junction 38) with commuter links to Leeds, Sheffield, Manchester and further afield. Within easy reach of Newmillerdam country park, Pugneys water park and Blacker Hall Farm. Simply a fantastic home ideal for the growing family and truly deserves a full internal and external appraisal to fully reveal all the accommodation has to offer and the grounds within.
Accommodation -
Reception Hall - Composite entrance door with UPVC double glazed frosted window to the side. Sweeping balustrade staircase to the first floor landing, radiator, Karndean flooring, doors into the double garage, two bedrooms, living room, kitchen breakfast room and dining room. Hives system.
Dining Room - 4.08m into bay x 4.72m (13'4" into bay x 15'5") - Walk in UPVC double glazed bay windows to the front, Karndean flooring, coving to the ceiling, radiator, further door into the kitchen breakfast room.
Kitchen Breakfast Room - 4.39m x 4.37m plus walk in area (14'4" x 14'4" plu - A range of modern fitted wall and base units with granite work surface over incorporating Belfast sink with mixer tap, space for a feature Range cooker, recessed ceiling spotlights, coving to the ceiling, display wall cabinets, contemporary portrait radiator, tiled floor with underfloor heating, granite breakfast Island bar, integrated dishwasher, space for an American style fridge freezer, UPVC double glazed window to the side and UPVC double glazed window to the rear, drawers, integrated Bosch combi microwave. Door to the utility room. Composite stable door to the rear.
Utility Room - 3.66m x 2.07m max x 0.9m min (12'0" x 6'9" max x 2 - Work surface, plumbing or washing machine, space for condensing dryer, UPVC double glazed window to the front, composite door to the side, tiled floor, radiator, door to downstairs w.c.
Downstairs W.C. - Low flush w.c., wash basin, radiator, tiled floor, UPVC double glazed frosted window to the front.
Double Garage - 5.68m x 5.94m plus walk in area 2.28m x 1.97m (18' - Loft access with storage, UPVC double glazed frosted window to the side, electric operated garage door, light and power. W.C., sink and radiator.
Living Room - 4.42m x 6.08m max (14'6" x 19'11" max) - UPVC double glazed window to the side, UPVC double glazed French doors to the rear with windows to either side and two further windows also to the rear. Gas fire with granite back and hearth within a modern wooden surround, radiator, recessed ceiling spotlights and coving to the ceiling. Double doors onto the patio.
Conservatory - 3.23m max x 3.66m max (10'7" max x 12'0" max ) - UPVC double glazed windows within a bay area, UPVC double glazed door to the rear, telephone intercom, tiled floor and radiator. UPVC double glazed French doors into the leisure area of the indoor heated swimming pool.
Leisure Room / Swimming Pool - 11.99m x 5.62m max x 4.52m min (swimming pool) (39 - An indoor heated swimming pool. Having its on separate heating system with air conditioning unit. UPVC double glazed window to the rear, two UPVC double glazed windows to the side, a further UPVC double glazed window to the opposite side with two sets of UPVC double glazed sliding patio doors. Tiled perimeter and steps leading into the pool. Electrically operated swimming pool cover, seating area, door into the wet room.
Wet Room - 2.63m x 1.87m (8'7" x 6'1") - Low flush w.c., wash basin over vanity cupboard, tiled walls, mixer shower and spotlights to the ceiling. Heated towel radiator.
Plant Room - 2.03m x 1.98m (6'7" x 6'5") - UPVC double glazed frosted window to the side.
En Suite Bathroom - 3.47m x 2.01m (11'4" x 6'7") - Wet room style area with mixer shower, low flush w.c., wash basin, freestanding roll top bath with claw feet, UPVC double glazed frosted window to the side, tiled walls, recessed ceiling spotlights, heated chrome towel radiator.
Bedroom One - 4.41m x 3.75m (14'5" x 12'3") - Fitted wardrobes to one wall incorporating dressing table, UPVC double glazed window to the side, radiator, coving to the ceiling, recessed ceiling spotlights and door to the en suite wet room.
Bedroom Four - 4.86m x 2.73m (15'11" x 8'11") - UPVC double glazed window to the side, radiator, coving to the ceiling and recessed ceiling spotlights.
First Floor Landing - Doors to two bedrooms, bathroom and airing cupboard.
Bathroom/W.C. - 2.45m x 2.92m max x 2.23m min (8'0" x 9'6" max x 7 - Low flush w.c., ceramic tiled Villeroy & Boch bath, walk in shower with mixer shower and separate attachment, fully tiled walls and floor, heated towel radiator.
Bedroom Two - 6.04m x 5.25m max x 3.57m min (19'9" x 17'2" max x - Three double glazed Velux windows to the rear and two further Velux double glazed windows to the front. Storage into eaves, radiator, loft access, door to the storage cupboard and radiator. Door into the dressing room.
Dressing Room - 4.41m x 2.41m to wardrobes (14'5" x 7'10" to wardr - Sliding mirrored door wardrobes, radiator, storage into the eaves and two Velux double glazed windows to the rear.
Bedroom Three - 4.86m x 4.35m (15'11" x 14'3") - Radiator, doors into the eaves for storage, UPVC double glazed door with windows to either side opening onto the baclony.
Balcony - Overlooks the village green timber decked with wrought iron fencing.
Outside - Electronic wrought iron gate opening onto a block paved courtyard setting providing ample off road parking for several vehicles and leading to the integral double garage. Having CCTV security cameras around the vicinity and enjoys a good degree of privacy with lawned gardens to the side, well stocked with mature plants, trees and shrubs bordering. A stone flagged terrace patio ideal for entertaining purposes, pond with timber framed surround, timbed decked seating area with AstroTurf covering off the kitchen breakfast room.
Council Tax Band - The council tax band for this property is D
Epc Rating - To view the full Energy Performance Certificate please call into one of our local offices.
Floor Plans - These floor plans are intended as a rough guide only and are not to be intended as an exact representation and should not be scaled. We cannot confirm the accuracy of the measurements or details of these floor plans.
Viewings - To view please contact our Wakefield office and they will be pleased to arrange a suitable appointment.

This property is marketed by

Richard Kendall Estate Agent - Hallmark from Richard Kendall, Wakefield, WF4
0/5 Rating
(1653) reviews
Agent Statistics (Based on 1653 Reviews) :