The UK's Largest Customer Review Website for the Property Industry
The UK's Largest Customer Review Website for the Property Industry
Back to Property Listings
Hackney Road, Shoreditch, E2
Price Guide: £500,000 - £550,000
DESCRIPTION
A unique opportunity to acquire a share of freehold in a prominent Hackney Road commercial unit, boasting heavy footfall and a proven track record as a thriving hair, beauty, sunbed salon and day spa. The fit out in situ is of exception quality and all equipment is available to remain, offering a true turnkey solution.
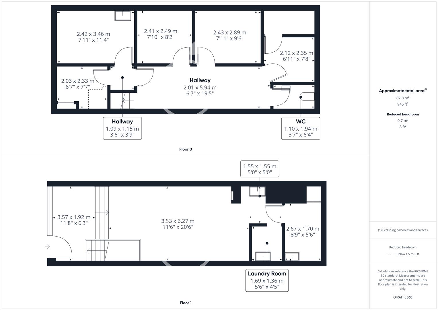
The property features electric roller shutters leading into the unit's reception area, which has a custom-made front desk and stairs leading up to the main floor which is home to a nail bar with 2 customer stations along with 6 hairdressing stations. Skylights bring in plenty of natural light. There is a colour mixing station with sink, as well as a kitchenette (including a washing machine) and a private treatment room to the rear of the property.
There is an open stairway with good ceiling height leading downstairs to the lower floor, which contains five fully equipped treatment rooms and an opulent waiting area with 2 pedicure stations. The treatment rooms are currently fitted as two rooms with Ergoline lay-flat sunbeds, one room with Ergoline vertical sunbed, a spray room and a beauty/treatment room. The basement includes a customer facing W/C.
The property is ideally suited to owner occupier but there is also an opportunity for investors given the estimated annual income is £45,000."
LOCATION
Set in Shoreditch, the building is situated directly between Columbia Road Flower Market and Broadway Market in the beating heart of vibrant East London. The area has excellent foot-fall with a dense residential populous and 1,000's of companies within a 15 minute walking radius. The area is particularly popular with 'creatives' and those working in the tech industries or launching new start-ups. Hackney road is a destination location with a thriving art scene, trendy bars, and independent cafes, stores and boutiques making it a cultural hotspot and an exciting area to buy a property. Bustling Brick Lane and Redchurch Street are both within a short walk.
The unit is within a short walk of Hoxton and Shoreditch High Street Overground stations, providing seamless connections across London. Old Street, Bethnal Green and Liverpool Street Underground stations are also nearby, granting easy access to the Northern, Central, Circle, Hammersmith & City, and Metropolitan lines.
Multiple major bus routes-including the 26, 55, 149, 205, 242, and 243-stop just steps from the property, ensuring convenient travel from all corners of the city, day and night.
AMENITIES
Fully-fitted and equipped beauty salon and day spa with the following:
.6 x open plan hair dressing stations
.2 x nail bar stations
.2 x private treatment rooms
.3 x Ergoline equipped tanning rooms
.1 x spray tan salon
.1 x kitchenette
.1 x colour prep station
.1 x reception desk
.2 x pedicure stations
Secure electric roller shutters
Gas central heating
ACCOMMODATION
Gross Internal Area: 995 Sq Ft
BUSINESS RATES
The current rateable value is £11,500 (this is below the small business rates relief threshold). Parties are advised to make their own enquires with the local authority.
SERVICE CHARGE
Est. £3,807.20 per annum
GROUND RENT
zero
LEGAL COSTS
Each party bear own legal costs.
VIEWING
Strictly by appointment through Peach Properties"

Agent Statistics (Based on 288 Reviews) :