The UK's Largest Customer Review Website for the Property Industry
The UK's Largest Customer Review Website for the Property Industry
Back to Property Listings
Green Lanes, Haringay, N4
The property occupies the ground floor of a mid-terrace mixed-use building, forming part of a well-established commercial parade along the busy Green Lanes in Harringay, N4
LOCATION
The property is located on the Wesst side of Green Lanes on the Harringay Ladder. The property is easily accessed by a variety of bus routes and is within 2 minutes walking distance to Haringey Green Lanes Overground (0.1 miles) or 14 minutes walking distance to Turnpike lane Underground (0.6 miles).
DESCRIPTION
The property occupies the ground floor of a mid-terrace mixed-use building, forming part of a well-established commercial parade along the busy Green Lanes in Harringay, N4. This thriving stretch is known for its vibrant mix of independent retailers, restaurants, and cafés, benefiting from high pedestrian footfall and excellent transport links.
The unit was most recently trading as an Italian restaurant, and remains in a good overall condition, offering a ready-to-trade opportunity for an incoming operator. Internally, the premises comprise a spacious, open-plan dining area with a tiled floor throughout and a feature bar counter, ideal for both eat-in and takeaway service.
To the rear of the property is a fully fitted commercial kitchen, equipped with professional-grade appliances, stainless steel work surfaces, extraction canopy, and cooking line - all of which are to be included as part of the lease assignment (subject to inventory and negotiation).
In addition, the property benefits from customer WC facilities, as well as rear ancillary space for storage and deliveries. Rear access is also available, providing practical service entry for staff and goods.
This is a well-presented, turnkey restaurant unit with an attractive layout, suitable for a variety of Class E uses.
Premium sought for fixtures, fittings, location and new lease - £115,000 o.n.o
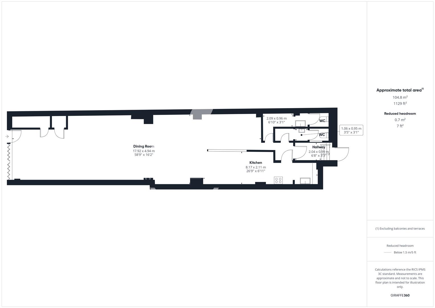
ACCOMMODATION
Ground Floor: 1129Sq ft ( Sq M)
AMENITIES
Short walk to Station
Easy access to local parks
Situated at a pedestrian crossing
Air conditioning
Tiled floor
Bar
Large dining area
TERMS
Assignment of an existing 16 years INSIDE the Landlord tenant Act 1954 (14 years remaining)
Business Rates
Parties are advised to make their own enquires with the local authority.
LEGAL COSTS
Each party bear own legal costs.
VIEWING
Strictly by appointment through Peach Properties

Agent Statistics (Based on 288 Reviews) :