The UK's Largest Customer Review Website for the Property Industry
The UK's Largest Customer Review Website for the Property Industry
Back to Property Listings
Granta Mead Close, Newport, Saffron Walden
A modem three bedroom home situated in a superb village location with views over the Shortgrove Estate and close proximity to a mainline station. The property offers bright and well proportioned accommodation, together with a private rear garden, double garage and a store/workshop space that offers scope for conversion.
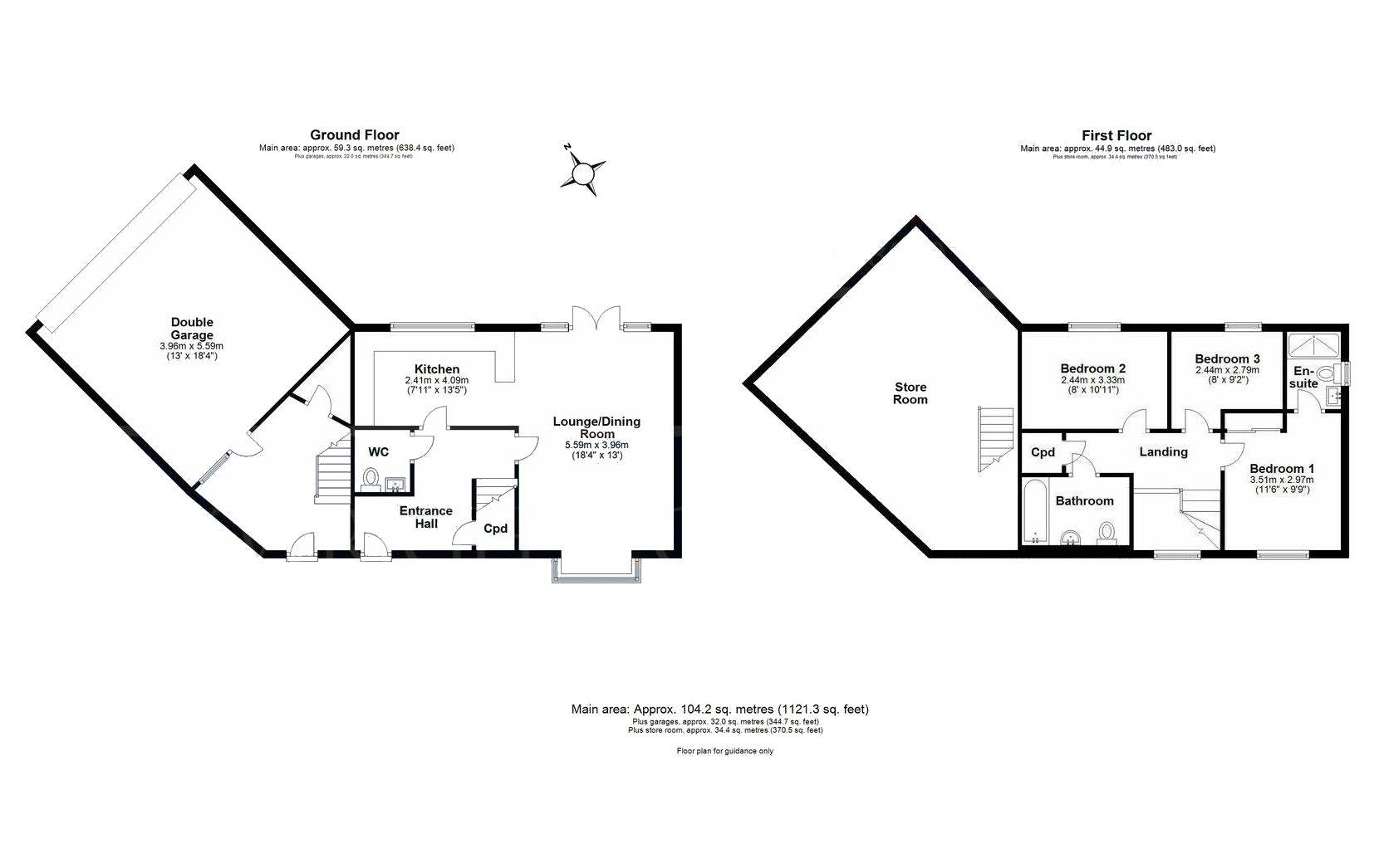
Ground Floor -
Entrance Hall - Entrance door and obscure glazed window to the front aspect, staircase rising to the first floor and doors to adjoining rooms.
Cloakroom/Utility - Comprising ceramic wash basin, low level WC and space and plumbing for washing machine.
Sitting/Dining Room - Bay window to the front aspect and French doors opening to the rear garden. Opening to:
Kitchen - Fitted with a range of base and eye level units with worktop space over, sink unit, ceramic hob with extractor hood over, electric oven, dishwasher, fridge and freezer. Window to the rear aspect and door returning to the entrance hall.
First Floor -
Landing - Window to the front aspect, built-in storage cupboard and doors to adjoining rooms.
Bedroom 1 - Window to the front aspect, fitted wardrobes and door to:
En Suite - Comprising ceramic wash basin, low level WC, shower enclosure, heated towel rail and obscure glazed window to the side aspect.
Bedroom 2 - Window to the rear aspect.
Bedroom 3 - Window to the rear aspect.
Bathroom - Comprising ceramic wash basin, low level WC, panelled bath with shower over, heated towel rail and obscure glazed window to the front aspect.
Outside - Adjoining the rear of the property is a paved terrace for al fresco entertaining with raised beds borders and an adjoining lawn. There is a further paved terrace to the rear enjoying views over the Shortgrove Estate and pedestrian access down to the stream. Adjoining the property is double garage.
Double Garage - Vehicular access via an electric roller shutter door. Door providing access to the lobby, with external door to the front aspect, built-in storage cupboard and staircase rising to the store room above the garage.
Agent's Notes - There is an Estate Charge of approximately £450 p.a. paid in two instalments.
Viewings - By appointment through the Agents.

This property is marketed by

Cheffins - Saffron Walden, Saffron Walden, CB10
4.9/5 Rating
(1530) reviews
Agent Statistics (Based on 1530 Reviews) :