The UK's Largest Customer Review Website for the Property Industry
The UK's Largest Customer Review Website for the Property Industry
Back to Property Listings
Grange Park Road, Leyton
This beautifully presented one-bedroom apartment offers a wonderful balance of comfort, character and outdoor living, complete with a large private rear garden that feels like a true extension of the home. Recently refurbished by the current owners, the interiors have been thoughtfully updated to create a calm and welcoming atmosphere throughout. Perfectly positioned moments from the vibrant mix of cafés, restaurants and independent shops along Francis Road, this chain-free home enjoys a lively yet welcoming setting. It's also within easy reach of Leyton Station and Leyton Midland Road, combining stylish living with everyday convenience and a strong sense of local community spirit.
IF YOU LIVED HERE.
A traditional Victorian façade of London stock brickwork, arched windows and a characterful bay window gives this home a quietly enduring charm that sits gracefully within its row. Inside, the entrance hall leads through to a bright and generous reception room where the high ceiling, coving and decorative fireplace bring a touch of period elegance. The soft neutral tones and broad bay window create a sense of calm and light, making it an inviting space for relaxing or entertaining.
Further along, a peaceful double bedroom continues the home's gentle palette, its high ceiling enhancing the feeling of openness and ease. The kitchen has been thoughtfully arranged with soft grey cabinetry and warm wood worktops, its beautiful herringbone flooring adding texture and character. Daylight pours in through the window and glazed door, highlighting the subtle tiling and generous storage that make the room both practical and refined.
The bathroom is fresh and contemporary, with a bath and overhead shower framed by soft green two-tone tiling. Frosted dual-aspect windows allow sunlight to filter through while maintaining privacy, creating a bright yet soothing atmosphere.
To the rear, the garden stretches an impressive 37 metres, framed by mature trees and offering endless scope for transformation. It's a rare expanse with huge potential to become a truly special retreat. Beneath the home, a cellar provides valuable additional storage or utility space.
Nearby, the surrounding area combines a strong community feel with an ever-evolving local scene. Francis Road has become a destination in its own right, lined with independent shops, cafés and restaurants that bring real charm to the neighbourhood. Yardarm and Marmelo Kitchen draw food lovers with their relaxed atmosphere and quality ingredients, while The Northcote Arms is a favourite for its welcoming buzz and great food. The pedestrianised stretch is perfect for browsing or sitting out with a coffee, and the weekend market adds an easy-going, village-like feel. Nearby Leyton Jubilee Park provides wide green spaces for walks and picnics, while the expansive Queen Elizabeth Olympic Park features beautifully landscaped grounds, tranquil waterways, striking architecture and a vibrant mix of culture, sport and open green space to enjoy year-round.
WHAT ELSE?
Transport links are excellent, with Leyton Station around a 15-minute walk away, offering Central line services direct to the West End and City. Leyton Midland Road is just over 10 minutes on foot, connecting to the London Overground network for easy access across north and east London. Regular bus routes also serve the area, making travel in and out of the city straightforward and well connected.
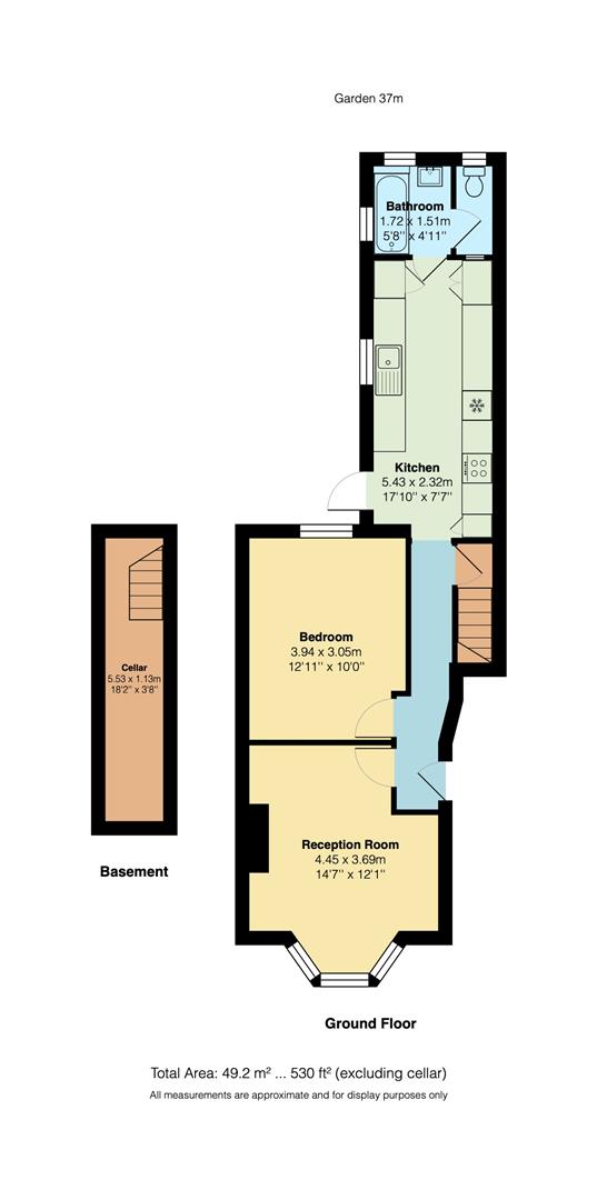
Reception Room - 4.45 x 3.69 (14'7" x 12'1") -
Bedroom - 3.94 x 3.05 (12'11" x 10'0") -
Kitchen - 5.43 x 2.32 (17'9" x 7'7") -
Bathroom - 1.72 x 1.51 (5'7" x 4'11") -
Cellar - 5.53 x 1.13 (18'1" x 3'8") -
Garden - 37 (121'4") -
A WORD FROM THE OWNER...
"We lived at the property for ten years and during that time Leyton and the surrounding areas have really improved. Within a quiet neighbourhood we are close to two good transport links, Central line and Overground. Both the High Road and Tilbury Road are continuing the improvements with the V&A outpost within walking distance too."

Agent Statistics (Based on 2937 Reviews) :