The UK's Largest Customer Review Website for the Property Industry
The UK's Largest Customer Review Website for the Property Industry
Back to Property Listings
Gracious Street, Selborne
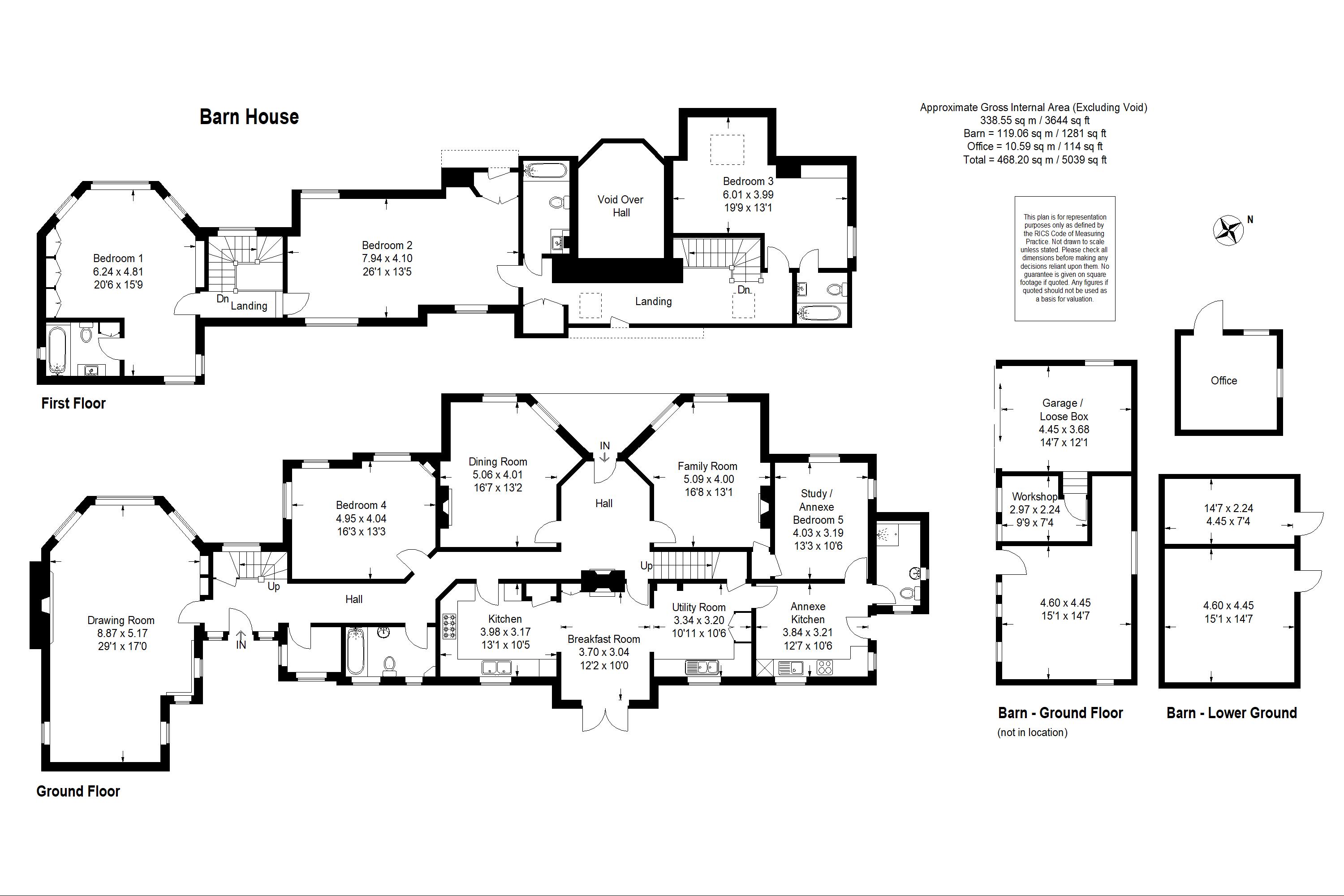
An individual restored Arts and Crafts house full of character, tucked away in the heart of the historic village of Selborne. The property boasts delightful views towards The Hanger. This lovely family home has undergone a comprehensive programme of modernisation and remodelling to create versatile family accommodation. In addition to the principle house there is a large barn and garage complex. The overall plot extends to just over 0.5 acres. EPC - attached Council tax band H Minimum initial fixed term - 12 months AVAILABLE NOW. Deposit = 5 weeks rent - £ 4326.92 First Month's rent - £ 3750 Holding deposit - £ 865.38 (will be offset against the first month's rent upon move in)

Agent Statistics (Based on 2316 Reviews) :