The UK's Largest Customer Review Website for the Property Industry
The UK's Largest Customer Review Website for the Property Industry
Back to Property Listings
Gosbrook Road, Caversham
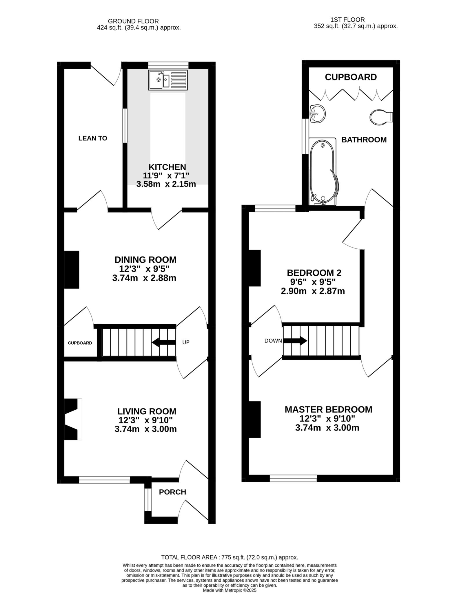
Masons are proud to offer to the market this well presented 2 bedroom Victorian terrace family home with a separate first floor bathroom, situated within walking distance of Caversham & Reading centres along with Reading Mainline Station. Offered for sale with NO ONWARD CHAIN, the accommodation comprises of a 12ft living room with feature fireplace, a 12ft dining room, an 11ft kitchen, a generous lean to, a 12ft master bedroom, a 9ft second bedroom and a separate family bathroom. Further benefits include a fully enclosed South facing rear garden, driveway parking, gas central heating and UPVC double glazing. VIEWING RECOMMENDED.
Front door opens into the porch which is double glazed with a side aspect and has a door to...
Living Room:
12`3" x 9`10"
Double glazed with a front aspect, feature fireplace, a door to the hall which boasts the stairs leading to the first floor landing and another door to...
Dining Room:
12`3" x 9`5"
Fitted with a chimney breast, an under stair storage cupboard, doors to the lean to and kitchen.
Kitchen:
11`9" x 7`1"
Double glazed with a dual aspect, fitted with a range of eye and base level units with roll edge tops and tiled surround, 1.5 sink with drainer, space for further appliances.
Master bedroom:
12`3" x 9`10"
Double glazed with a front aspect, chimney breast and a door to the landing.
Bedroom 2:
9`6" x 9`5"
Double glazed with a rear aspect, fitted with a chimney breast and a door to the landing.
Bathroom:
Double glazed with a side aspect, fitted with a panel enclosed P shaped bath, low level WC, hand wash basin and built in storage cupboards.
Outside:
To the rear the property boasts a fully enclosed South facing garden which is mainly laid to lawn but boasts a patio area and storage shed. To the front the property boasts driveway parking.
Notice
Whilst every care has been taken in the preparation of these particulars, and they are believed to be correct, they are not warranted and intending purchasers/lessees should satisfy themselves as to the correctness of the information given.Please note we have not tested any apparatus, fixtures, fittings, or services. Interested parties must undertake their own investigation into the working order of these items. All measurements are approximate and photographs provided for guidance only.
Council Tax
Reading Borough Council, Band C
Utilities
Electric: Mains Supply
Gas: Mains Supply
Water: Mains Supply
Sewerage: Mains Supply
Broadband: Unknown
Telephone: Unknown
Other Items
Heating: Gas Central Heating
Garden/Outside Space: Yes
Parking: Yes
Garage: No

Agent Statistics (Based on 72 Reviews) :