The UK's Largest Customer Review Website for the Property Industry
The UK's Largest Customer Review Website for the Property Industry
Back to Property Listings
Goldsmith Road, Poets Corner,Acton, London
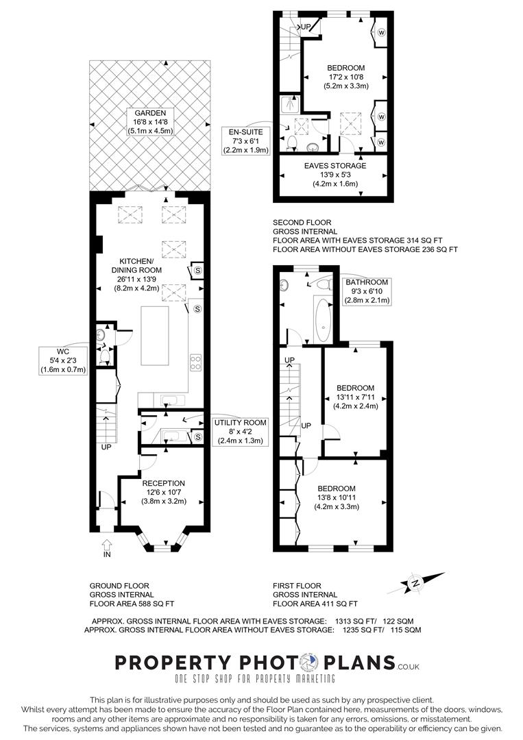
Aston Rowe are proud to present this beautifully presented three bedroom terraced house in one of Acton's most popular roads in Poets Corner. Finished off to a good standard throughout this fabulous property is contemporary and modern throughout, and is set over three floors. The accommodation is set over 1,313 sqft (Including eaves) and includes a separate reception room to the front, utility room with 26 ft open plan kitchen/living room with bi-fold doors leading out on to a private West facing garden perfect for Al-fresco dinning.
The first-floor benefits from a tasteful and well-designed family bathroom, one double bedroom with the master bedroom which consists of built in wardrobes. The second floor comprises another double bedroom with en-suite and built in wardrobes and eaves.
Other benefits include downstairs WC, plentiful storage and offers no onward chain.
Goldsmith Road is moments walk from Churchfield Road, offering a vibrant cafe culture and a great selection of boutique shops, bars and eateries. Transport links include Acton Central Overground and Acton Mainline Station for the new Elizabeth line.
*** Please note the pictures are for when our clients furniture was in the property ***

Agent Statistics (Based on 192 Reviews) :