The UK's Largest Customer Review Website for the Property Industry
The UK's Largest Customer Review Website for the Property Industry
Back to Property Listings
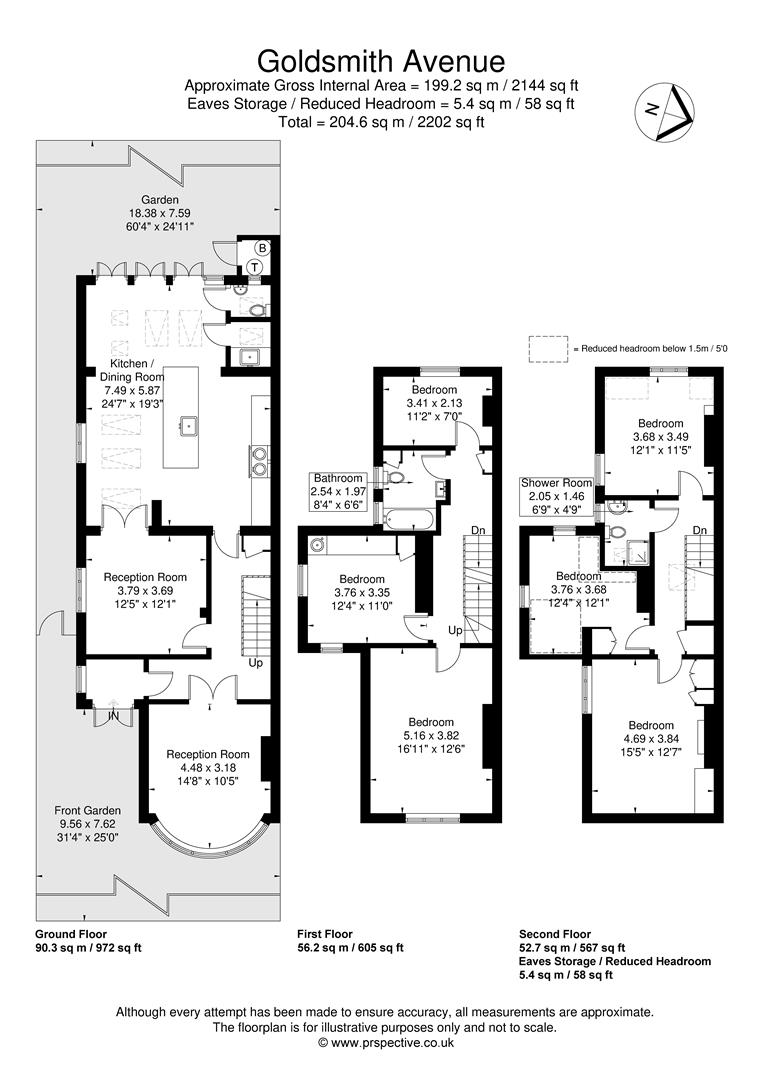
Goldsmith Avenue, London
Exchanged (Off-market) - A six-bedroom family home located on the sought-after Goldsmith Avenue in Acton Central. Situated in the popular Poets Corner area, this property boasts a large entertaining space with the addition of two separate reception rooms on the ground floor, but also there are six large bedrooms, making it perfect for a large family or those who love to host and entertain guests.
One of the highlights of this property is its convenient location, being close to the shops and amenities on Churchfield Road, or a short stroll around Acton Park.
For those who rely on public transport, the proximity to Acton Mainline station (Elizabeth Line) is within walking distance, as is Acton Central station (Overground), along with a host of local bus routes.
As you step outside, you'll be greeted by a stunning 60ft West Facing garden, perfect for enjoying the British sunshine or hosting outdoor gatherings with friends and family.
This property is an ideal family home for an upsizing family to call a forever home, giving ample space for family life, a larger than average garden for the area, yet having all of the social and transport amenities on your doorstep.

Agent Statistics (Based on 192 Reviews) :