The UK's Largest Customer Review Website for the Property Industry
The UK's Largest Customer Review Website for the Property Industry
Back to Property Listings
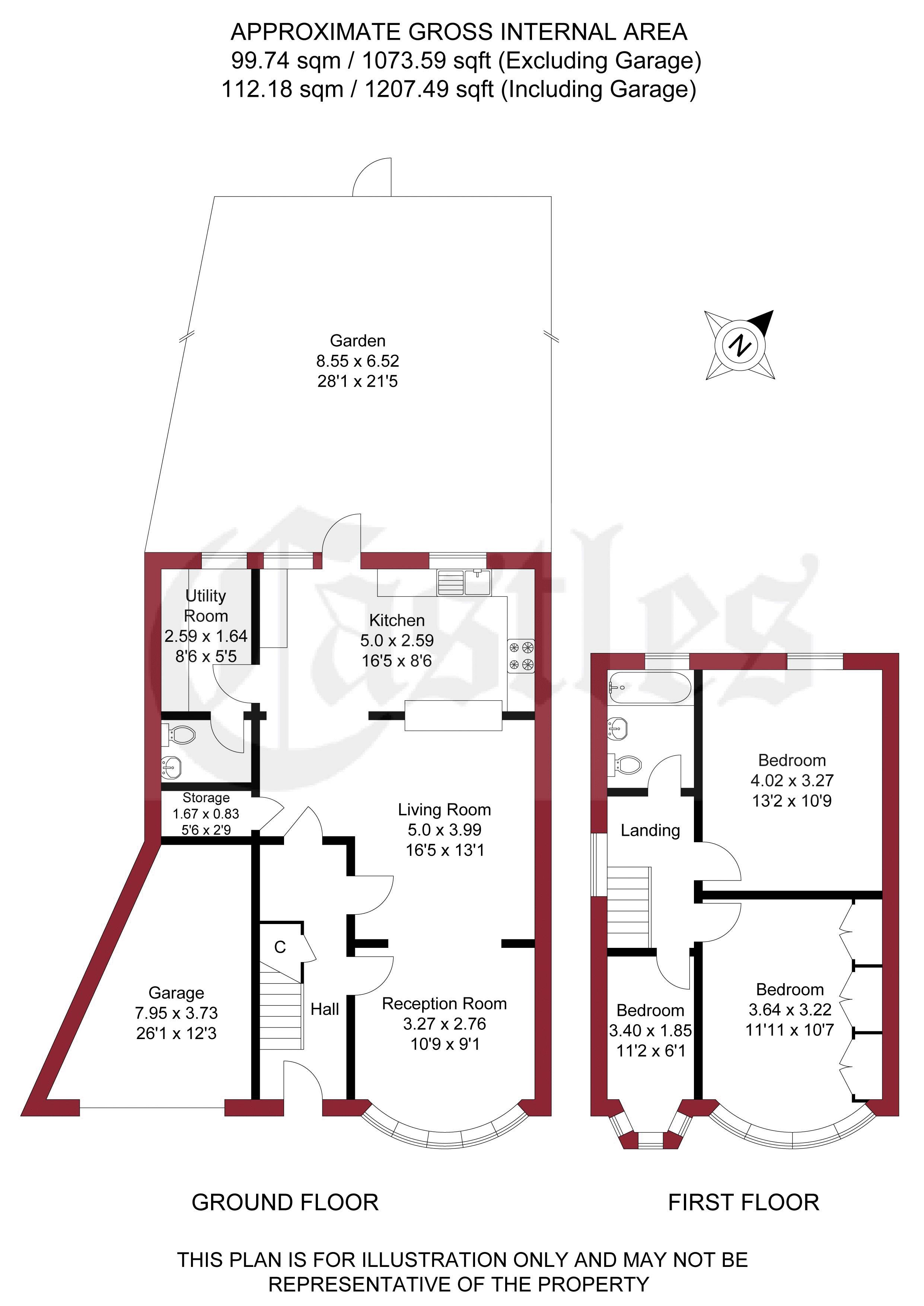
Glenville Avenue, Enfield
A well presented and extended 3 bedroom bay fronted semi-detached family house located in a highly desirable residential area close to Hilly Fields and within approximately 0.5m of Gordon Hill station and close to local schools and Lancaster Road shopping area. The property offers spacious and bright accommodation in good decorative order throughout. Viewing is highly recommended. Features include:- front off street parking up to 3 cars, double glazing, gas central heating, extended modern fitted kitchen, utilities area, modern 1st floor family bathroom, garage to side, spacious living room, modern ground floor WC, 3 bedrooms, newly landscaped rear garden, close to Hilly Fields, excellent EN2 location.

This property is marketed by

Castles Estate Agents (London) - Enfield, Enfield, EN3
4.8/5 Rating
(940) reviews
Agent Statistics (Based on 940 Reviews) :