The UK's Largest Customer Review Website for the Property Industry
The UK's Largest Customer Review Website for the Property Industry
Back to Property Listings
Glenrhondda, Emmer Green, Reading, Berkshire, RG4
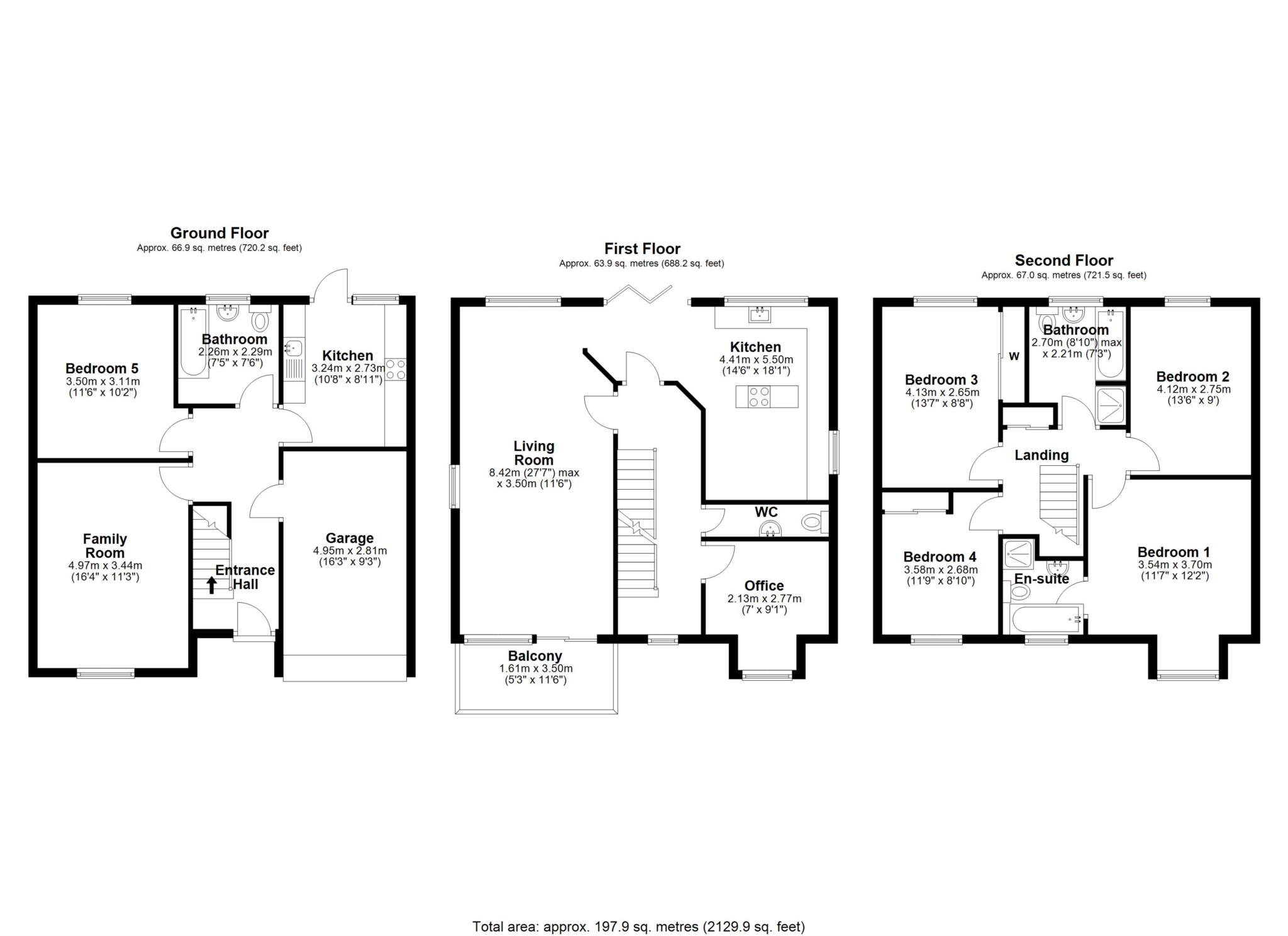
Bridges are delighted to bring to the market this five bedroomed detached house offering generous accommodation over three floors with views stretching across the Hemdean Valley. The ground floors offers the option for a separately accessed one bedroomed self contained apartment including kitchen, living room, double bedroom and bathroom. To the first floor you will find a large front to back lounge with balcony to the front, a stylish kitchen with built in appliances, floor and eye level units and a large centre island with overhang for seating. French doors give access to patio and garden. To the second floor there are four further double bedrooms with master benefiting from an en suite and a family bathroom with shower and separate bath. There is a garage and off-road parking for two cars. An early viewing is recommended by the vendors` sole agent. No onward chain!
what3words /// bars.appeal.skirt
Notice
Please note we have not tested any apparatus, fixtures, fittings, or services. Interested parties must undertake their own investigation into the working order of these items. All measurements are approximate and photographs provided for guidance only.
Council Tax
Reading Borough Council, Band G
Utilities
Electric: Mains Supply
Gas: None
Water: Mains Supply
Sewerage: None
Broadband: None
Telephone: None
Other Items
Heating: Not Specified
Garden/Outside Space: No
Parking: No
Garage: No

This property is marketed by

Bridges Estate Agents (Reading) - Caversham Reading, Reading, RG4
3.7/5 Rating
(3) reviews
Agent Statistics (Based on 3 Reviews) :