The UK's Largest Customer Review Website for the Property Industry
The UK's Largest Customer Review Website for the Property Industry
Back to Property Listings
Glenmore Avenue, Plymouth, PL2 1HY
A beautifully renovated two-bedroom home on Glenmore Avenue, offered with no onward chain, this charming property is ready for its next chapter.
Thoughtfully refurbished in soft, neutral tones throughout, it offers a fresh, modern feel an ideal blank canvas for new owners to move straight in and make it their own.
Inside, the home boasts two inviting reception rooms, a handy utility room with excellent storage, and a spacious sunroom that fills with natural light perfect for enjoying a morning coffee, relaxing with a book, or entertaining friends whatever the season. A low-maintenance courtyard garden offers a peaceful outdoor retreat, while private rear parking adds extra convenience. There`s also a useful downstairs WC just off the garden, ideal for everyday living or hosting guests.
Tucked away just a short stroll from the open green space of St. Levans Park, it`s an excellent location for those who enjoy nature, walking, or simply having a bit of tranquillity nearby. Local amenities are also close at hand, making everyday life easy and accessible.
Lovingly updated and ready to move into, this gem of a home is waiting to welcome its new owners.
A Holding Deposit of ?253 (Equivalent to One Week`s Rent) will be due on Application. Successful Applicants will have their Holding Deposit offset against their initial Rent and Deposit Payment. The Deposit of ?1269 (Equivalent to 5 Weeks Rent) will be held with the DPS. Please call us on 01752 206040 for further information...
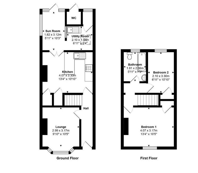
**Entrance Hall**
Upon entering, you`re greeted by a welcoming hallway that sets the tone for the home`s calming neutral d?cor. This space provides access to the main living areas, creating a seamless flow throughout the ground floor.([Rightmove][1])
**Reception Room One**
This inviting front-facing reception room is bathed in natural light, thanks to its large window. The neutral tones and thoughtful refurbishment make it a versatile space, perfect for a cozy lounge or a formal sitting area.
**Reception Room Two**
Adjacent to the first, the second reception room offers additional living space, ideal for a dining area or a family room. Its generous size and neutral palette provide a blank canvas for various furniture arrangements and personal touches.
**Utility Room**
A practical addition to the home, the utility room offers ample storage options and workspace. It`s designed to keep household tasks organized and out of sight, maintaining the home`s clean and uncluttered aesthetic.
**Sunroom**
The beautifully sized sunroom is a standout feature, bathing the interior in natural light and seamlessly connecting indoor living to the garden. It`s the perfect spot to relax with a book, enjoy morning coffee, or entertain guests year-round.
**Downstairs WC**
Conveniently located just off the garden, the downstairs WC adds practicality to the home, ideal for guests or everyday ease without needing to access the main bathroom upstairs.
**Bedrooms**
Upstairs, the home boasts two well-proportioned bedrooms, both thoughtfully updated in calming neutral tones. These rooms offer a peaceful retreat, ready for new owners to add their personal style and make lasting memories.
**Bathroom**
The main bathroom continues the home`s theme of thoughtful refurbishment and neutral d?cor. It`s equipped with modern fixtures and fittings, providing a comfortable and functional space for daily routines.
**Courtyard Garden**
Outside, the low-maintenance courtyard provides a peaceful retreat, perfect for outdoor relaxation or entertaining. The space is complemented by the convenience of private rear parking, adding to the home`s practicality.
---
This beautifully refurbished home on Glenmore Avenue offers a harmonious blend of modern updates and practical features, all set in a calming neutral palette. With its thoughtful layout and inviting spaces, it`s ready for new owners to move in and start creating their own lasting memories.
what3words /// edges.broom.rash
Notice
All photographs are provided for guidance only.
Redress scheme provided by: The Property Ombudsman (A4813)
Client Money Protection provided by: CMP (Client Money Protect) (CMP007396)
Council Tax
Plymouth City Council, Band A
Utilities
Electric: Mains Supply
Gas: Mains Supply
Water: Mains Supply
Sewerage: Mains Supply
Broadband: FTTC
Telephone: Landline
Other Items
Heating: Gas Central Heating
Garden/Outside Space: Yes
Parking: Yes
Garage: No

Agent Statistics (Based on 63 Reviews) :