The UK's Largest Customer Review Website for the Property Industry
The UK's Largest Customer Review Website for the Property Industry
Back to Property Listings
Glenburn Road, Hamilton
**Closing Date Monday 12th May at 12pm ** Positioned on a generous plot in one of Hamilton`s most sought after addresses, this charming three-bedroom link detached villa blends traditional character with flexible living space and incredible garden grounds. Perfect for families or downsizers seeking space, location and long term potential.
Five things our owners love about their property:
1. The space downstairs is fantastic.
2. Large back garden surrounded by greenery.
3. Spacious bedrooms.
4. Quiet cul-de-sac.
5. Close to local amenities including Hamilton West train station.
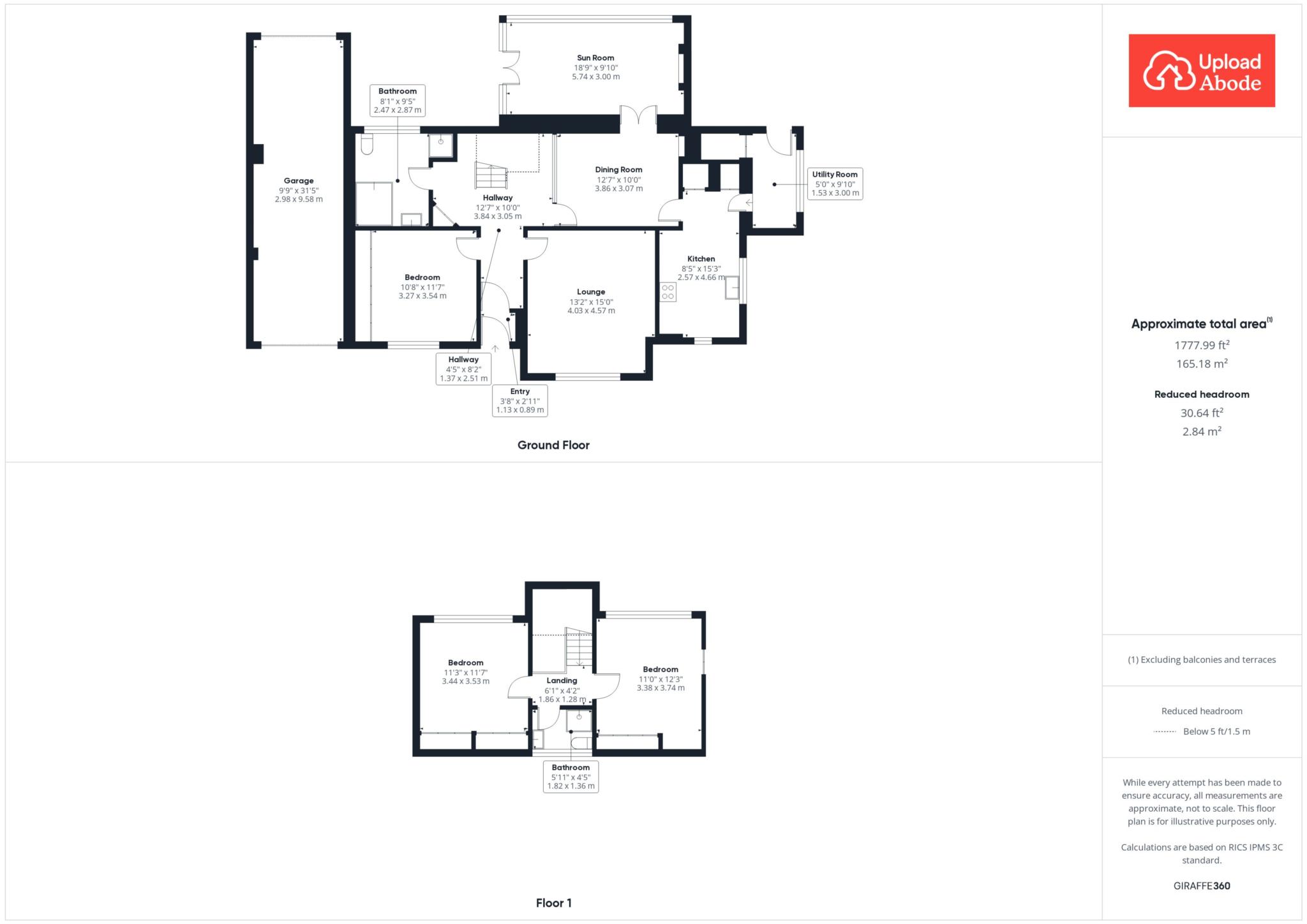
A welcoming hallway sets the tone as you enter, leading first into a spacious front facing lounge with large windows and neutral decor. Adjacent to the lounge is a well-proportioned double bedroom, ideal for guests, a home office or as the main bedroom on the ground floor.
To the rear, a bright and stylish dining room provides a fantastic setting for family meals or entertaining and flows directly into a lovely sun room that opens out to the private back garden. The kitchen sits just off the dining room and offers a practical layout with a mix of wall and floor units and ample worktop. There is also a the utility room off the with a large storage cupboard.
Also on the ground floor is the family bathroom, which includes both a bath and separate shower, with a more traditional finish and generous proportions.
Upstairs, two further double bedrooms offer excellent space and natural light, both featuring Velux style windows and built-in storage. A second bathroom on this level consists of a shower, WC and sink, offering added convenience for busy family life.
Outside, the south facing rear garden is beautifully landscaped with a shaped lawn, patio and mature planting perfect for relaxing or entertaining. To the front, an expansive driveway provides off street parking and leads to an attached double garage offering secure storage and additional versatility.
Glenburn Road is ideally located within easy reach of Hamilton West train station, well regarded local schools and excellent commuter links. This rarely available home offers the perfect blend of setting, space and potential a real gem in the heart of Hamilton.
Say YES to the address @uploadabode
what3words /// during.dash.hush
Notice
Please note we have not tested any apparatus, fixtures, fittings, or services. Interested parties must undertake their own investigation into the working order of these items. All measurements are approximate and photographs provided for guidance only.
Council Tax
South Lanarkshire Council, Band F
Utilities
Electric: Mains Supply
Gas: Mains Supply
Water: Mains Supply
Sewerage: Mains Supply
Broadband: None
Telephone: None
Other Items
Heating: Gas Central Heating
Garden/Outside Space: Yes
Parking: Yes
Garage: Yes

Agent Statistics (Based on 687 Reviews) :