The UK's Largest Customer Review Website for the Property Industry
The UK's Largest Customer Review Website for the Property Industry
Back to Property Listings
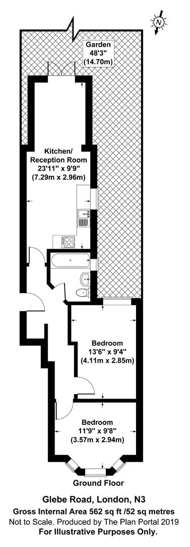
Glebe Road, Finchley
A modern converted 2 double bedroom flat located on the ground floor of this period converted property. The flat was refurbished 3 years ago to a high standard and has been well maintained, benefits a lovely open plan reception room and kitchen with direct access out to a private rear garden. Wooden flooring throughout. Offered unfurnished and available 26th August
Barnet council tax band C
Deposit £2076.92

Agent Statistics (Based on 289 Reviews) :