The UK's Largest Customer Review Website for the Property Industry
The UK's Largest Customer Review Website for the Property Industry
Back to Property Listings
GLASTONBURY
A fine Victorian house with generous accommodation, a coach house, beautiful mature gardens & a 2 bedroom detached cottage.
St. EDMUNDS HOUSE, WELLS ROAD, GLASTONBURY, SOMERSET, BA6 9BS
Street 2 miles, Wells 6 miles, Taunton 18 miles (Paddington 2 hours), M5 (J23) 13 mile, A303 10 miles. All approx.
*
An exceptional property in the town, enjoying great privacy and combining a fine period house, a detached cottage, a coach house and beautiful gardens.
**
The period house (not listed) has a hall, 3 reception rooms, a conservatory, kitchen & breakfast room, study, boot room, cloakroom, cellars, 5 bedrooms and 3 bathrooms. The cottage includes a living room, kitchen, conservatory, 2 bedrooms and a bathroom
***
Outside are a coach house (with scope) and landscaped gardens.
Location
St. Edmunds House is in a popular residential area about 400 yards from the High Street. The property enjoys a very private setting, well back from the road and has great privacy with stone walls and high laurel hedges.
Description
St. Edmunds House is a handsome period building, (not listed) with a classical Victorian elevation although it's likely the house has much earlier origins. Around the year 2000, the current owners carried out major improvement works including re-felting and tiling the roof, rewiring as necessary and refurbishing the kitchen and bathrooms. Built of stone and brick under a tiled roof it has comfortable accommodation which retains many period details, These include flagstones, patterned floor tiles, window shutters, coving, picture rails, dado rails, original door furniture, good quality architraves, deep skirtings, alcoves, fireplaces and of course well proportioned rooms with high ceilings. These are all complemented by gas central heating and a well equipped and fitted John Franklin bespoke kitchen.
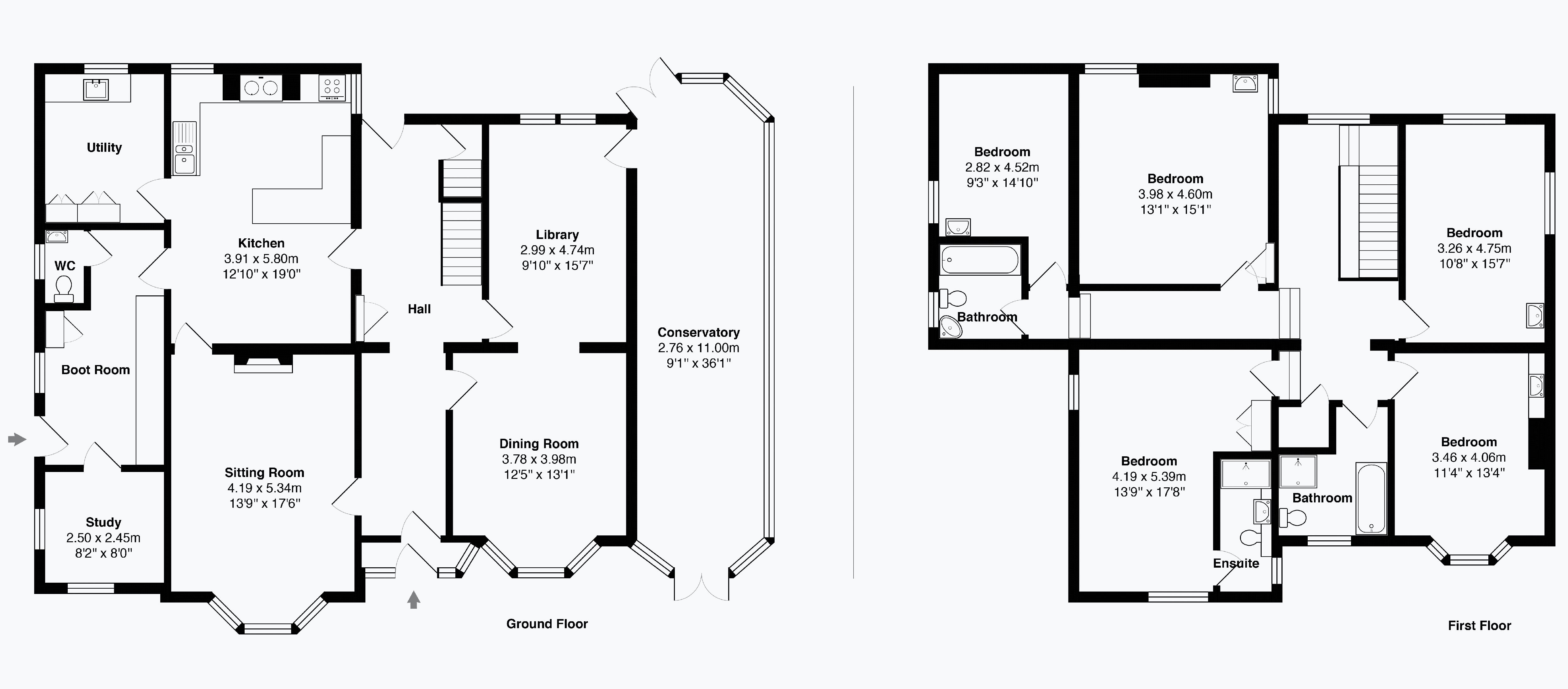
Accommodation
The house faces west and the front door opens into a porch with a door into the reception hall. This has an alcove with a large gilded framed mirror, the substantial staircase and an access to the cellar. On entering the hall the Victorian character is immediately evident and continues throughout. The sitting room is very inviting with a large bay window, shutters, a window seat, shelves, wall lights and a cast iron fire with a tiled inserts and a marbled slate surround and mantle. Above is another gilded framed mirror. The room is approached from the hall and there is a door through into the kitchen.On the right of the hall is the dining room which again has a bay window and an arch into a library/snug with a door through into a large conservatory with French doors at each end and the centre into the gardens.
****
The kitchen/breakfast room is centrally situated, has a tiled floor and plenty of space for the breakfast table with a bench seating. It's well fitted with John Franklin bespoke kitchen units including an extensive range of cupboards including a peninsular unit. There is a gas fired Aga in an Inglenook style setting with an attractive tiled surround. Other integrated appliances include concealed lighting, a dishwasher, fridge, freezer, oven, hob and extractor. Off the kitchen is a utility room with tiling, a Belfast sink, fitted cupboards, shelves and space for a washing machine, dryer and deep freeze/fridge.From the kitchen a door leads into the boot room which has flagstones, shelving, coat hooks, store cupboards, a side garden door and a cloakroom with basin and wc. At the other end of the boot room is a study.
First Floor
The staircase rises to a central landing where there is loft access and airing cupboard. The main bedroom is on the north-west corner and has an en suite shower room with a basin, wc, and shower cubicle. The room also has fitted cupboards. There are four other bedrooms, all having hand basins. There are also two other bathrooms one with a bath and the other will both a bath and a shower.
The Cellar
A door in the rear hall opens to a staircase which runs down to a cellar in which the central heating boiler is housed.
The Gardens
The driveway enters the property, passing the coach house, and continuing through the gardens to a parking and turning area between the house, cottage and walled garden.In front of the house is a splendid lawn bounded on the northern and western sides by wide, tall laurel hedges which ensure it's great privacy. There are several magnificent trees within this area including a eucalyptus and several Robinia. There are also shrub borders and in front of the house are flower beds and a very sunny well sheltered terrace approached directly from the conservatory.
*****
The garden continues along the south side of the house to a beautiful garden on the east side again with lawns shrubs, a Magnolia and apple trees.In front of the cottage is a splendid well tended lawned garden with a profusion of rose and flower beds which must be seen to be appreciated.Behind the cottage is a stone wall, clad with climbing roses and clematis, with a small gateway into the large kitchen garden which is screamed and sheltered by tall hedges and which is currently mainly grassed.
The Cottage
This is a pretty building again clad with climbing roses around its canopy which shelters the front door. The accommodation includes a conservatory, sitting room, kitchen, two bedrooms and a bathroom. All electric heating.For many years the cottage has been successfully let on a holiday basis.
The Coach House
This building is situated alongside the entrance and has a garage store and a large workshop. There is also scope for many other uses as it is clear upon viewing.
Other points
Mains services and gas central heating. Freehold
About the area
Glastonbury has been a religious centre throughout history and back into the times of legends. The Celtic monastery evolved into one of England's wealthiest and most influential abbeys and the town grew up alongside it. Today it's a small but thriving town and a major tourist venue, welcoming thousands of visitors each year. Medieval Glastonbury - designated a conservation area - clusters around the evocative ruins of the Abbey. Just 5 miles from Glastonbury is Wells which is the smallest city in England (population 10,000). Its centre is the marketplace (local markets twice a week) surrounded by many medieval buildings including the Cathedral and moated Bishops Palace.
******
Immediately to the south (2 miles) of Glastonbury is the town of Street with a large shopping centre and these centres provide a huge range of facilities and amenities.There are excellent local and independent schools including Millfield, Wells Cathedral, Strode College, Downside, All Hallows and the Bruton schools. About 12 miles south east is Castle Cary station with a main rail line to London.
Directions
From the top of Glastonbury High Street turn left onto Wells Road and continue for 400 yards. St. Edmunds House is on the right hand side behind a stone wall and a high laurel hedge.
Important Notice
Roderick Thomas, their clients and any joint agents state that these details are for general guidance only and accuracy cannot be guaranteed. They do not constitute any part of any contract. All measurements are approximate and floor plans are to give a general indication only and are not measured accurate drawings. No guarantees are given with regard to planning permission or fitness for purpose. No apparatus, equipment, fixture or fitting has been tested. Items shown in photographs are not necessarily included. Purchasers must satisfy themselves on all matters by inspection or otherwise. VIEWINGS - interested parties are advised to check availability and current situation prior to travelling to see any property.

Agent Statistics (Based on 1 Reviews) :