The UK's Largest Customer Review Website for the Property Industry
The UK's Largest Customer Review Website for the Property Industry
Back to Property Listings
Gladstone Place, Brighton
THREE DOUBLE BEDROOMS | FURNISHED | £157PPPW | AVAILABLE 04/09/2026 | BILLS INCLUDED OPTIONAL
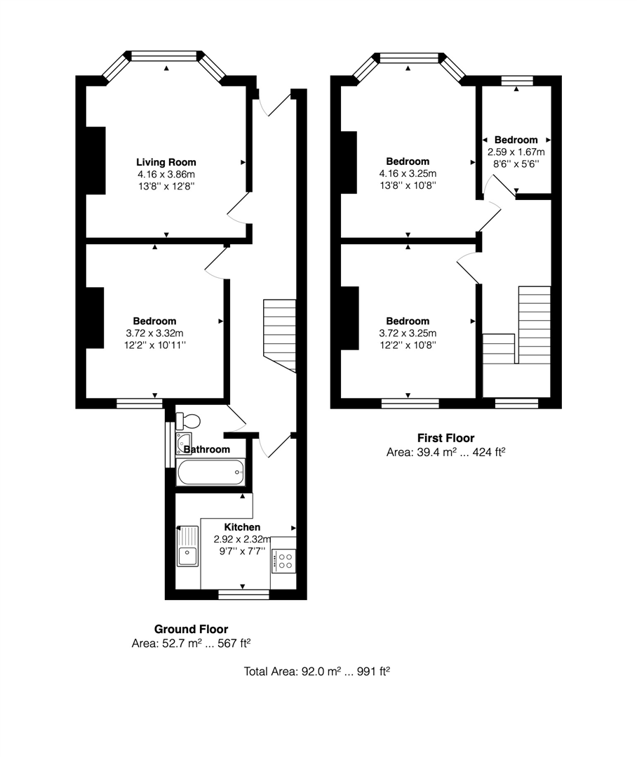
Nestled in the vibrant area of Gladstone Place, Brighton, this spacious three-bedroom terraced house is an ideal choice for students seeking comfort and convenience. The property boasts a separate living room, providing a welcoming space for relaxation and socialising. Each of the three bedrooms is generously sized, ensuring ample room for study and rest, with double beds to enhance your comfort.
In addition to the well-appointed bedrooms, the house features a spare room that can be utilised for studies or as extra storage, catering to the needs of modern student life. The layout of the home promotes a sense of space and functionality, making it perfect for both individual and shared living.
The location offers easy access to local amenities, transport links, and the lively atmosphere that Brighton is renowned for. This property presents an excellent opportunity for those looking to enjoy a balanced lifestyle while pursuing their studies. Don't miss the chance to make this charming house your new home.

This property is marketed by

Kendrick Property Services - Brighton, Brighton, BN2
4.6/5 Rating
(113) reviews
Agent Statistics (Based on 113 Reviews) :