The UK's Largest Customer Review Website for the Property Industry
The UK's Largest Customer Review Website for the Property Industry
Back to Property Listings
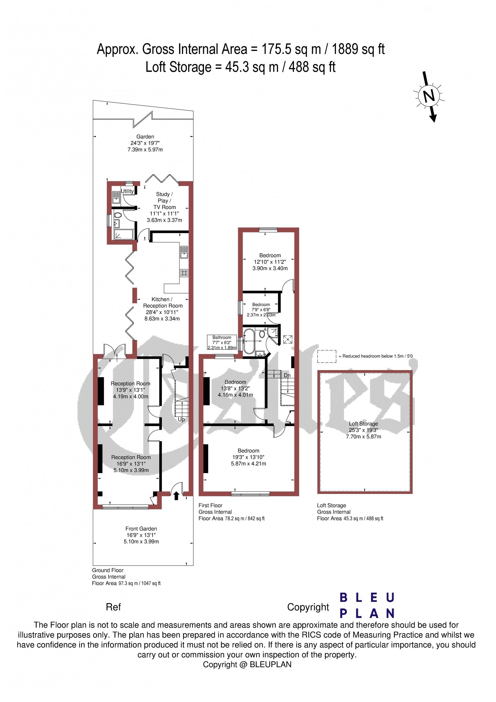
Gisburn Road, N8
An exquisite four/five-bedroom, end-of-terrace, period family home. The property has recently undergone a complete, contemporary refurbishment and includes an abundance of essential features to suit the modern family.
Further comprising spacious through-reception, kitchen/reception, bathroom, shower-room, utility room, landscape designed, eco-friendly, southerly-facing, rear gardens and study/playroom.
Benefiting from bright and well-proportioned rooms, fully-fitted kitchen, Cat 6 cabling and further potential to develop the large roof space (STPP), currently boarded with lighting and pull down ladder.
Ideally positioned for Hornsey Station, Rokesly school and the array of amenities on High Street Hornsey and Crouch End Broadway.
Offered with no onward chain.
An early viewing is highly recommended.

This property is marketed by

Castles Estate Agents (London) - Crouch End, London, N8
5/5 Rating
(939) reviews
Agent Statistics (Based on 939 Reviews) :