The UK's Largest Customer Review Website for the Property Industry
The UK's Largest Customer Review Website for the Property Industry
Back to Property Listings
Garth Avenue, Normanton
Situated in this popular residential area is this THREE bedroom semi detached property benefitting from ENCLOSED rear garden and DRIVEWAY parking. VIEWING ESSENTIAL. EPC rating D60.
A deceptively spacious three bedroom semi detached house situated in this popular residential neighbourhood with off street parking and a lovely garden to the rear.
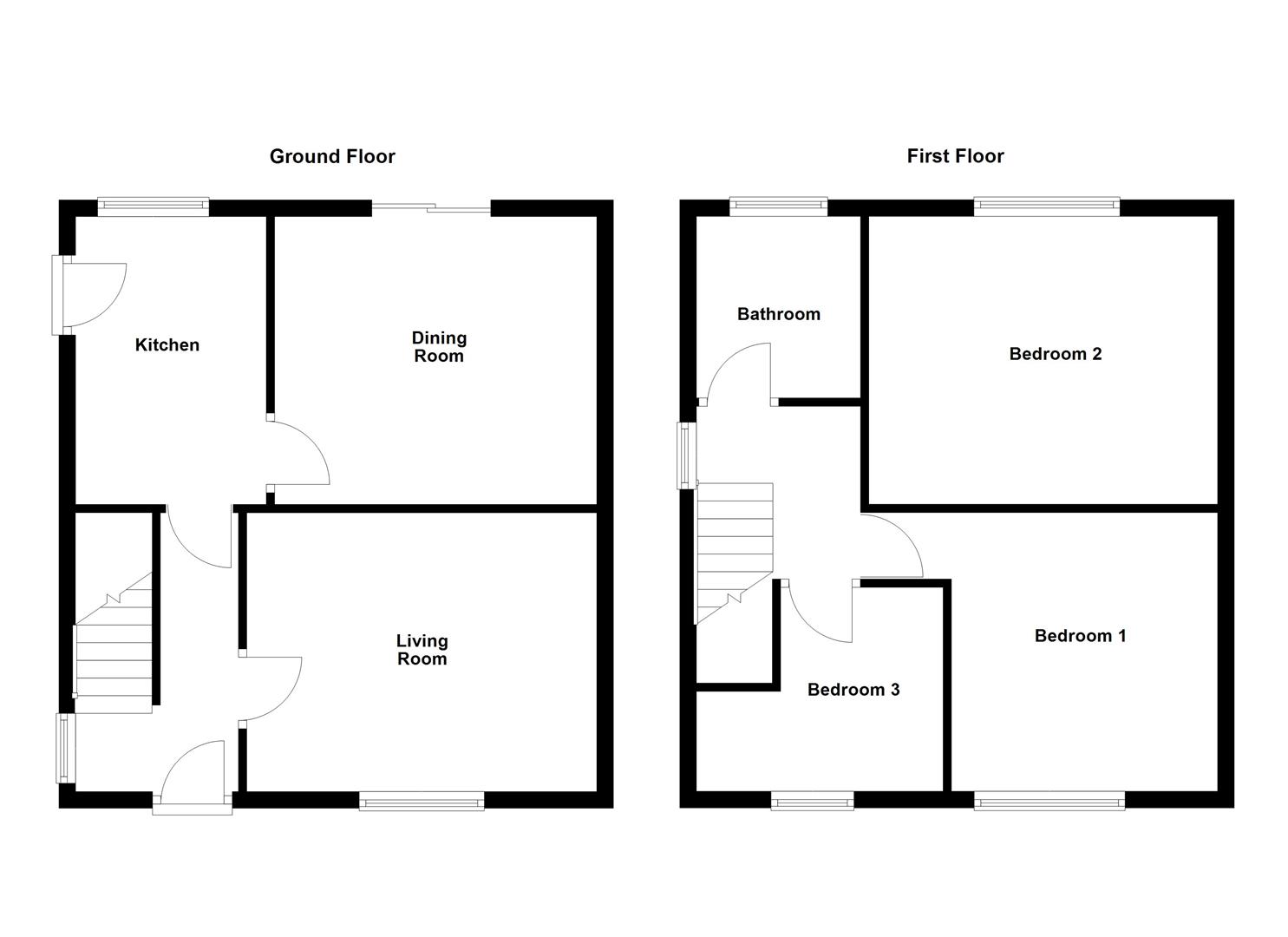
With a gas fired central heating system and sealed unit double glazed windows, this comfortable family home is approached via a welcoming entrance hall that leads through into a good sized living room to the front of the house. To the rear there is a separate dining room as well as a kitchen overlooking the back garden. To the first floor there are two double bedrooms plus a further single bedroom, all served by the family bathroom. Outside, the property has driveway parking and a shrubbery garden to the front whilst round to the rear there is a larger garden with a paved patio, lawned garden and brick built outhouse.
The property is situated in this popular residential area with an easy reach of a good range of local shops, schools and recreational facilities. A broad range of amenities are available in the nearby town centre of Normanton which also has it's own railway station and ready access to the national motorway network.
Accommodation -
Entrance Hall - UPVC double glazed front entrance door, UPVC double glazed window to the side, dado panelling. Stairs to first floor landing. Doors to living room and kitchen.
Living Room - 4.2m x 3.4m (13'9" x 11'1") - UPVC double glazed window to the front, dado rail, built in display cupboards, feature fire place with gas fire and television stand.
Dining Room - 3.9m x 3.5m (max) (12'9" x 11'5" (max) ) - Sliding UPVC double glazed French doors to the rear, ceramic tiled floor, double central heating radiator.
Kitchen - 3.5m x 2.3m (11'5" x 7'6") - UPVC double glazed window to the rear, door to the side. A range of fitted wall and base units with tiled worktops and splashbacks, incorporating a stainless steel sink unit and a four ring gas hob. Built in oven, space and plumbing for washing machine, space for an undercounter fridge. Door to dining room.
First Floor Landing - UPVC double glazed window to the side, loft access point. Doors to three bedrooms and the house bathroom.
Bedroom One - 3.4m x 3.2m (11'1" x 10'5") - UPVC double glazed window to the front, central heating radiator, fitted wardrobes.
Bedroom Two - 4.2m x 3.5m (max) (13'9" x 11'5" (max)) - UPVC double glazed window to the rear, central heating radiator, fitted wardrobes.
Bedroom Three - 3.1m x 2.5m (10'2" x 8'2") - UPVC double glazed window to the front, central heating radiator, over bulkhead shelving.
Bathroom - 2.2m x 2.0m (7'2" x 6'6") - Frosted UPVC double glazed window to the rear, central heating radiator, extractor fan. Fitted with a three piece suite comprising of a panelled bath with electric shower over, pedestal wash basin and a low flush W.C..
Outside - To the front the property has driveway parking together with a shrubbery garden. A pathway passes the side of the house to the rear where there is a larger garden with a paved patio sitting area, lawn, further beds and borders as well as a brick built outhouse.
Council Tax Band - The council tax band for this property is A.
Floor Plans - These floor plans are intended as a rough guide only and are not to be intended as an exact representation and should not be scaled. We cannot confirm the accuracy of the measurements or details of these floor plans.
Epc Rating - To view the full Energy Performance Certificate please call into one of our local offices.
Viewings - To view please contact our Normanton office and they will be pleased to arrange a suitable appointment.

This property is marketed by

Richard Kendall Estate Agent - Normanton, Normanton, WF6
4.9/5 Rating
(1653) reviews
Agent Statistics (Based on 1653 Reviews) :