The UK's Largest Customer Review Website for the Property Industry
The UK's Largest Customer Review Website for the Property Industry
Back to Property Listings
Fulmer Road, London
3 Bedroom End of Terrace with a large workshop, Garden & Driveway Fulmer Road, Beckton
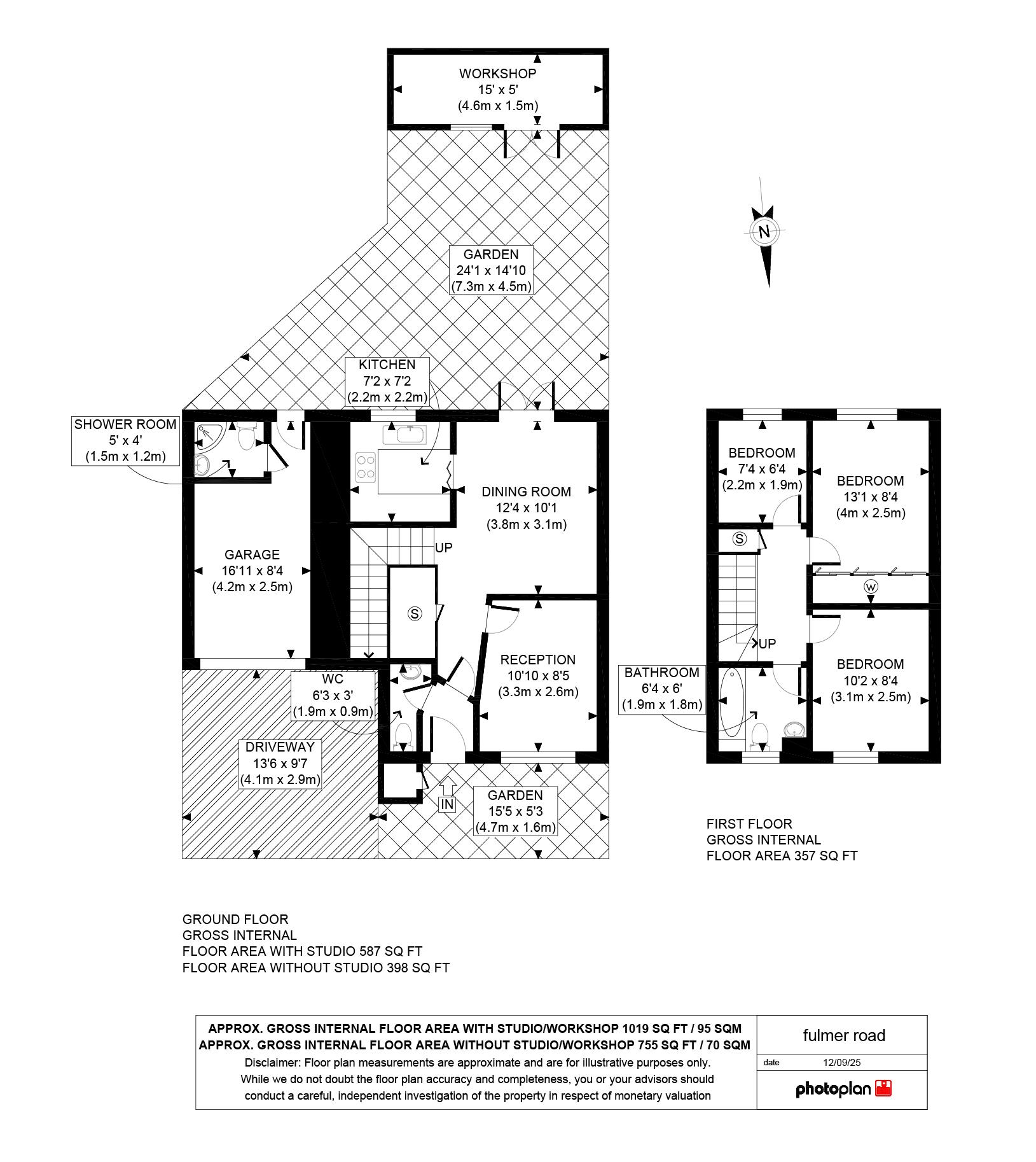
Bryants are delighted to present this spacious three bedroom end of terrace home, ideally located on Fulmer Road in Beckton. Offering versatile living accommodation with a private garden, and large workshop, this property is well-suited to families or buyers seeking flexible space.
Ground Floor: The home opens with a welcoming hallway leading to a bright dining area with French doors opening onto the garden, a separate fitted kitchen, and a convenient W/C.
First Floor:
Upstairs, the property offers three generously sized bedrooms and a family bathroom.
Outside:
The private rear garden features a patio and artificial lawn, creating a low-maintenance outdoor space perfect for relaxing or entertaining. A large workshop adds further practicality, with potential for storage, a gym, or creative use. A front driveway provides valuable off-street parking.
Location:
Fulmer Road is a quiet residential street with excellent local amenities. Beckton DLR is within walking distance, offering direct access to Canary Wharf, Stratford, and the City, while the A13 and A406 provide quick road links to London City Airport and beyond. Shopping is close at hand with Beckton Triangle and Gallions Reach Retail Parks offering supermarkets, shops, and dining options. Families will appreciate the nearby schools including Winsor Primary and Kingsford Community School, as well as green spaces such as Beckton District Park and New Beckton Park. Stratford`s Westfield Shopping Centre is just a short drive or DLR journey away, making this location both convenient and connected.
garden - 24'1" (7.34m) x 14'10" (4.52m)
reception - 10'10" (3.3m) x 8'5" (2.57m)
reception 2 - 12'4" (3.76m) x 10'1" (3.07m)
kitchen - 7'2" (2.18m) x 7'2" (2.18m)
garage - 16'11" (5.16m) x 8'4" (2.54m)
bedroom 1 - 13'1" (3.99m) x 8'4" (2.54m)
bedroom 2 - 10'2" (3.1m) x 8'4" (2.54m)
bedroom 3 - 7'4" (2.24m) x 6'4" (1.93m)
bathroom - 6'4" (1.93m) x 6'0" (1.83m)
Notice
Please note we have not tested any apparatus, fixtures, fittings, or services. Interested parties must undertake their own investigation into the working order of these items. All measurements are approximate and photographs provided for guidance only.
Council Tax
London Borough Of Newham, Band D
Utilities
Electric: Mains Supply
Gas: Mains Supply
Water: Mains Supply
Sewerage: Mains Supply
Broadband: Unknown
Telephone: Unknown
Other Items
Heating: Not Specified
Garden/Outside Space: No
Parking: No
Garage: No

Agent Statistics (Based on 13 Reviews) :