The UK's Largest Customer Review Website for the Property Industry
The UK's Largest Customer Review Website for the Property Industry
Back to Property Listings
Franklin Road, Penge, London
Bought As Seen!
Propertyworld proudly presents what we would describe as a rare find - being a home with endless opportunities, boasting space with period charm.
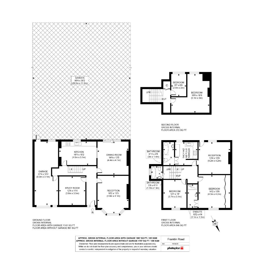
Built over three floors, the overall size of the house is a whopping 1,978 Sq. ft (inclusive of the integral garage)
Sitting with the heart of Penge, this home is minutes walk of the bustling high street for local amenities, eateries and gastropubs, as well as THREE MAINLINE RAILWAY STATION - available at either Penge West Anerley and Kent House, However best of all the Iconic Crystal Palace Park is just a stroll walk away.
The property does require complete modernisation throughout and at present divided into two almost two separate dwellings.
To summarize is as follows:
The ground floor offers four rooms - being kitchen, two reception rooms and a large study over 12ft x 11ft, not forgetting the garage measuring in excess of 27ft long.
On the first floor there are 6-7 rooms, currently arranged as having three bathrooms, W/c, two bedrooms, a lounge and a kitchen - all if which are doubles in size.
On the third and final floor, there are two further bedrooms, one single bedroom and very generously sized L-shaped room.
Outside, the rear garden is in excess of 90ft long and pretty wide too. There's a also nice sized front garden with access to the garage and drive in front.
Please note, that we ask that all prospective purchasers that wish to view must be in a position to proceed - having either nothing to sell, or be under offer in a complete chain.
This will be a unique purchase with almost a blank canvass for the new owner to tailor this home to their own personal specification
The house is simply huge and too big for us! There are just so many rooms and we are now the second generation here. There's a lot of rooms and fireplaces as a feature in some of the rooms.
We will miss the neighbours, which have become like family over the years.

Agent Statistics (Based on 2753 Reviews) :