The UK's Largest Customer Review Website for the Property Industry
The UK's Largest Customer Review Website for the Property Industry
Back to Property Listings
Foxroyd Lane, Dewsbury
An immaculately presented four bedroom detached home with STUNNING VIEWS towards Emley Moor. VIRTUAL TOUR AVAILABLE. EPC rating D59.
Situated in a highly sought after semi rural setting, this exceptional four bedroom detached family home is presented to an outstanding standard throughout and occupies a generous 0.3 acre plot. It boasts a stunning open-plan kitchen/dining/living space, ample off street parking with an integral garage and a beautifully landscaped rear garden with far reaching views towards Emley Moor.
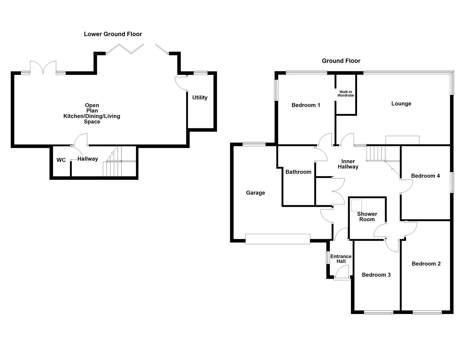
The accommodation briefly comprises a welcoming entrance hall and inner hallway with stairs leading to the lower ground floor, where a contemporary open-plan kitchen/dining/living area is complemented by a separate utility room and guest w.c. The ground floor features a spacious lounge, four well proportioned bedrooms and a modern family bathroom. Externally, the property benefits from a driveway providing parking for three vehicles and an integral garage. To the rear, a raised composite decked terrace with glass balustrade offers the perfect space for outdoor entertaining while enjoying panoramic rural views. The garden also features an artificial lawn and paved patio area, designed for low maintenance enjoyment.
Ideally located in the desirable area of Thornhill, the property is well positioned for access to a range of local amenities, well regarded schools, and excellent transport links to Wakefield, Ossett, Horbury, and beyond.
An internal inspection is essential to fully appreciate the quality, space, and setting of this impressive home. Early viewing is highly recommended.
Accommodation -
Entrance Hall - 2.04m x 1.35m (6'8" x 4'5") - Composite front entrance door, UPVC double glazed window to the side and door to the inner hallway.
Inner Hallway - 4.93m x 5.48m (max) x 1.8m (min) (16'2" x 17'11" ( - Oak staircase with glass balustrade leading down to the lower ground hallway, central heating raidator, double doored storage cupboard, doors to the garage, four bedrooms, shower room, bathroom and lounge.
Lower Ground Hallway - Central heating radiator, doors to the downstairs w.c. and open plan kitchen/dining/living space.
W.C. - 1.82m x 0.96m (5'11" x 3'1") - Dado rail, low flush w.c. and pedestal wash basin.
Kitchen/Dining /Living Space - 10.16m x 5.48m (max) x 4.11m (min) (33'3" x 17'11" - Range of contemporary wall and base units with quartz work surface over, inset stainless steel sink and drainer with mixer tap, space for a cooker with extractor hood, integrated wine rack and wine cooler. Integrated dishwasher, integrated fridge/freezer, central island with quartz work surface over the base units, a set of bi-folding doors and UPVC double glazed French doors to the rear decked patio, two central heating radiators and door through to the utility.
Utility - 1.5m x 3.16m (4'11" x 10'4") - Range of contemporary wall and base units with quartz work surface over, 1 1/2 stainless steel sink and drainer with mixer tap, space and plumbing for a washing machine and tumble dryer. UPVC double glazed window overlooking the rear, spotlights to the ceiling and central heating radiator.
Ground Floor -
Lounge - 6.7m x 4.1m (max) x 1.68m (min) (21'11" x 13'5" (m - Two central heating radiators, log burning stove with stone tiled hearth and ornate mantle, coving to the ceiling, UPVC double glazed windows to the rear with fantastic rural far reaching views towards Emley Moor.
Bedroom One - 3.33m x 4.12m (10'11" x 13'6") - UPVC double glazed windows to the side and rear with fantastic rural far reaching views towards Emley Moor, central heating radiator, an opening through to the walk in wardrobe (1.15m x 2.35m).
Bedroom Two - 5.27m x 2.77m (max) x 2.6m (min) (17'3" x 9'1" (ma - Vaulted ceiling, UPVC double glazed window to the front, central heating radiator and spotlights.
Bedroom Three - 4.11m x 2.74m (13'5" x 8'11") - UPVC double glazed window to the front, vaulted ceiling, spotlights and central heating radiator.
Bedroom Four - 4.96m x 2.74m (16'3" x 8'11") - UPVC double glazed window to the side, picture rail, vaulted ceiling and central heating radiator.
Bathroom/W.C. - 3.5m x 2.27m (max) x 1.93m (min) (11'5" x 7'5" (ma - Chrome ladder style radiator, low flush w.c.. 'his and hers style' sinks with quartz work surface over and two mixer taps, stand alone roll top bath with mixer tap and shower head attachment.
Shower Room/W.C. - 2.06m x 2.26m (6'9" x 7'4") - Low flush w.c., ceramic wash basin with quartz work surface over and mixer tap, shower cubicle with overhead shower an velux skylight.
Outside - To the front of the driveway is a providing off road parking for three vehicles leading to the garage with power, light and electric roller door. A set of stone paved steps lead down to the front entrance door. To the rear is a spacious raised composite decked patio area, perfect for outdoor dining and entertaining with an artificial lawn and paved patio area. A glass balustrade overlooks the fantastic far reaching views towards Emley Moor with steps down to planted features.
Council Tax Band - The council tax band for this property is E.
Floor Plans - These floor plans are intended as a rough guide only and are not to be intended as an exact representation and should not be scaled. We cannot confirm the accuracy of the measurements or details of these floor plans.
Viewings - To view please contact our Ossett office and they will be pleased to arrange a suitable appointment.
Epc Rating - To view the full Energy Performance Certificate please call into one of our local offices.

This property is marketed by

Richard Kendall Estate Agent - Ossett, Ossett, WF5
4.9/5 Rating
(1653) reviews
Agent Statistics (Based on 1653 Reviews) :