The UK's Largest Customer Review Website for the Property Industry
The UK's Largest Customer Review Website for the Property Industry
Back to Property Listings
Fingal Avenue, Renfrew, PA4
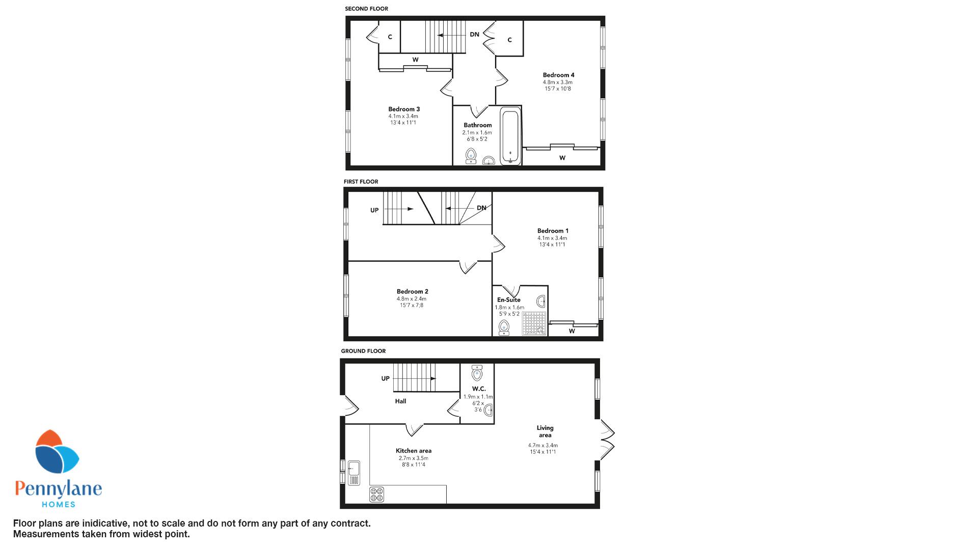
The property is accessed via a welcoming entrance hallway with convenient WC comprising modern two piece white suite, wall mounted towel radiator and undersink vanity unit. There is a beautifully presented open plan living space with lounge situated to the rear and patio door access to the rear garden. The kitchen comprises a combination of wall and floor mounted white units with matching worktop and tile splash-back, and integrated appliances including oven, four burner gas hob and chimney style hood.
On the first floor, the master bedroom is situated to the rear with two large windows flooding the room with natural light, mirror fronted fitted wardrobes and en-suite shower room with corner shower cubicle, full height wall and floor tiling and under sink vanity unit. There is a further double bedroom with Riverside views on this level, currently utility as a second lounge.
On the upper level, there are a further two double bedrooms, each with two windows creating bright and airy spaces and both benefiting from fitted wardrobes. The front top floor bedroom has an additional bulkhead storage cupboard and beautiful uninterrupted views over the River Clyde.
The property benefits from gas central heating and double glazing throughout.
Externally there are fully enclosed garden grounds to the rear and allocated parking as well as unallocated visitor parking bays available.
The property is located on the banks of the River Clyde with a beautiful open outlook. Fingal Avenue is adjacent to the Clyde Walkway offering a fantastic walking route to Xsite Entertainment Complex and Braehead Shopping Centre as well as the Renfrew Ferry and the Renfrew Bridge, a short walk away. All manner of leisure and retail opportunities are available within Braehead and Xsite and all local amenities available a short walk from the property, within Renfrew town centre. The area is served by fantastic public transport links on Kingsinch Road. The M8 Motorway is easily accessible, making this a perfect location for an easy commute to Glasgow City Centre and beyond.
Notice
Please note we have not tested any apparatus, fixtures, fittings, or services. Interested parties must undertake their own investigation into the working order of these items. All measurements are approximate and photographs provided for guidance only.
Council Tax
Renfrewshire Council, Band E
Utilities
Electric: Mains Supply
Gas: Mains Supply
Water: Mains Supply
Sewerage: Mains Supply
Broadband: Unknown
Telephone: Unknown
Other Items
Heating: Gas Central Heating
Garden/Outside Space: Yes
Parking: Yes
Garage: No

Agent Statistics (Based on 197 Reviews) :