The UK's Largest Customer Review Website for the Property Industry
The UK's Largest Customer Review Website for the Property Industry
Back to Property Listings
Finborough Road, Stowmarket
BEAUTIFULLY PRESENTED three bedroom semi detached home for sale in the vibrant town of Stowmarket.
This beautiful home has been lovingly renovated to a high standard by the current owners, with a contemporary and spacious feel throughout the property.
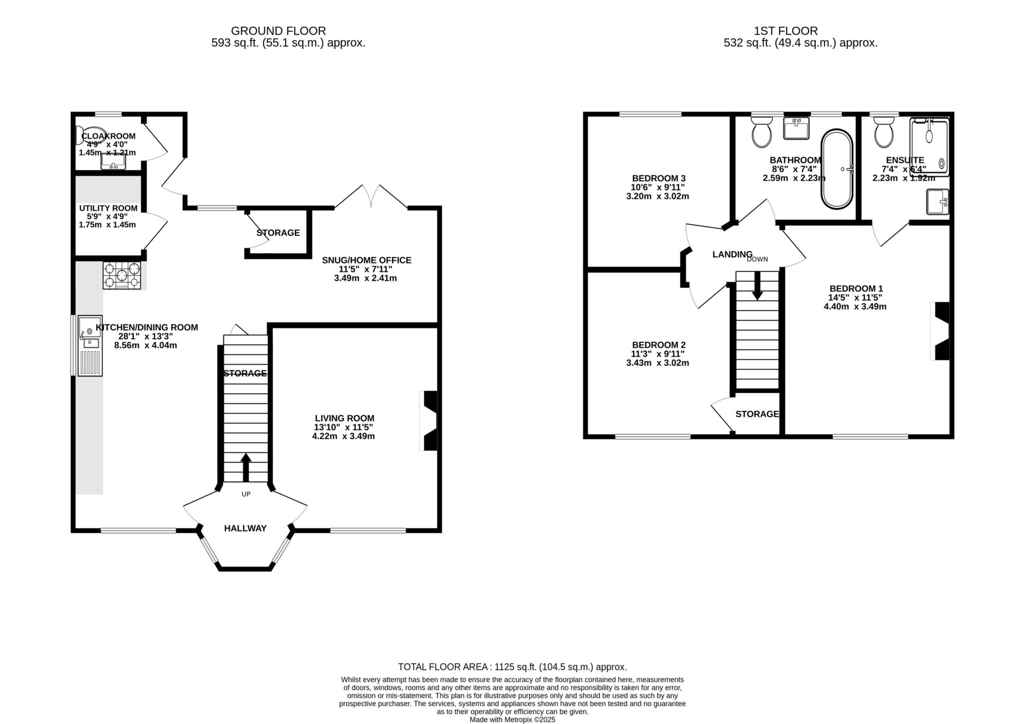
On the ground floor the stunning open plan kitchen diner features wood effect tiled flooring, quartz kitchen worktop, multiple fitted kitchen units with integrated dishwasher and space for American style fridge freezer and range style cooker, and windows to 3 aspects allowing in plenty of natural daylight. At the rear of the kitchen is a separate utility room and cloakroom, and additional snug area tucked round to the right, which would also make an ideal home office or child`s play area.
The snug has French doors opening out on to the landscaped rear garden which has been designed with outdoor relaxation in mind. There is a paved and shingled patio area with wooden pergola to the rear of the house itself, providing an ideal space for outdoor entertaining. Alongside this are 2 large wooden storage sheds. Beyond the paved area is a large lawned garden with well established willow tree to the center. At the very rear of the garden behind the rustic fencing is a home allotment style vegetable garden.
To the front of the property is a large paved and shingled driveway providing ample off road parking for up to 5 cars.
Back inside the property, and still on the ground floor there is the separate living room with log burner feature fireplace and bespoke fitted shutters at the window.
Upstairs are three good sized double bedrooms. The calm and tranquil family bathroom features free standing roll top bath, and there is an additional contemporary designed ensuite shower room to the main bedroom too which features large walk in shower and tiled flooring.
Notice
Please note we have not tested any apparatus, fixtures, fittings, or services. Interested parties must undertake their own investigation into the working order of these items. All measurements are approximate and photographs provided for guidance only.
Council Tax
Mid Suffolk District Council, Band C
Utilities
Electric: Mains Supply
Gas: Mains Supply
Water: Mains Supply
Sewerage: Mains Supply
Broadband: FTTP
Telephone: Landline
Other Items
Heating: Gas Central Heating
Garden/Outside Space: Yes
Parking: Yes
Garage: No

Agent Statistics (Based on 4 Reviews) :