The UK's Largest Customer Review Website for the Property Industry
The UK's Largest Customer Review Website for the Property Industry
Back to Property Listings
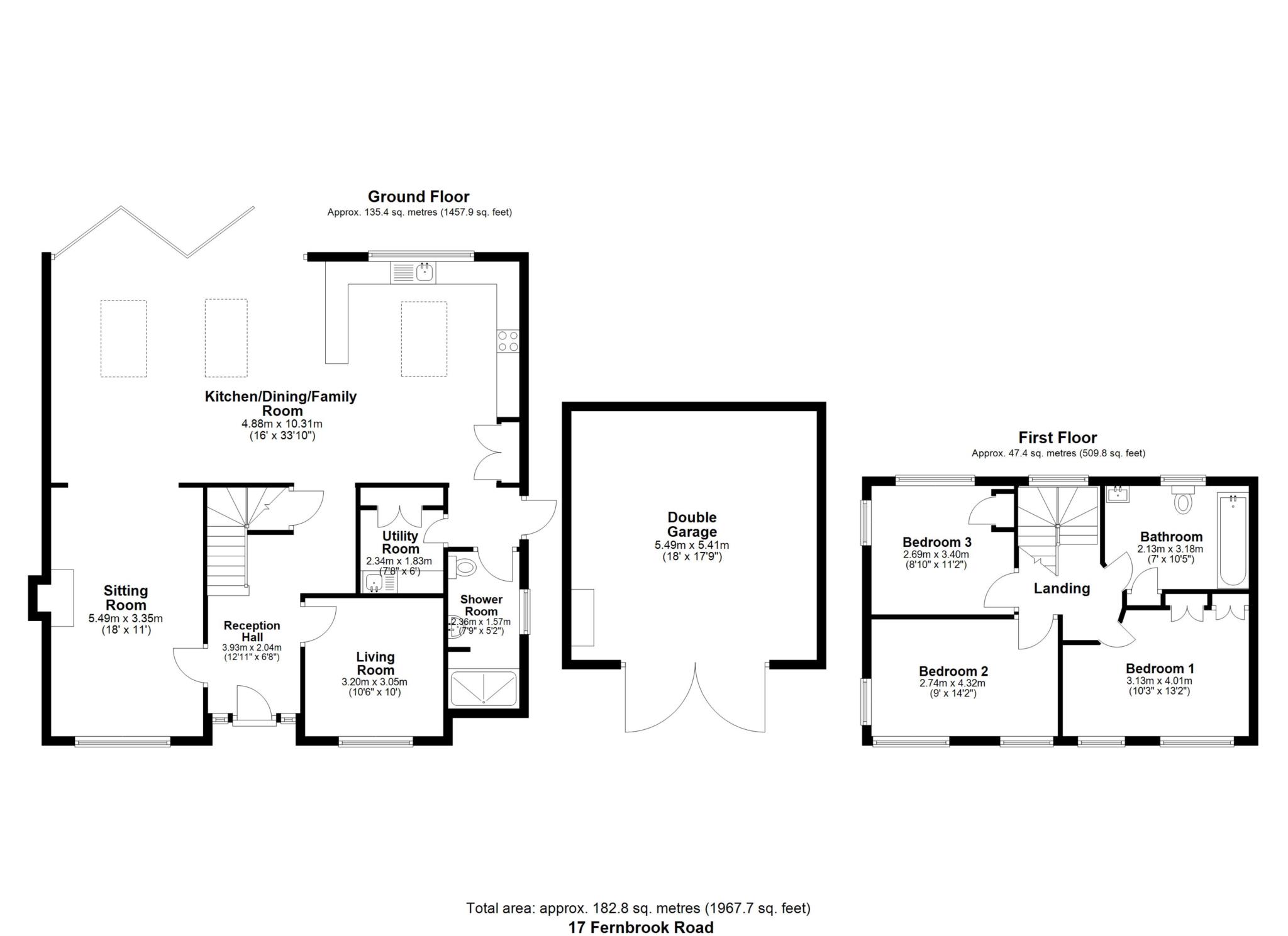
Fernbrook Road, Caversham Heights, Reading
Occupying magnificent private grounds in this sought after leafy setting is this superb detached house having been extended and upgraded to a high specification and offered for sale in immaculate decorative order. The accommodation includes a reception hall with doors off to the living room and the cosy dual aspect sitting room benefiting from a wood burning stove. The stunning open plan kitchen/dining/family room with under floor heating is fitted with an extensive range of units with stone work surfaces with a matching peninsular breakfast bar and high quality integrated appliances. Full width bi folding doors lead to the terrace and there are three overhead skylights. The utility room is well fitted and the shower room/cloakroom is luxuriously appointed. The landing leads to the bathroom and all three double bedrooms with bedrooms one and three benefiting from built in wardrobes. The frontage affords parking for several vehicles with a driveway to the side of the house. The rear garden is beautifully tended being mainly laid to lawn and skirted by established shrub beds and mature trees whilst o the rear is a decked terrace. The double garage/annex is a superb feature of the property being unusually large with a fully functional room perfect for working from home or additional living space. Fernbrook Road is conveniently placed for both Caversham and Reading centres and Reading mainline railway station. The property is in catchment for Ofsted outstanding schooling and is a short walk from parkland. An early viewing is highly recommended.
Notice
Please note we have not tested any apparatus, fixtures, fittings, or services. Interested parties must undertake their own investigation into the working order of these items. All measurements are approximate and photographs provided for guidance only.
Council Tax
Reading Borough Council, Band F
Utilities
Electric: Unknown
Gas: Unknown
Water: Unknown
Sewerage: Unknown
Broadband: Unknown
Telephone: Unknown
Other Items
Heating: Gas Central Heating
Garden/Outside Space: Yes
Parking: Yes
Garage: Yes

This property is marketed by

Bridges Estate Agents (Reading) - Caversham Reading, Reading, RG4
3.7/5 Rating
(3) reviews
Agent Statistics (Based on 3 Reviews) :