The UK's Largest Customer Review Website for the Property Industry
The UK's Largest Customer Review Website for the Property Industry
Back to Property Listings
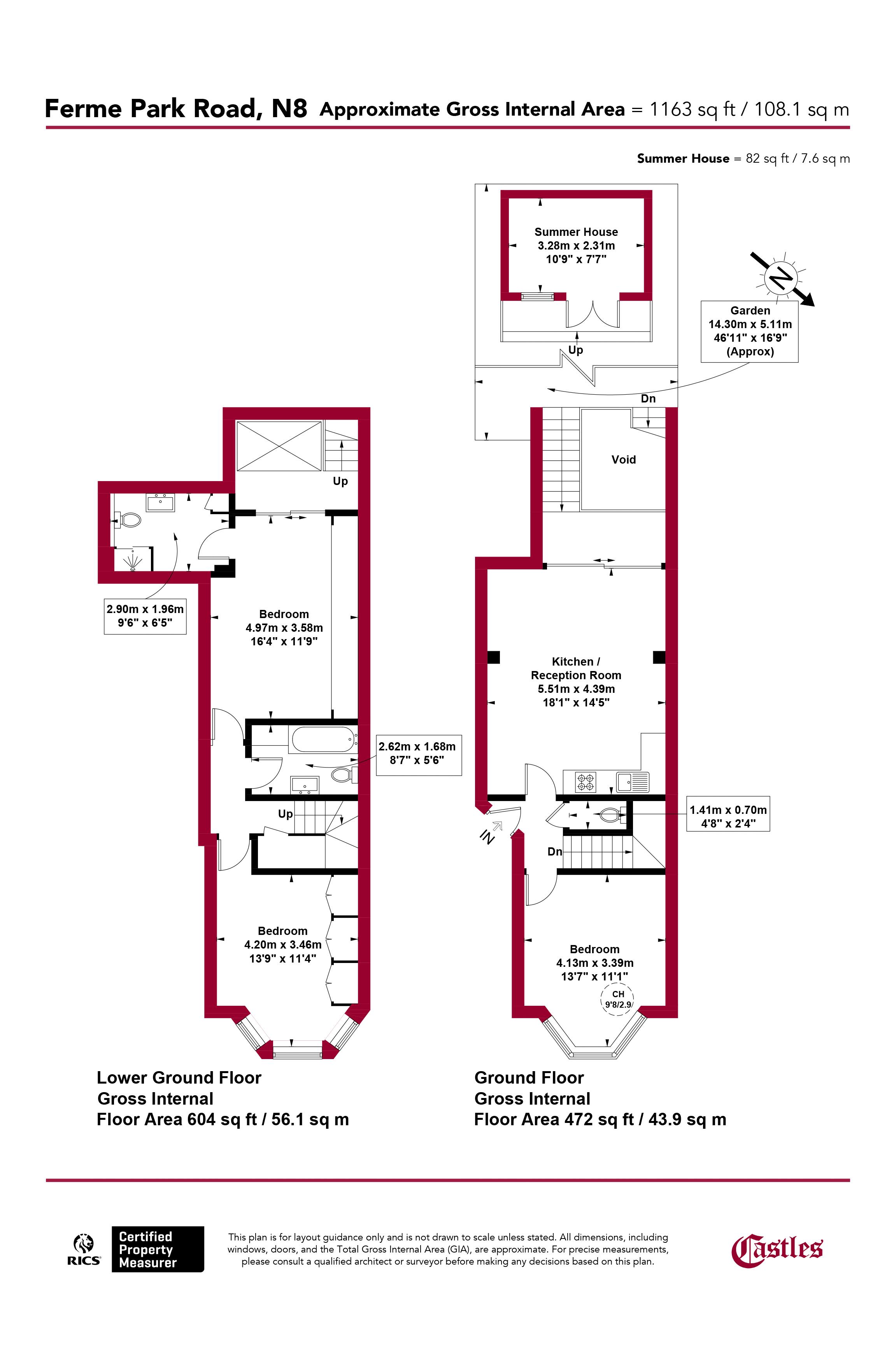
Ferme Park Road, N8
Hewn from an imposing double-fronted period residence in this beautifully presented three-bedroom, split level, conversion. Ideally located within a short walk to Crouch End Broadway, Hornsey Station and a multitude of local bus links into Finsbury Park, The City and West End.
Further comprising open-planned kitchen/reception, en-suite to principal bedroom, family bathroom and guest W.C. Further benefitting from ample storage and south-west facing private rear garden and Studio.

This property is marketed by

Castles Estate Agents (London) - Crouch End, London, N8
5/5 Rating
(939) reviews
Agent Statistics (Based on 939 Reviews) :