The UK's Largest Customer Review Website for the Property Industry
The UK's Largest Customer Review Website for the Property Industry
Back to Property Listings
Fenton Road, Lockwood, Huddersfield
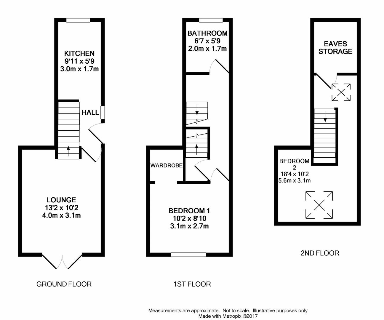
*REDUCED* *ATTENTION FIRST TIME BUYERS AND PROPERTY INVESTORS* This truly delightful, end of mews property offers modern accommodation which is set over three storeys featuring a charming multi-fuel burner stove, modern kitchen and recently fitted shower room. Set within this popular location of Huddersfield, within easy access to local amenities, well regarded schools, good bus routes to the town centre and easy access to the M62 motorway network. The property boasts double glazing and gas central heating throughout, briefly comprising of: entrance side door leading to hallway, access to a separate modern kitchen and a well appointed lounge with multi-fuel burner and patio doors leading to the rear garden. To the first floor landing: a good sized double bedroom and recently fitted shower room. Staircase leads to the second floor attic space with twin aspect velux windows and useful under eaves storage. Externally the property boasts off road parking to the front aspect with path leading to the side and rear elevation where there is a low maintenance, patio garden. Viewings are highly recommended to appreciate the property on offer! Telephone ADM Residential today to arrange your viewing! This property is available with *NO VENDOR CHAIN*
Entrance Side Door - UPVC side entrance door with featured double glazed opaque glass panel and side panel. Leads to:
Hallway - Entrance hallway with access to the kitchen and the lounge, offering under stairs storage and finished with a wall mounted gas central heated radiator and vinyl effect flooring:
Modern Kitchen - 9'3 x 5'9 - Modern kitchen with uPVC double glazed window overlooking the front aspect featuring a matching range of base and wall mounted units in high gloss anthracite grey with white gloss doors, complimentary laminated working surfaces, tiled splash backs and an inset stainless steel sink unit with drainer and mixer tap. Integrated electric oven with four ring gas hob and extractor hood over, wall mounted combi-boiler, plumbing for an automatic washing machine and space for fridge freezer. Finished with fluorescent tube lighting, chrome effect fixing and vinyl effect flooring:
*Please note* - the fridge freezer can be purchased under further negotiation.
Lounge With Multi Fuel Burner - 13'1 x 10'5 - A charming, well appointed and tastefully designed lounge with uPVC patio doors leading out onto the rear garden. Featuring a multi-fuel burner with bespoke tiled back and hearth, finished with T.V. Point, telephone point and vertical wall mounted gas central heated radiator. Staircase rises to the first floor landing:
Multi Fuel Burning Stove - Multi fuel burner stove:
Staircase To First Floor - Staircase rises to the first flooring landing with uPVC double glazed window to the side aspect and doors leading to:
Shower Room - 5'6 x 5'6 - A recently fitted, fully panelled shower room with uPVC double glazed opaque window to the front aspect. Featuring a three piece suite in white with chrome effect fittings. comprising of: double walk-in shower cubicle with mains fitted shower over, hand wash vanity basin with waterfall mixer tap and low level flush w/c. Finished with inset ceiling spotlighting, wall mounted chrome heated towel rail and wood effect vinyl flooring:
Primary Bedroom - 12'6 x 10'2 - A generously sized primary bedroom with uPVC double glazed window overlooking the rear aspect. Featuring a useful walk-in storage area and finished with a wall mounted gas central heated radiator:
Staircase To Second Floor - Staircase rises to the second floor which leads to an attic room:
Attic Space/Office - 16'7 x 10'3 - A well appointed attic space/office with twin aspect velux windows to the front and rear elevations benefitting from views across Castle Hill. Finished with featured glass banister and useful under eaves storage:
Externally - Externally, the property benefits from a tarmac driveway which offers off road parking to the front aspect for one vehicle, stone steps lead to the side entrance door and a path leads to the rear. To the rear aspect is a southerly facing tiered, flagged patio garden making it an ideal, low maintenance space for enjoying the summer months. Finished with brick wall boundaries and a useful outdoor storage shed:
About The Area - About the area are as follows:
With fantastic commuter links to the Motorway and great schools in the immediate vicinity:
Local Schools: Mount Pleasant Primary School, Moor End Academy, Brambles Primary Academy, Luck Lane, A SHARE Primary Academy, Beaumont Primary Academy
Conveniently located approximately 2.5 miles from junction 23 of the M62 and 2 miles from Huddersfield town centre. Locally are a range of popular schools for children of all ages as well as access to nearby amenities and the Huddersfield Infirmary.
About The Viewings - Please contact us to arrange a convenient appointment for you on:
Tel- or our office mobile on Mobile Number
Email - sales@admresidential.co.uk
Epc Link - https://find-energy-certificate.service.gov.uk/energy-certificate/3820-0364-0022-3005-0933
Council Tax Bands - The council Tax Banding is "A"
Please check the monthly amount on the Kirklees Council Tax Website.
Tenure - This property is Freehold.
Stamp Duty - Stamp Duty thresholds, raised during the September 2022 mini-budget, are set to revert to their previous levels on 1 April 2025. Currently, home-movers pay no Stamp Duty on properties up to £250,000, and first-time buyers get relief on homes up to £425,000.
Home-movers will pay no stamp duty on properties up to £125,000, with 2% due on the next £125,000, and the first-time buyer threshold will drop to £300,000, with no first-time buyer relief on purchases above £500,000.
If your property transaction completes after 31 March 2025, they could incur additional Stamp Duty cost.
Boundaries And Ownerships - Please Note, that the boundaries and ownerships have not been checked on the title deeds for any discrepancies or rights of way. It is advised that prospective purchasers should make their own enquiries before proceeding to exchange of contracts.
Disclaimer - Although these particulars are thought to be materially correct their accuracy cannot be guaranteed and they do not form part of any contract. These particulars, whilst believed to be accurate are set out as a general outline for guidance only and do not constitute any part of an offer or contract.
All measurements are approximate and quoted in metric with imperial equivalents and for general guidance only and whilst every attempt has been made to ensure accuracy, they must not be relied on. We advise you take your own measurements prior to ordering any fixtures, fittings or furnishings.
Appliances & services have not been tested. Intending purchasers should not rely on them as statements of representation of fact, but must satisfy themselves by inspection or otherwise as to their accuracy.
No person in this firm's employment has the authority to make or give any representation or warranty in respect of the property.
Copyright Adm Particulars - Please Note: Unauthorized reproduction prohibited.

This property is marketed by

ADM Residential Estate Agents - Milnsbridge, Huddersfield, HD3
4.9/5 Rating
(397) reviews
Agent Statistics (Based on 397 Reviews) :