The UK's Largest Customer Review Website for the Property Industry
The UK's Largest Customer Review Website for the Property Industry
Back to Property Listings
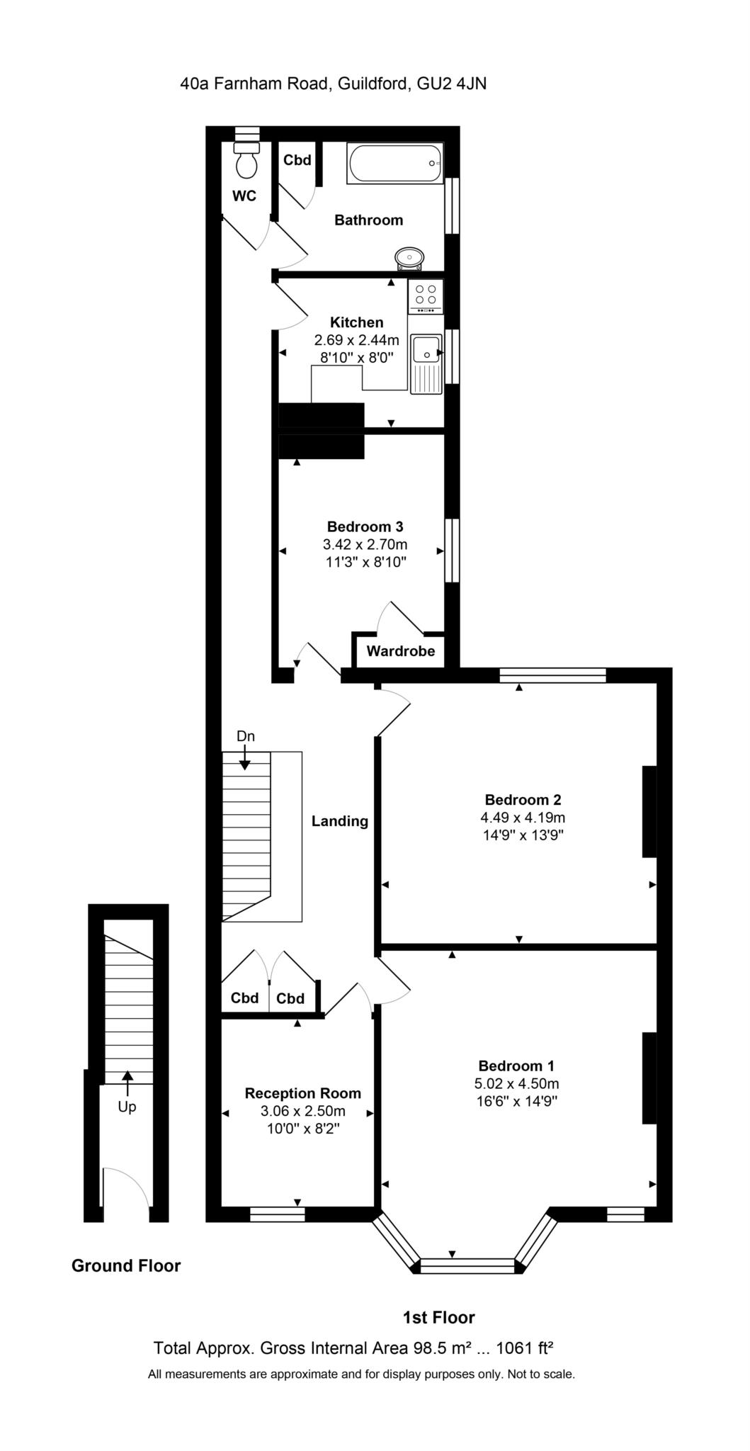
Farnham Road, Onslow
ROOM 1 - LET TO A SINGLE OCCUPANT
ROOM 2 - AVAILABLE FOR COUPLES: 31 JANUARY 2025
NOW WITH UPGRADES TO THE ROOM! (55 INCH TV WALL-FITTED SCREEN INSTALLED. FRIDGE FREEZER INSTALLED FOR EXCLUSIVE USE. BLACK SOFA INSTALLED WITH CUSHIONS.)
ROOM 3 - AVAILABLE FOR COUPLES: 10 JANUARY 2025
MASSIVE DOUBLE ROOM FOR A COUPLE OR DOUBLE OCCUPANCY - BARGAIN FOR TOWN CENTER INCL BILLS. OWN FRIDGE FREEZER, SOFA, DINING TABLE AND EXTRA CUPBOARDS. UPGRADED TO OFFER A 55 INCH SCREEN TV AND A TALL FRIDGE FREEZER INSTALLED. NEW CARPETS AND NEW BATHROOM TO FOLLOW.
TOP QUALITY FURNISHED ROOMS IN PROFESSIONAL CO-LIVING HOMES- WORK SPACES PROVIDED AND SUPPORTED WITH EXCELLENT WI-FI WITH VIRGIN OR BT. SHARE COMMUNAL SPACES.
NOTE: We are a small award-winning Property Management Business with a Guildford Borough Certificate of Accreditation with approximately 50 furnished rooms since 2009.
INCLUDES ALL UTILITY BILLS: Gas, Electricity, water, (normal usage only) Council Tax, TV License for communal area only, Virgin/BT Wireless Broadband. Garden service, carpet, and window cleaning ad hoc.
ROOM PROFESSIONALLY CLEANED AND DISINFECTED BEFORE OCCUPATION:
YOUR RESPONSIBILITY: Daily tidy and clean up after yourself in communal areas and deeper cleans 1-2 per week on a rota which your household must manage. Waste removal with bins on the road on collection days. General tenant maintenance like changing light bulbs and alarm batteries.
FULLY FURNISHED TO INCLUDE ALL APPLIANCES, COMMUNAL TV, CROCKERY ETC
TERMS: 12-month contract preferable.
AN EARLY RELEASE FROM THE CONTRACT IS POSSIBLE PROVIDED A SUITABLE REPLACEMENT IS FOUND.
Guarantors (UK-based) are required in some circumstances.
Sorry, no pets or children are allowed due to it being a professional house share.
SECURITY DEPOSIT: five week`s rent
HOLDING DEPOSIT: one week`s rent, to secure the room due immediately when the room is chosen.
On your inquiry to speed up the process could you please go to the website newleaf-homes. com and complete the tenant online registration form (orange tab on the home page). Please confirm by message when done. We will need this information to send the Zoom link. Please do not call unless absolutely urgent. Text is fine.
FOR A VIRTUAL VIEWING AND ONLINE VIEWING (zoom): Please register on the website home page and we will be in touch once you confirm your availability and interest in a specific room.
Office Hours: Weekdays from 10-6 pm only.
Notice
All photographs are provided for guidance only.
Redress scheme provided by: The Property Ombudsman (D04026)
Client Money Protection provided by: Client Money Protect (CMP011678)
Utilities
Electric: Mains Supply
Gas: Mains Supply
Water: Mains Supply
Sewerage: Mains Supply
Broadband: None
Telephone: None
Other Items
Heating: Gas Central Heating
Garden/Outside Space: No
Parking: Yes
Garage: No

Agent Statistics (Based on 0 Reviews) :