The UK's Largest Customer Review Website for the Property Industry
The UK's Largest Customer Review Website for the Property Industry
Back to Property Listings
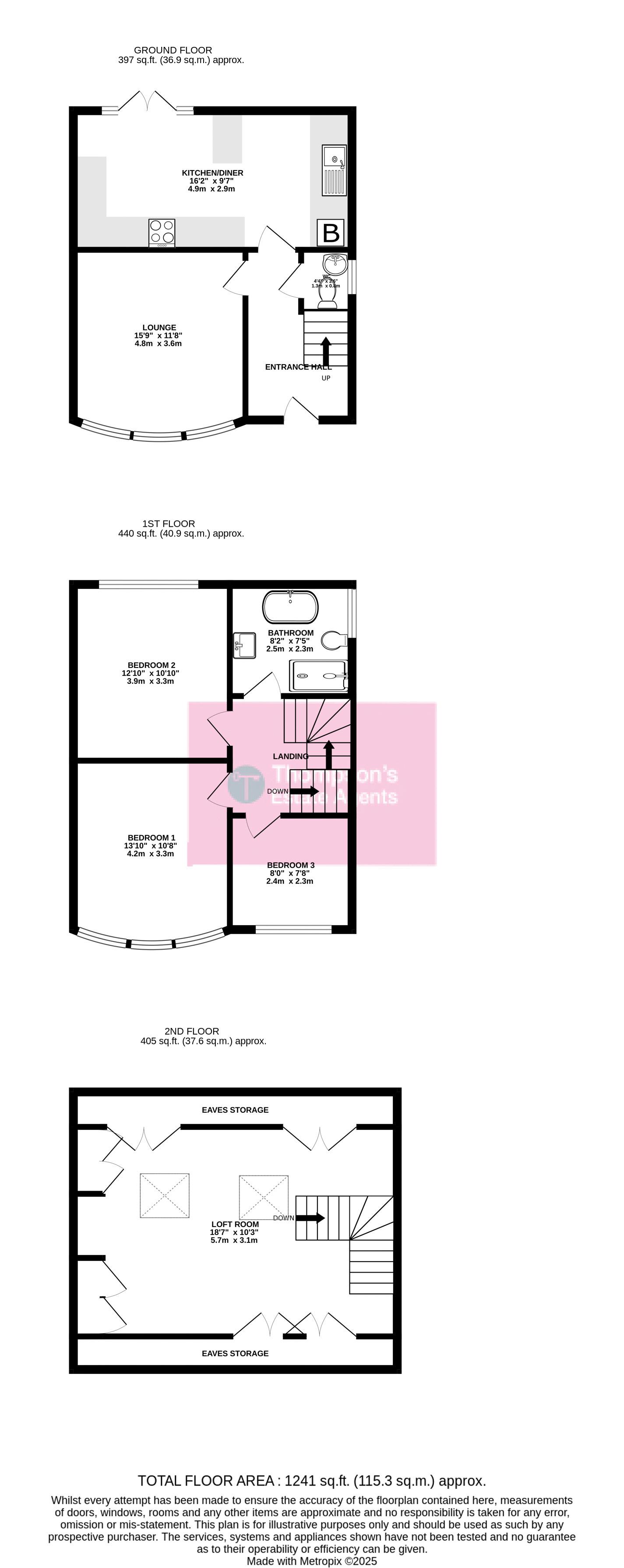
Falterley Road, Manchester
*** SEMI DETACHACED FAMILY HOME READY TO PICK YOUR BAGS UP AND MOVE STRAIGHT INTO WITH NO CHAIN! **** This SPACIOUS home measures over 1200 square feet and has been modernised throughout. Benefitting from a spacious 15ft separate lounge, fully fitted modern kitchen, downstairs W.C, three great sized bedrooms, a four piece modern family bathroom and a large loft room with plenty of storage. Externally there is a large driveway for off road parking, a detached garage and a huge sun drenched rear garden. The property is gas central heated and double glazed throughout. Ideally located close to Wythenshawe Park Metrolink station, Wythenshawe Park, EXCELLENT network links such as M60, M56, Princess Parkway and close to local shops and schooling. If you are looking for a home you can just pick your bags up and move straight into then I think you may have found it. Contact the office today to arrange your viewing.

This property is marketed by

Thompsons Estate Agents - Thompson's Estate Agents, Altrincham, WA14
5/5 Rating
(196) reviews
Agent Statistics (Based on 196 Reviews) :