The UK's Largest Customer Review Website for the Property Industry
The UK's Largest Customer Review Website for the Property Industry
Back to Property Listings
Fallbrook Road, Castleford
Enjoying a tucked away position originally built by Strata Homes is this well appointed and deceptively spacious TWO BEDROOM quarter house benefiting from UPVC double glazing and gas central heating.
EPC rating B83
Enjoying a tucked away position originally built by Strata Homes is this well appointed and deceptively spacious two bedroom quarter house benefiting from UPVC double glazing and gas central heating.
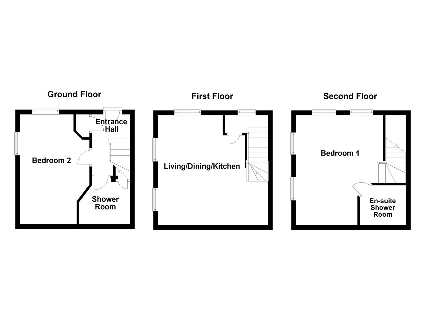
The accommodation fully comprises entrance hall, downstairs shower room/w.c., bedroom two, first floor, open plan living/kitchen/dining room, second floor, double bedroom one with en suite shower room/w.c. Outside there is off road parking for two vehicles.
The property is well placed for local amenities including shops, schools, Xscape, Asda superstore and there is good access to the motorway network. Local bus routes are nearby.
An ideal home for the first time buyer, couple or family looking to gain access onto the property market and a viewing comes highly recommended.
Accommodation -
Entrance Hall - Entrance door, staircase to the living/dining/kitchen, radiator, storage cupboard housing the boiler cupboard, doors to bedroom two and shower room/w.c.
Shower Room/W.C. - 1.78m x 2.26m (5'10" x 7'4") - Low flush w.c., pedestal wash basin, corner shower cubicle with electric shower, radiator, tiled effect floor, built in understairs storage with plumbing for washing machine.
Bedroom Two - 4.65m x 2.74m x 2.14m min (15'3" x 8'11" x 7'0" mi - UPVC double glazed window to the front, UPVC double glazed window to the side, radiator.
First Floor Landing - Staircase leading to second floor landing, radiator, UPVC double glazed window to the front.
Living/Dining/Kitchen - 4.65m x 4.60m max x 2.63m min (15'3" x 15'1" max x - Open plan kitchen, living and dining room. UPVC double glazed window to the front, two UPVC double glazed windows to the side, radiator, modern fitted wall and base units with work surface over incorporating stainless steel sink and drainer, integrated Neff oven and grill, four ring touchscreen electric hob with stainless steel back and filter hood above, integrated fridge and freezer, drawers, tiled splashback.
Second Floor Landing -
Bedroom One - 4.68m x 4.03m to wardrobes - Two UPVC double glazed windows to the front and two UPVC double glazed windows to the side. Central heating radiator and door to the en suite/w.c.
En Suite/W.C. - Shower cubicle, low flush w.c., wash basin, central heating radiator, tiled floor.
Outside - Off street parking for two vehicles, adjacent to the property there is a small area with space for bin stores.
Council Tax Band - The council tax band for this property is A
Epc Rating - To view the full Energy Performance Certificate please call into one of our local offices.
Floor Plans - These floor plans are intended as a rough guide only and are not to be intended as an exact representation and should not be scaled. We cannot confirm the accuracy of the measurements or details of these floor plans.
Viewings - To view please contact our Castleford office and they will be pleased to arrange a suitable appointment.

This property is marketed by

Richard Kendall Estate Agent - Normanton, Normanton, WF6
4.9/5 Rating
(1653) reviews
Agent Statistics (Based on 1653 Reviews) :