The UK's Largest Customer Review Website for the Property Industry
The UK's Largest Customer Review Website for the Property Industry
Back to Property Listings
Exeter Road, Exmouth
A well presented and deceptively spacious 3 double bedroom and 2 reception room detached house with a large kitchen / breakfast room and a good sized and level garden to the rear that faces in a South Westerly direction. This gas centrally heated (from condensing boiler) and uPVC double glazed property comprises, on the ground floor, of cloakroom, bay fronted and dual aspect living room, 2nd reception room, a 27` and modern fitted kitchen / dining room with access to the rear garden and a utility. On the first floor are the 3 double bedrooms, bathroom with separate WC. Subject to gaining the usual planning consents, the loft could be converted to provide further living accommodation if required. There is a single garage, ample off road parking and that level, Southerly facing rear garden. Handy for Exmouth Town Centre, Train Station, Schools and a Supermarket across the road, this property would, perhaps, make an ideal family home.
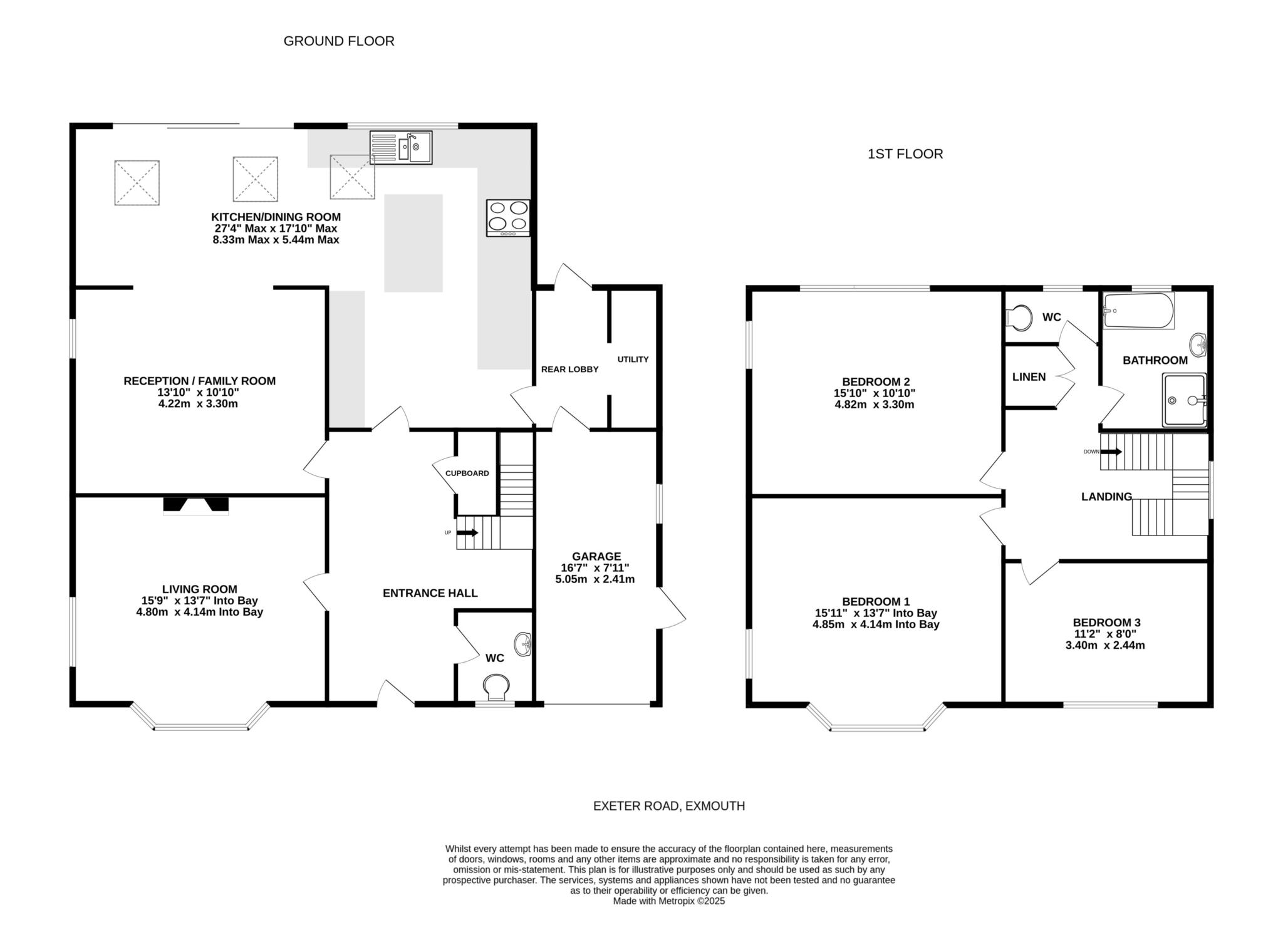
Accommodation
Ground Floor
Step up to composite front entrance door beneath storm canopy leading to:
Entrance Hall
Staircase rising to first floor with useful under stairs storage cupboard. Radiator. Doors leading to living room, second reception room, kitchen / dining room and:
Cloakroom
Obscure uPVC double glazed window to front. White suite comprising low level WC and pedestal wash hand basin. Tiled splashback`s. Heated towel rail.
Living Room - 15'9" (4.8m) x 13'7" (4.14m) Into Bay
Dual aspect having uPVC double glazed, walk in, bay window to front and uPVC double glazed window to side. Focal point of fitted coal effect gas fire in tiled fireplace surround. Radiator.
Reception / Family Room - 13'11" (4.24m) x 10'10" (3.3m)
uPVC double glazed window to side. Radiator. Open to:
Kitchen / Dining Room - 27'10" (8.48m) Max x 17'10" (5.44m) Max
Dual aspect having uPVC double glazed windows to rear and side, 3 skylights and aluminium framed, double glazed, triple sliding doors leading to the rear garden. Good range of modern fitted cupboard and drawer storage units with wooden work surfaces, matching island / breakfast bar and up stands. Composite one and a half bowl sink with single drainer unit and mixer tap. Built - in 4 ring induction hob with filter hood above and eye level double electric oven and grill to side. Integrated slimline dishwasher, wine cooler, fridge and freezer. 3 radiators. Inset ceiling lights. Obscure uPVC double glazed door leading to:
Rear Lobby
Door leading to garage. uPVC double glazed external door leading to Rear garden. Open to:
Utility
Space and plumbing for washing machine. Further space for appliances. Wall mounted cupboard storage units.
First Floor
Landing
Obscure uPVC double glazed window to side. Access to insulated and part boarded loft space that, subject to gaining the correct planning permissions, could be converted to provide further living accommodation. Useful linen storage cupboard with slatted shelving. Smoke alarm. Doors leading to:
Bedroom 1 - 15'11" (4.85m) x 13'7" (4.14m) Into Bay
Dual aspect having walk - in uPVC double glazed bay window to front and uPVC double glazed window side. Built - in double wardrobe. Radiator.
Bedroom 2 - 15'10" (4.83m) x 10'10" (3.3m)
Dual aspect having uPVC double glazed window to side and uPVC double glazed window to rear which gains Exe Estuary and Holden Hill views. Radiator
Bedroom 3 - 11'2" (3.4m) x 8'2" (2.49m)
UPVC double glazed window to front. Radiator.
Bathroom
Obscure uPVC double glazed window to rear. Modern white suite comprising panelled bath, shower cubicle with thermostatically controlled shower unit and pedestal wash hand basin. Tiled flooring. Fully tiled walls. Heated towel rail. Shaver light and socket.
Cloakroom
Obscure uPVC double glazed window to rear. White low level WC
Front Garden
The level Front Garden is laid mainly to lawn with shrub beds providing year round interest and colour. Timber panelled fence and wall boundaries. Outside gas meter box. A driveway provides off road parking and leads to:
Garage - 16'7" (5.05m) x 7'11" (2.41m)
Up and over door to front. Window to side. UPVC double glazed external door to side. Wall mounted gas fire Combi boiler that supplies the central heating and domestic hot water. Wall mounted electric meter. Wall mounted electric trip switch fuse box. Power and light connected. Cold water tap.
Rear Garden
The property enjoys a good sized, level, enclosed and reasonably private Rear Garden which faces in a South Westerly direction. The gardens are laid mainly to lawn with shrub and herbaceous beds and borders that provide year round interest and colour. There is a patio area immediately adjacent the property, with a further shingle area to the side of the property, both being an ideal place for outdoor dining and sitting during the fine weather. Brick barbecue area. Timber garden shed. Greenhouse. Outside power points. Outside lighting. Outside water tap. Front pedestrian access to side of property via timber garden gate.
Tenure
The property is FREEHOLD
Services
All mains services are connected. The property is on a water meter. Council Tax Band E
Mortgage Assistance
We are pleased to recommend Meredith Morgan Taylor, who would be pleased to help no matter which estate agent you finally buy through. For a free initial chat please contact us on 01395 222350 to arrange an appointment
Your home may be repossessed if you do not keep up repayments on your mortgage
Meredith Morgan Taylor Ltd is an appointed representative of The Openwork Partnership, a trading style of Openwork Ltd which is authorised and regulated by the Financial Conduct Authority (FCA).
Directions
From our prominent Town Centre office, proceed past The Strand and turn left at the roundabout. Turn right at the next roundabout into Marine Way, passing Exmouth Train Station. Proceed through 2 sets of traffic lights, into Exeter Road, where the property will be found on the left hand side clearly identified by our For Sale sign.
what3words /// tests.bank.since
Notice
Please note we have not tested any apparatus, fixtures, fittings, or services. Interested parties must undertake their own investigation into the working order of these items. All measurements are approximate and photographs provided for guidance only.
Utilities
Electric: Mains Supply
Gas: Mains Supply
Water: Mains Supply
Sewerage: Mains Supply
Broadband: None
Telephone: None
Other Items
Heating: Gas Central Heating
Garden/Outside Space: Yes
Parking: Yes
Garage: Yes

Agent Statistics (Based on 729 Reviews) :