The UK's Largest Customer Review Website for the Property Industry
The UK's Largest Customer Review Website for the Property Industry
Back to Property Listings
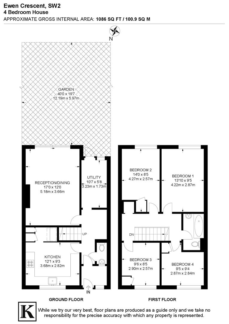
Ewen Crescent, SW2
Keating Estates are proud to present to market this spacious four-bedroom freehold house, featuring a beautiful south-east-facing private garden and nestled on a peaceful residential crescent between Brixton and Tulse Hill, just moments from the open green spaces of Brockwell Park.
Full Description - Keating Estates are proud to present to market this spacious four-bedroom freehold house with a beautiful south-east-facing private garden, nestled on a peaceful residential crescent between Brixton and Tulse Hill. Offering a wonderful balance of charm and practicality, this fantastic home is ideally located moments from the open green spaces of Brockwell Park and within easy reach of Brixton, Herne Hill, and Tulse Hill town centres.
Thoughtfully arranged over two floors, the property boasts a bright and airy layout throughout.
Forming the heart of the home, the generous through-lounge and dining area is ideal for entertaining or unwinding-flooded with natural light from the sliding patio doors, which extend the living space into the garden.
The generous forty-foot private garden is designed for year-round enjoyment, featuring an attractive lawn framed by a pretty pear tree and an apple tree at the rear, a paved patio and mature raised beds. Practical rear access makes the garden easily accessible.
Back inside, the separate, modern, renovated kitchen has been cleverly configured to maximise space, with cupboards and tiling creating a stylish yet functional space. A built-in larder cupboard provides even more practical storage. A separate utility room is ideal for additional storage and offers direct access to the garden. Additionally, there is a handy downstairs WC leading off the hallway. Double-glazed windows have been recently installed.
Upstairs, the property boasts four well-proportioned double bedrooms and a fitted bathroom. Further storage space is available in the loft.
Ewen Crescent is a quiet, residential street tucked just minutes' walk from the ever-popular Brockwell Park. With its outdoor lido, café, playground, and weekend farmers' market, Brockwell Park is a South London treasure and just moments away from this property.
Despite its calm setting, the property is also conveniently situated within walking distance of Tulse Hill station, offering exceptional access into the city and beyond via the Thameslink service with direct links to London Blackfriars, Farringdon, and St Pancras International, and Herne Hill station (for London Victoria). Additionally, Brixton Underground station (Victoria Line) is within easy reach. The area is well-suited to families and professionals, close to Ofsted outstanding-rated schools with a wealth of popular local amenities just a stone's throw away, in Herne Hill, Brixton and Tulse Hill.

Agent Statistics (Based on 1262 Reviews) :