The UK's Largest Customer Review Website for the Property Industry
The UK's Largest Customer Review Website for the Property Industry
Back to Property Listings
Esplanade Road, Newquay
An opportunity to purchase a second floor contemporary apartment situated on the popular Pentire Peninsula. The apartment boasts a private south facing balcony, modern fitted kitchen with integrated appliances, spacious double bedroom, modern bathroom, personal surf store and private, secure underground parking . Early viewing is highly recommended.
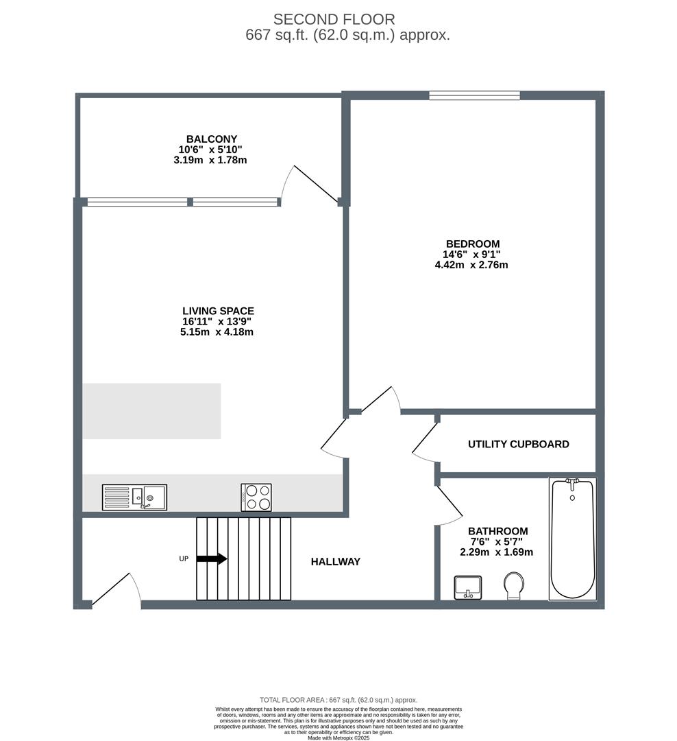
The Property - Apartment 9 is an immaculately presented apartment, offering a south facing balcony.
Entering from the communal hallway, there is a lower entrance hallway offerings storage options, stairs lead to the rest of the apartment, the upper hallway has access to the utility room housing a washing machine and tumble dryer.
The open-plan living area is light and welcoming, designed to maximise both space and comfort. A feature oversized door opens onto a south-facing balcony, creating an ideal spot to relax and enjoy the sunshine. The kitchen is finished to a high standard with quartz worktops and a range of integrated appliances, including a stainless-steel oven, gas hob with extractor, stainless steel under mounted sink, dishwasher, and fridge/freezer.
The apartment boasts a large double bedroom with built-in wardrobes and a double glazed to the front of the property where sea views can be enjoyed. There is also a utility cupboard housing the gas fired boiler, powering the central heating system and plumbing for a washer/dryer. The separate bathroom, offering tiled floors and partially tiled walls, with a modern suite and mains overhead shower
Location - Pentire is one of Newquay's most sought-after residential areas, celebrated for its breathtaking headland walks and sweeping sea views. It offers a relaxed coastal lifestyle while being just a short distance from Newquay town centre. Ocean Gate enjoys a prime position, located only 200 metres from the world-famous Fistral Beach and just 400 metres from the picturesque River Gannel Estuary.
The area is also home to a number of highly regarded eateries. Lewinnick Lodge, perched dramatically on the edge of Pentire Headland, boasts panoramic ocean views and a stylish menu. On the South Fistral cliffs, Sea Spray Café provides the perfect setting for coffee or brunch while overlooking the surf. Just steps from North Fistral, The Fish House is renowned for its award-winning dishes, created with the freshest locally sourced seafood.
With direct access to coastal paths, golden beaches, and the tranquil estuary, Pentire is an outstanding location for holiday letting, investment opportunities, or a permanent home by the sea.
Externally - The property benefits from an allocated parking space in the underground car park. A lockable surf cage. All owners also have the benefit from the use of a communal roof terrace.
Leasehold Information - Lease Length - 999 years
Ground Rent - £250 per annum
Service Charge - £5576.42 including Wifi

Agent Statistics (Based on 607 Reviews) :