The UK's Largest Customer Review Website for the Property Industry
The UK's Largest Customer Review Website for the Property Industry
Back to Property Listings
Escourt Road, Darrington, Pontefract
A grade II listed five bedroom stone home with period charm, mature gardens and DOUBLE GARAGE in Darrington. VIEWING ESSENTIAL. EPC rating D58.
A truly exceptional opportunity to acquire this beautiful Grade II listed five bedroom stone semi detached home, once part of the former stable block to the east of Darrington Hall. Blending period character with well proportioned living accommodation, the property enjoys mature gardens, a double garage and an enviable position in one of the area's most sought after villages.
The home is approached via a sweeping shared driveway leading to a detached double garage. A panelled front entrance door opens into a welcoming reception hall with guest cloakroom and utility room. The principal reception room is of generous proportions, featuring a fireplace and windows with views over both the front garden and southerly gardens to the rear. At the heart of the home is a striking dining hall with two arched windows overlooking the rear gardens, seamlessly connecting into the breakfast kitchen. The kitchen is fitted with a wide range of units and integrated appliances, with an archway opening into a conservatory that takes full advantage of the garden outlook. To the first floor, the principal bedroom benefits from an adjoining dressing area leading through to a bathroom. A second double bedroom also features an en suite shower room, while three further bedrooms complete the accommodation. Externally, the rear garden is a true highlight, featuring a broad stone paved patio ideal for outdoor entertaining, a generous lawn and mature shrub borders offering privacy and charm.
Darrington is a prestigious and highly regarded village, offering local amenities including two public houses, shops, schools, and recreational facilities. A wider range of services can be found in nearby Pontefract, which also benefits from two railway stations and excellent access to the national motorway network.
This unique Grade II listed home offers a rare blend of history, charm, and practicality, making it an opportunity not to be missed. An early viewing is highly recommended.
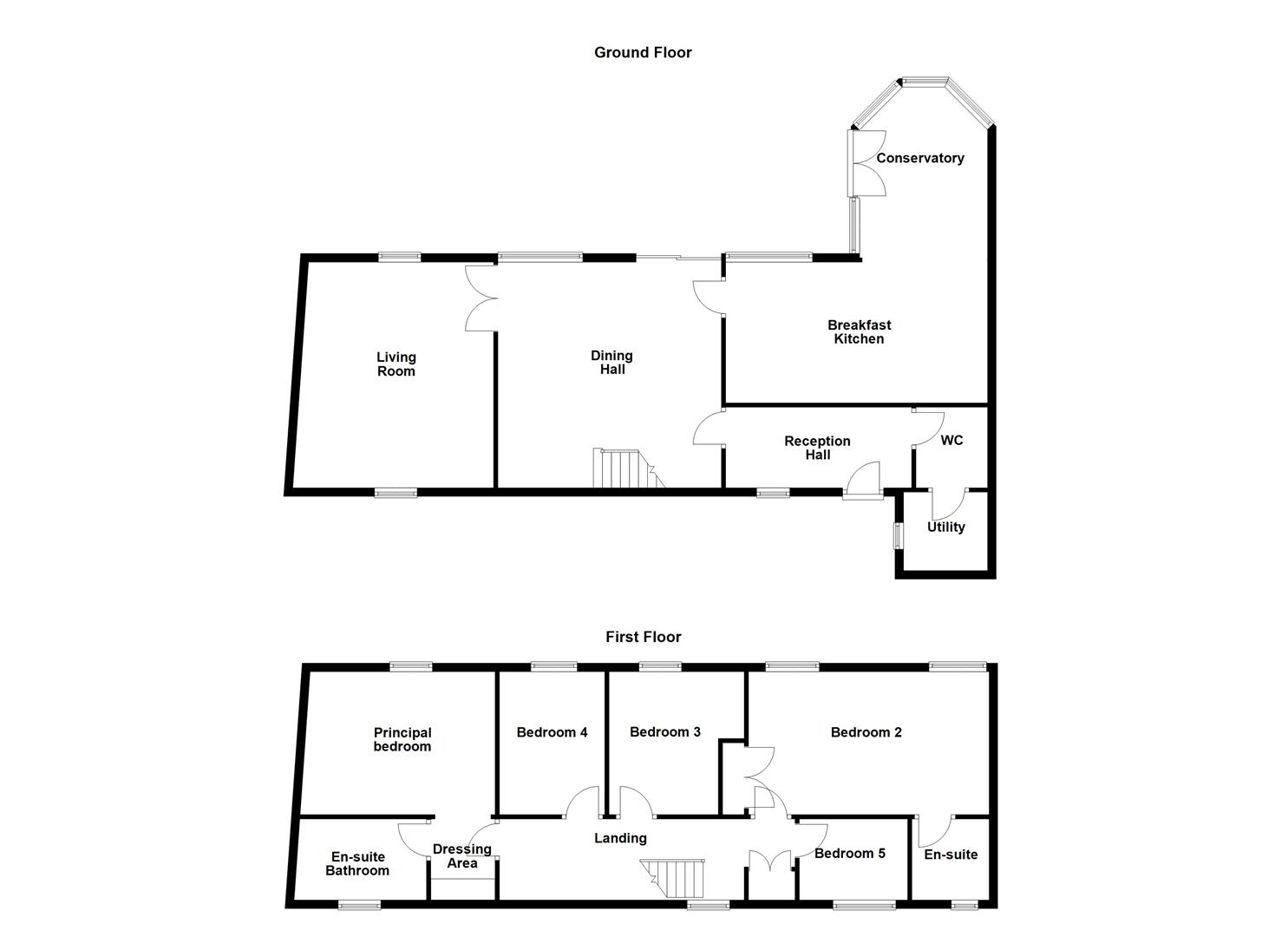
Accommodation -
Reception Hall - 4.4m x 1.8m (14'5" x 5'10") - Heavy panelled front entrance door, stone paved flooring, central heating radiator and a heavy wooden beam to the ceiling.
W.C. - 1.9m x 1.7m (6'2" x 5'6") - Two piece white cloakroom suite comprising low suite w.c. and vanity wash basin with cupboard under. Central heating radiator and beamed ceiling.
Utility Room - 2.0m x 1.8m (6'6" x 5'10") - High level window to the side, space and plumbing for a washing machine, wall mounted Vaillant gas fired central heating boiler, fitted cupboards and space for a tall fridge freezer.
Living Room - 5.3m x 4.4m (17'4" x 14'5") - Sash windows to both the front and rear, fitted cupboards and display shelves, feature fireplace housing a grate with a living flame coal effect gas fire. Beamed ceiling, two double central heating radiators and parquet effect vinyl flooring.
Dining Hall - 5.3m x 5.2m (17'4" x 17'0") - Two attractive arch windows taking full advantage of the garden views to the rear. Continuation of herringbone parquet effect flooring, two double central heating radiators, beamed ceiling and stairs to the first floor.
Breakfast Kitchen - 6.1m x 3.3m (20'0" x 10'9") - Broad range of bespoke fitted units with granite worktops incorporating stainless steel sink unit with waste disposal, four ring gas hob with filter hood over, built in oven and grill, integrated fridge, dishwasher, and matching dresser unit. Ceramic tile floor and window overlooking the rear garden.
Conservatory - 3.8m x 2.9m (12'5" x 9'6") - Double French doors leading out to the patio with lovely private garden views.
First Floor Landing - Central heating radiator, loft access point and useful built in airing cupboard housing the insulated hot water cylinder.
Principal Bedroom - 4.5m x 3.3m (14'9" x 10'9") - Sash window overlooking the gardens to the rear, central heating radiator, and feature fireplace with a cast iron grate (not currently in use).
Dressing Area - 1.9m x 1.6m (6'2" x 5'2") - Three door fitted wardrobe.
Bathroom/W.C. - 3.0m x 1.9m (9'10" x 6'2") - Four piece suite comprising panel bath with shower attachment over and folding glazed screen, pedestal wash basin, low suite w.c., and bidet. Central heating radiator, frosted window to the front and ceramic tiled walls.
Bedroom Two - 5.7m x 3.3m (18'8" x 10'9") - Two windows overlooking the rear garden, two central heating radiators, feature vaulted ceiling with beams and trusses, built in double fronted tallboy and connecting door to en suite.
En Suite Shower Room/W.C. - 1.9m x 1.8m (6'2" x 5'10") - Fitted with a three piece white and chrome suite comprising corner shower cubicle, pedestal wash basin and low suite w.c. Chrome ladder style heated towel rail, frosted window to the front, tiled walls and floor.
Bedroom Three - 3.3m x 3.2m (10'9" x 10'5") - Window overlooking the back garden, central heating radiator, fitted wardrobes, cupboards and dressing table.
Bedroom Four - 3.2m x 2.5m (10'5" x 8'2") - Window overlooking the back garden and central heating radiator.
Bedroom Five - 2.55m x 1.7m (8'4" x 5'6") - Frosted window to the front and central heating radiator.
Outside - Automated gates open onto a shared driveway leading to a twin double garage with two automated up and over doors. The well proportioned front garden is designed for low maintenance and features mature trees. To the rear, there is a larger garden area with a stone paved patio enjoying a southerly aspect. A well sized lawn is surrounded by established shrub borders, offering an excellent degree of privacy.
Council Tax Band - The council tax band for this property is G.
Floor Plans - These floor plans are intended as a rough guide only and are not to be intended as an exact representation and should not be scaled. We cannot confirm the accuracy of the measurements or details of these floor plans.
Viewings - To view please contact our Pontefract office and they will be pleased to arrange a suitable appointment.
Epc Rating - To view the full Energy Performance Certificate please call into one of our local offices.

This property is marketed by

Richard Kendall Estate Agent - Pontefract, Pontefract, WF8
4.9/5 Rating
(1653) reviews
Agent Statistics (Based on 1653 Reviews) :