The UK's Largest Customer Review Website for the Property Industry
The UK's Largest Customer Review Website for the Property Industry
Back to Property Listings
Elmwood Close, Plymouth, PL6 7JY
A truly stunning and beautifully presented three double bedroom detached bungalow, positioned on a level plot within the highly sought-after residential cul-de-sac of Elmwood Close, Glenholt. Offering generous internal accommodation, a double garage, ample off-road parking and the significant benefit of no onward chain, this is a rare opportunity not to be missed. From the moment you arrive, the property impresses with its expansive brick-paved driveway providing parking for multiple vehicles, in addition to a detached double garage with twin up-and-over doors. Internally, the home is exceptionally well maintained and stylishly appointed throughout. A spacious entrance porch leads into the inner hallway, providing access to all principal rooms. The lounge is bright and inviting, featuring a charming fireplace and bay window that fills the room with natural light. The heart of the home is the impressive open-plan kitchen/dining room, thoughtfully designed with modern high-gloss cabinetry, integrated appliances, extensive worktop space and breakfast bar seating, perfect for both everyday living and entertaining. The dining area comfortably accommodates a family-sized table and enjoys views over the rear garden. There are three generous double bedrooms, all beautifully decorated and well-proportioned. The principal bedroom benefits from fitted wardrobes and a stylish en-suite shower room. Bedrooms two and three are equally spacious and versatile, ideal for family, guests or home office use. The contemporary family bathroom is finished with elegant tiling and a white suite including bath with shower over. Externally, the rear garden is level and enclosed, offering a paved patio seating area and lawn bordered by mature shrubs, ideal for outdoor dining and low-maintenance enjoyment. This turnkey bungalow offers space, comfort and practicality in a quiet and established location. Early viewing is highly recommended.
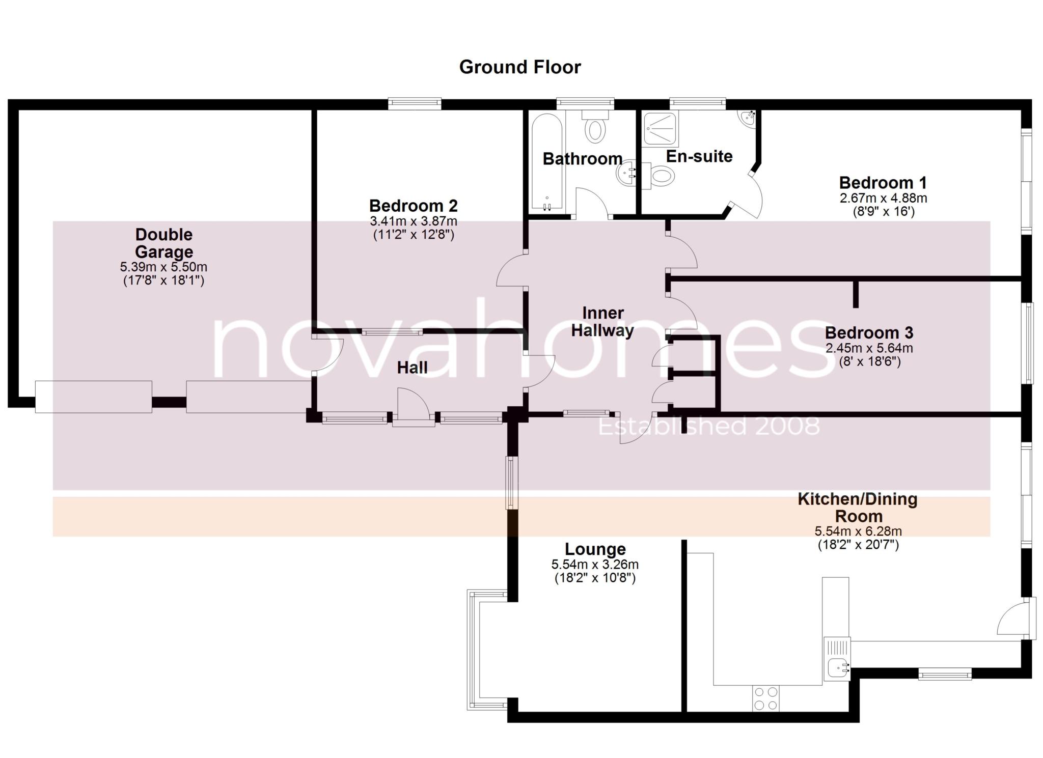
Accommodation Comprises
Elmwood Close, Glenholt, PL6 7JY
Entrance 4.04m (13`3") x 1.27m (4`2")
Entrance door into the entrance porch. Door into the double garage. Door into the inner hall.
Inner hall
Storage cupboard housing the hot water tank. Second storage cupboard. Access to the loft space. Single radiator.
Lounge 5.54m (18`2") Into Bay x 4.04m (13`3") Into Bay
Narrows to 2.36 m. Double glazed bay window to the front. Feature marble fire surround. Fitted gas fire. Double radiator. Opens into the kitchen/diner.
Kitchen/diner 5.93m (19`5") x 5.54m (18`2")
Measurements include units. Fitted kitchen with a range of base and eye level storage cupboards and roll edge work surfaces. One and a half bowl sink and single drainer with mixer taps. Tiled splashbacks. Built in oven, microwave and hob with extractor hood. Integrated dish washer, fridge freezer and washing machine. Double glazed window to the side. Double glazed patio door to the rear garden. Two double radiators.
Bedroom one 6.58m (21`7") Max x 2.67m (8`9") Max
Fitted wardrobes. Double glazed patio door to the side. Door through to the en suite.
En suite 2.15m (7`1") x 1.95m (6`5")
Low step double shower cubicle. Corner wash hand basin. Low flush WC. Obscure double glazed window. Heated towel rail.
Bedroom two 3.87m (12`8") x 3.41m (11`2")
Dual aspect room with double glazed windows to the front and side aspects. Single radiator. Fitted wardrobes and drawers.
Bedroom three 5.64m (18`6") x 2.45m (8`0")
Double radiator. Double glazed windows to the rear.
Bathroom 2.02m (6`8") x 1.96m (6`5")
Suite in white comprising; bath with separate shower unit over, wash hand basin and low flush WC. Heated towel rail. Obscure double glazed window.
Outside
Front of property
At the front of the property is a brick paved drive and additional parking area.
Rear of the property
At the rear of the property is a paved patio leading onto the garden which is predominately laid to lawn. Outside lights. Cold water tap. Power point.
Double garage5.05m (16`7") x 5.39m (17`8")
Twin up and over doors. Gas boiler. Power and light. Tap.
Viewing Arrangements
Viewing strictly by appointment through the agent. Please respect the occupier`s privacy and do not make an approach by knocking on the door.
Notice
Please note we have not tested any apparatus, fixtures, fittings, or services. Interested parties must undertake their own investigation into the working order of these items. All measurements are approximate and photographs provided for guidance only.
Council Tax
Plymouth City Council, Band E
Utilities
Electric: Mains Supply
Gas: Mains Supply
Water: Mains Supply
Sewerage: Mains Supply
Broadband: FTTC
Telephone: Landline
Other Items
Heating: Gas Central Heating
Garden/Outside Space: Yes
Parking: Yes
Garage: Yes

Agent Statistics (Based on 63 Reviews) :