The UK's Largest Customer Review Website for the Property Industry
The UK's Largest Customer Review Website for the Property Industry
Back to Property Listings
Ellesmere Road, London
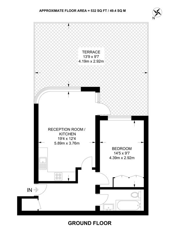
This recently developed one-bedroom flat is set with an attractive Art deco building that benefits from a from a private terrace on the ground floor and access to a communal roof terrace.
The flat has been thoughtfully designed with modern living in mind, offering a bright open-plan kitchen and living space, a double bedroom, and a contemporary bathroom. High-quality finishes and considered design create a stylish yet practical home.
Situated in a prime Chiswick location, residents are just a 10-minute walk from the shops, cafés, and restaurants of Chiswick High Road. Both Turnham Green and Chiswick Park Underground stations are within easy reach and Chiswick House and Grounds across the road.
The ability to get a residents on street parking permit.
Under section 21 of the Estate Agency Act 1979, the seller declares a personal interest with this firm.

Agent Statistics (Based on 192 Reviews) :