The UK's Largest Customer Review Website for the Property Industry
The UK's Largest Customer Review Website for the Property Industry
Back to Property Listings
Eliot Close, Emmer Green
Masons are proud to offer to the market this three bedroom end of terrace house, situated in a quiet location while being close to Caversham & Reading centres, along with Reading mainline station. The property is very well presented and benefits from a spacious 17ft living/dining room, a 15ft modern kitchen breakfast room with doors to the garden and a 13ft master bedroom. Further benefits include a 12ft bedroom 2, a family bathroom, a good size rear garden with storage & rera access and parking to the rear of the property. Viewing recommended.
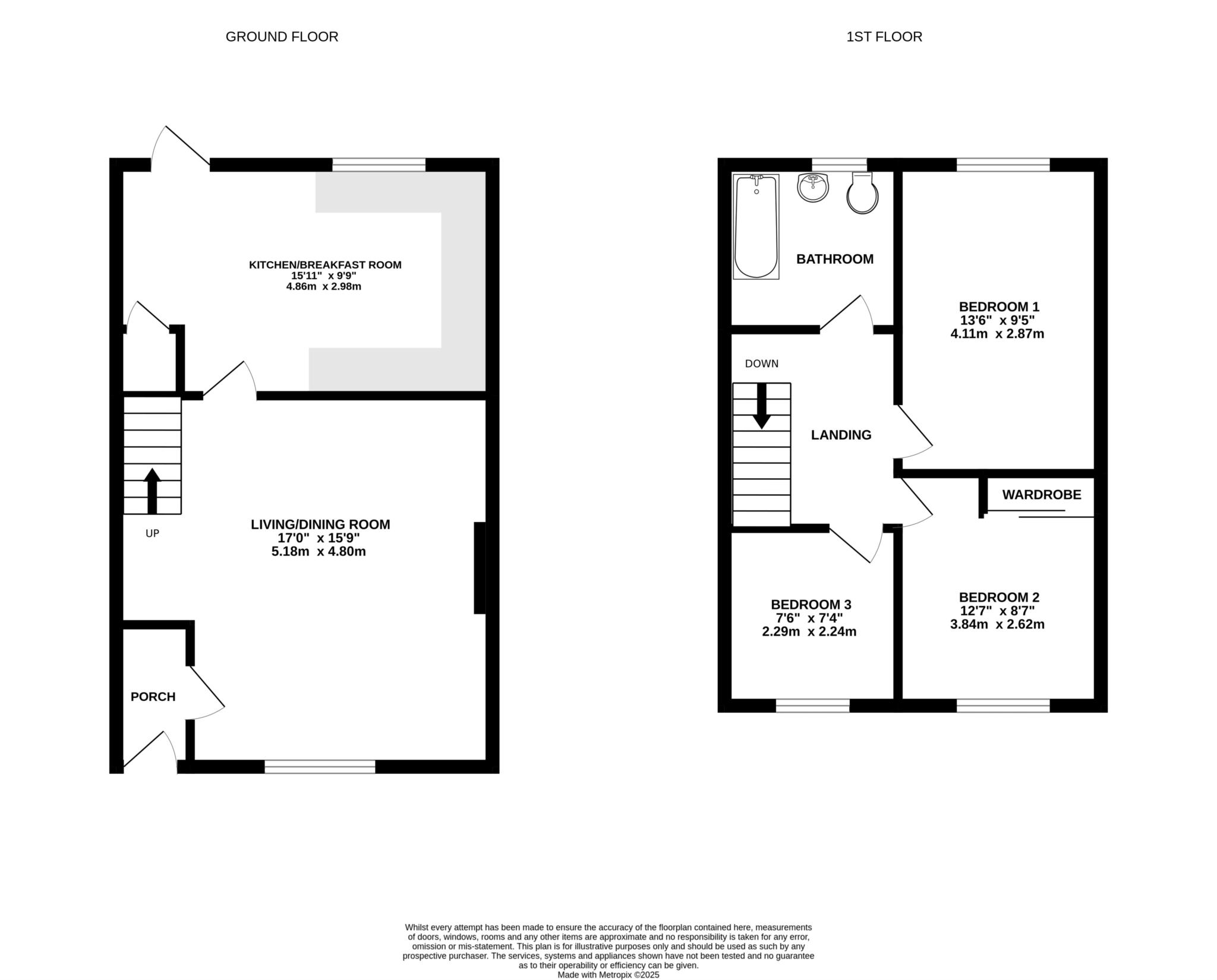
Front door to entrance porch, which has a door opening to:
Living/dining room: 17`0" x 15`9" double glazed front aspect, with stairs to the first floor and a door to:
Kitchen breakfast room: 15`11" x 9`9" double glazed rear aspect, a modern range of eye and base level units with roll edge tops and tiled surround,one & half sink & drainer, integrated oven, hob & extractor and space and plumbing for additional appliances. Door opening to the rear garden.
First floor landing has doors to:
Bedroom 1: 13`6" x 9`5" double glazed rear aspect.
Bedroom 2: 12`7" x 8`7" double glazed front aspect.
Bedroom 3: 7`6" x 7`4" double glazed front aspect.
Family bathroom: double glazed rear aspect, a panel enclosed bath with shower over, low level wc and wash basin.
Outside: to the front there is a small garden area with a path leading to the front door. To the rear there is a good size garden, which has a large decked area, as well as shingled & variety of plants and shrubs. There is also a a pedestrian rear access to the garden.
Notice
Whilst every care has been taken in the preparation of these particulars, and they are believed to be correct, they are not warranted and intending purchasers/lessees should satisfy themselves as to the correctness of the information given.Please note we have not tested any apparatus, fixtures, fittings, or services. Interested parties must undertake their own investigation into the working order of these items. All measurements are approximate and photographs provided for guidance only.
Council Tax
Reading Borough Council, Band C
Utilities
Electric: Mains Supply
Gas: None
Water: Mains Supply
Sewerage: None
Broadband: None
Telephone: None
Other Items
Heating: Gas Central Heating
Garden/Outside Space: Yes
Parking: No
Garage: No

Agent Statistics (Based on 72 Reviews) :