The UK's Largest Customer Review Website for the Property Industry
The UK's Largest Customer Review Website for the Property Industry
Back to Property Listings
Egremont Road, Exmouth
Offered for sale with no onward chain, this well presented one bedroom first floor flat is conveniently located within level walking distance of Exmouth Town Centre, the train station, seafront, and marina.
Benefiting from gas central heating (via a combi boiler) and uPVC double glazing, the property also had a new roof fitted in Spring 2024. The accommodation comprises a bright living room, fitted kitchen, double bedroom, and a modern shower room.
To the front of the building there is ample residents` parking, providing easy access for occupants and visitors alike.
This property would make an ideal first time purchase or investment opportunity, and early viewing is highly recommended.
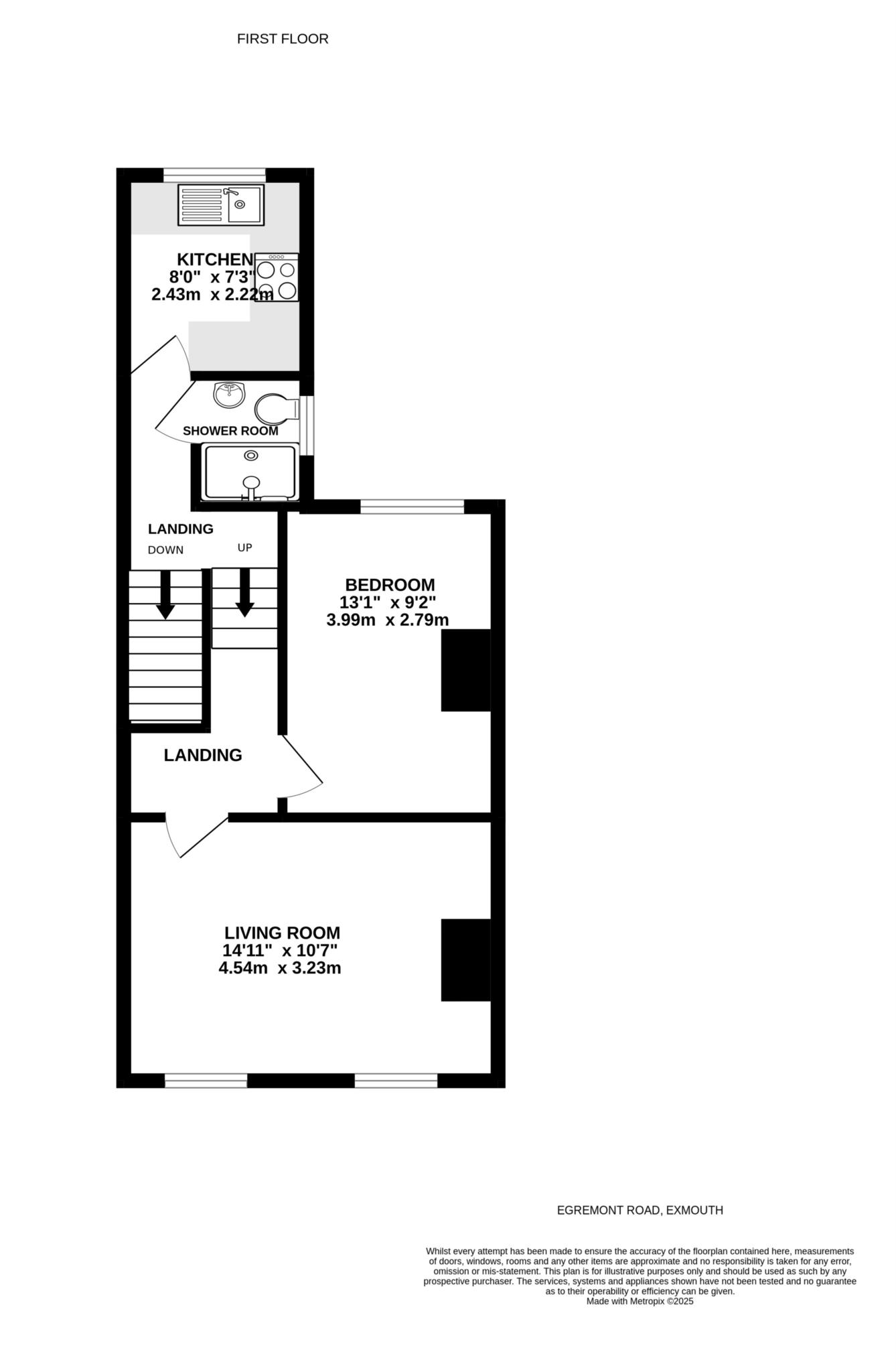
Accommodation
Ground Floor
Communal front entrance door leading to:
Communal Hallway
High level electric trip switch fuse box and electric meter. Main property door leading to :
Entrance Lobby
Staircase rising to first floor.
First Floor
Half Landing
Wall mounted central heating thermostat. Stairs rising to landing. Doors leading to kitchen and shower room.
Landing
Access to insulated loft space. Radiator. Doors leading to bedroom and:
Living Room - 14'11" (4.55m) x 10'7" (3.23m)
2 uPVC double glazed windows to front. Radiator.
Kitchen - 8'0" (2.44m) x 7'3" (2.21m)
uPVC double glazed window to rear. Range of cupboard and drawer storage units with roll edge work surfaces and tiled splash backs. Stainless steel single sink and drainer unit with mixer tap. Built - in 4 ring electric hob with electric oven below. Space and plumbing for washing machine. Further space under worktop for fridge etc. Wall mounted gas fire Combi boiler that supplies the central heating and domestic hot water. Radiator.
Bedroom - 13'1" (3.99m) x 9'2" (2.79m)
uPVC double glazed window to rear. Radiator.
Shower Room
Obscure uPVC double glazed window to side. White suite comprising double shower cubicle with thermostatically controlled shower unit, low level WC and wall mounted wash hand basin. Fully tiled walls. Access to loft space.
Residents Parking
The property is located in an area that has the benefit of a residential parking scheme - with permits available to purchase via EDDC.
Tenure
The property is LEASEHOLD. We understand a 199 year lease was granted in September 1987 with any maintenance shared 50-50 with the ground floor flat on an `as and when` basis.
Services
All mains services are connected. Council Tax Band A
Mortgage Assistance
We are pleased to recommend Meredith Morgan Taylor, who would be pleased to help no matter which estate agent you finally buy through. For a free initial chat please contact us on 01395 222350 to arrange an appointment
Your home may be repossessed if you do not keep up repayments on your mortgage
Meredith Morgan Taylor Ltd is an appointed representative of The Openwork Partnership, a trading style of Openwork Ltd which is authorised and regulated by the Financial Conduct Authority (FCA).
Agents Note
These are draft particulars and are awaiting vendors verification
Directions
From our prominent Town Centre office, proceed out of town along Exeter Road. Upon passing The Park pub, take the 2nd left turning into Woodville Road, and the the next left into Egremont Road. The property will be found on the right hand side, clearly identified by our for sale board.
what3words /// moving.milk.gosh
Notice
Please note we have not tested any apparatus, fixtures, fittings, or services. Interested parties must undertake their own investigation into the working order of these items. All measurements are approximate and photographs provided for guidance only.
Utilities
Electric: Mains Supply
Gas: Mains Supply
Water: Mains Supply
Sewerage: Mains Supply
Broadband: Unknown
Telephone: Unknown
Other Items
Heating: Gas Central Heating
Garden/Outside Space: No
Parking: No
Garage: No

Agent Statistics (Based on 739 Reviews) :