The UK's Largest Customer Review Website for the Property Industry
The UK's Largest Customer Review Website for the Property Industry
Back to Property Listings
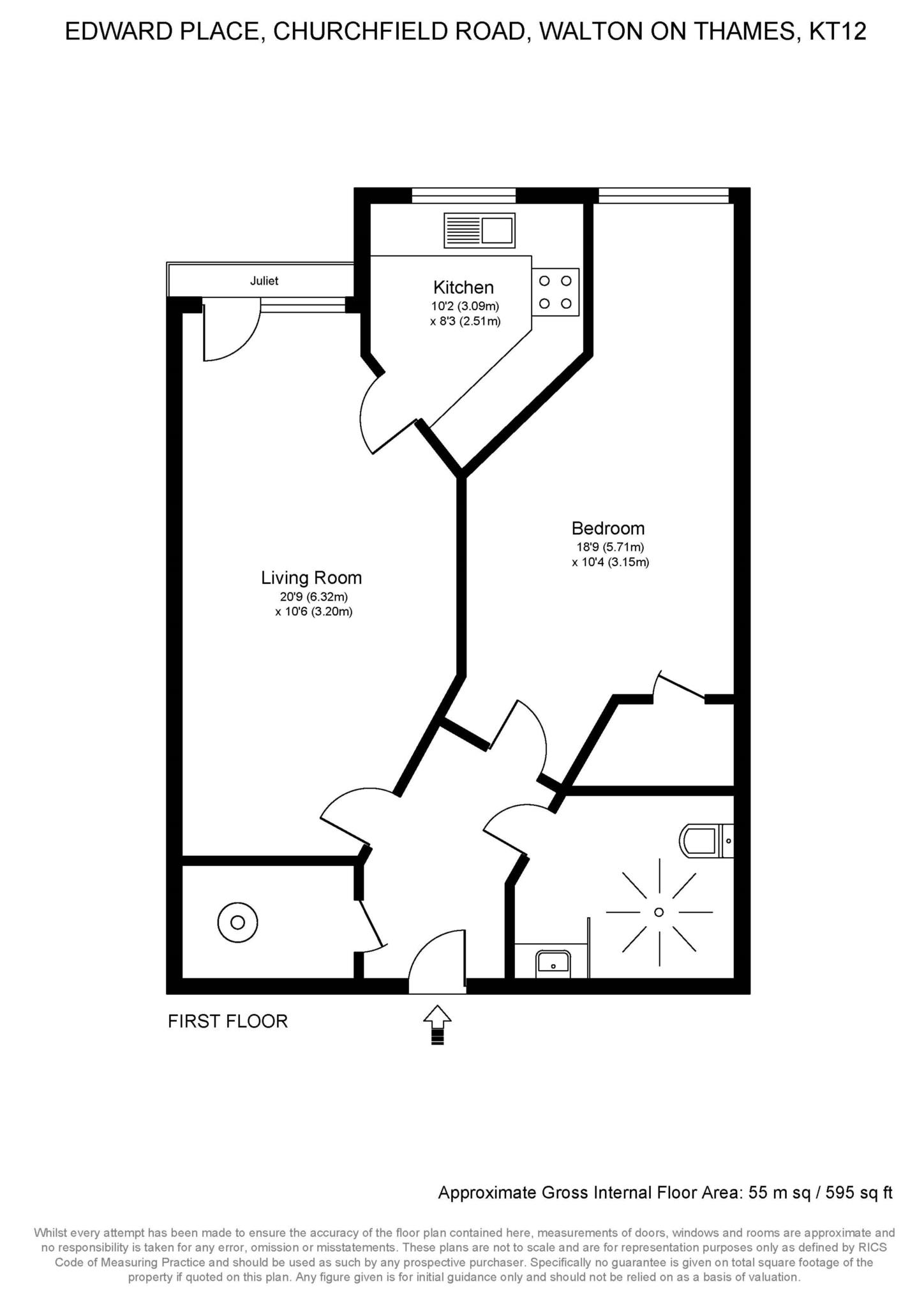
Edward Place, Walton On Thames
A first floor apartment in the modern assisted living development of Edward Place in Walton town centre which is age exclusive to those aged 70+ and offers many benefits to retirement living like someone on site 24/7 as well as Eat-In Bistro.
The apartment is situated on the first floor and consists of a large reception room, a modern fitted kitchen with a window, a fully tiled walk-in shower room, a Master bedroom with built in wardrobes and a good size storage cupboard off the entrance hall.
Edward Place comprises a selection of 51 one and two bedroom apartments, with flexible care and support packages available to suit your needs. Benefits from a dedicated, friendly Estates Management team on-site 24 hours a day providing peace of mind for homeowners. Stylish facilities include an elegant club lounge and bistro to socialise with neighbours serving nutritional hot and cold food daily, courtyard landscaped gardens maintained to a delight throughout the seasons and a salon in which you can book an array of beauty treatments from manicures to having your hair done.
The local area; A retail and services hub within Surrey, Walton sits to the West of Molesey and East of Weybridge. Bordering the River Thames, with a fast train into London Waterloo and the Thames Path National Trail spanning its boarders along the river, Walton caters to those looking for both suburban convenience and natural beauty. Although the town centre is renowned for its cafes and large modern retail district, Walton is actually an old Celtic settlement that dates back to pre-Roman times. However the new developments don`t detract at all from the rich history of the area, with pretty parks, beautiful buildings, real ale pubs and old restaurants dotted conveniently around.
Key Information:
Service Charge: ?12,586.01 Per Annum
Ground Rent: ?435.00 Per Annum
Lease Expiry Date: 30th April 3017
Tenure: Leasehold
Council Tax Band: C
EPC Rating: B
Heating Type: All electric
Parking. Unavailable
Mobile Strength: Data Provided by Ofcom
EE - Limited coverage
Three - Likely to have good coverage and supports multimedia.
O2 - Likely to have good coverage and supports multimedia.
Vodafone - Likely to have good coverage and supports multimedia.
Broadband Strength: Data Provided by Ofcom
Standard 19 Mbps/1 Mbps
Superfast 80 Mbps/20 Mbps
Notice
Please note we have not tested any apparatus, fixtures, fittings, or services. Interested parties must undertake their own investigation into the working order of these items. All measurements are approximate and photographs provided for guidance only.
Lease Length
992 Years
Utilities
Electric: Mains Supply
Gas: None
Water: Mains Supply
Sewerage: Mains Supply
Broadband: ADSL
Telephone: Landline
Other Items
Heating: Electric Heaters
Garden/Outside Space: No
Parking: No
Garage: No

Agent Statistics (Based on 240 Reviews) :