The UK's Largest Customer Review Website for the Property Industry
The UK's Largest Customer Review Website for the Property Industry
Back to Property Listings
Eastcote Road, Pinner, Middlesex, HA5 1DH
?? Stunning 3-Bedroom, 3-Bathroom Luxury Duplex - Modern Development with Concierge - Near Pinner TubeA truly exceptional and spacious 3-bedroom, 3-bathroom duplex apartment set within a prestigious modern development featuring day concierge and beautifully landscaped communal gardens, just a short walk from Pinner Underground Station.Boasting over 2,300 sq ft (214 m²) of luxurious living space, this stunning home offers an impressive blend of grandeur, style, and practical living.This property combines exceptional space, luxury finishes, and a superb location close to local amenities and transport links, offering a rare lifestyle opportunity in Pinner.?? Viewing highly recommended.
Description
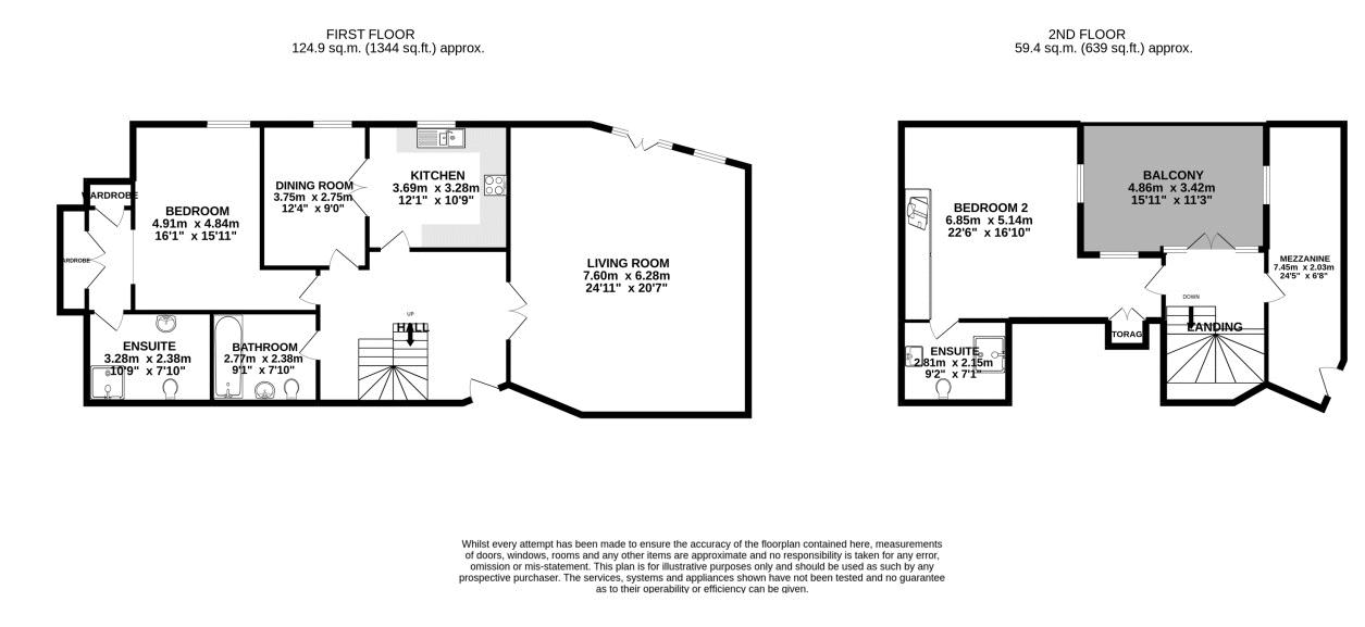
2600 sq ft luxury 2/3 bedroom Duplex apartment in Pinner. furnished with Roche-Bobois and Chaplins, the apartment features two double bedrooms with en-suites, one single room/ dining room and three bathrooms.
Ground Floor
Beautiful entrance hallway which leads to a spacious lounge with built in bar area, a modern kitchen with fitted appliances, a separate dining room (which can be used as a 3rd bedroom) and modern bathroom.The second large bedroom is located on the ground floor, which features built in wardrobes and an ensuite shower room.
First Floor
Master bedroom with built in wardrobes, air- conditioning, a walk in wardrobe and spacious ensuite shower room.A Separate large private home office with his /her desk and cupboards, mezzanine sitting area which overlooks the Living lounge below and access to private roof top terrace.The first floor hallway area also provides access to the private roof top terrace with outdoor sitting, dining furniture and heater.
Parking
Three allocated parking spaces which are located in the secured underground car park
Exterior
The grounds are beautifully maintained with communal gardens and water features.

Agent Statistics (Based on 29 Reviews) :