The UK's Largest Customer Review Website for the Property Industry
The UK's Largest Customer Review Website for the Property Industry
Back to Property Listings
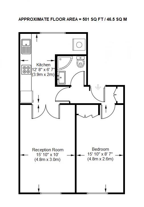
Earls Court Road, Earls Court, SW5 9RQ
Third floor spacious one double bedroom apartment with wood laminate flooring throughout. A good size fitted kitchen/breakfast room with space for table and chairs and with wall and base units, dishwasher, washing machine, fridge freezer and glazed double doors leading to the lounge. Shower room with large shower cubicle and thermostatically controlled valve. Double bedroom with built-in storage. The local Tube is Earls Court, on the District Line.
Unfurnished and available from 30th January 2026.
Virtual Viewing/Tours are shot using a wide angle lens to demonstrate ceiling height and depth. The room proportions will appear larger in the video. It is the applicant/tenants responsibility that they are comfortable with the proportions and that all furniture will fit and by progressing with a tenancy Direct Residential accept no liability.
Notice
All photographs are provided for guidance only and are under strict Copyright of Direct Residential Ltd. Reproduction in any form is not permitted.
Redress scheme provided by: Arla / PropertyMark (M0055374)
Client Money Protection provided by: My Deposits (30000607)
Council Tax
Kensington & Chelsea, Band D
Utilities
Electric: Mains Supply
Gas: Mains Supply
Water: Mains Supply
Sewerage: None
Broadband: None
Telephone: None
Other Items
Heating: Gas Central Heating
Garden/Outside Space: No
Parking: No
Garage: No

This property is marketed by

Direct Residential - Direct Residential Lettings, Epsom, KT17
4.9/5 Rating
(271) reviews
Agent Statistics (Based on 271 Reviews) :