The UK's Largest Customer Review Website for the Property Industry
The UK's Largest Customer Review Website for the Property Industry
Back to Property Listings
Dulverton Close, Wigston
This beautifully presented, fully refurbished, two bedroom semi-detached bungalow is neatly tucked away in a cul-de-sac location on the highly sought after Little Hill estate, being ideally placed for an abundance of local amenities and transport links close by. This lovely property benefits from a good sized plot, two double bedrooms and modern fixtures/fittings throughout. The accommodation briefly comprises: Entrance hall, lounge, dining area, kitchen, two bedrooms and shower room. Outside there are front and rear gardens, offering ample off road parking and detached garage. NO CHAIN!
Details - SUMMARY This beautifully presented, fully refurbished, two bedroom semi-detached bungalow is neatly tucked away in a cul-de-sac location on the highly sought after Little Hill estate, being ideally placed for an abundance of local amenities and transport links close by. This lovely property benefits from a good sized plot, two double bedrooms and modern fixtures/fittings throughout. The accommodation briefly comprises: Entrance hall, lounge, dining area, kitchen, two bedrooms and shower room. Outside there are front and rear gardens, offering ample off road parking and detached garage. NO CHAIN!
ENTRANCE HALL Accessed via a double glazed UPVC front door. Doors off to: Bedrooms and shower room with an opening through to the lounge. Laminate wooden flooring. Radiator. Loft hatch access with drop down ladder and partial boarding to loft area.
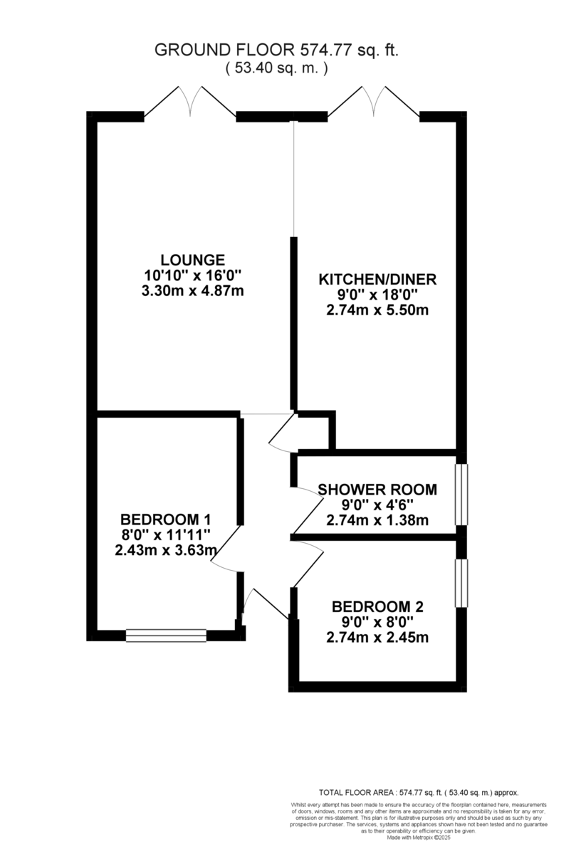
LOUNGE 16' 0" x 10' 10" (4.88m x 3.3m) Having UPVC double glazed 'French' doors out to: Rear garden and an opening through to the: Dining area. Electric feature fireplace with wooden surround. TV and telephone point. Wooden laminate flooring. Wall mounted vertical radiator.
DINING AREA UPVC double glazed 'French' doors out to: Rear garden. Feature pendant lighting over dining table. Tiled flooring. Radiator.
KITCHEN/DINING AREA 18' 0" x 9' 0" (5.49m x 2.74m) The recently fitted modern kitchen has a selection of fitted base and wall units with a slimline laminate worktop over and a 1 1/2 ceramic sink with drainer. There is a freestanding electric 'range' style cooker with extractor over, fully integrated under counter fridge, integrated under counter freezer and a fully integrated washing machine. The kitchen area has a UPVC double glazed window to the side aspect, LED spotlights, tiled splash back and feature tiled flooring.
BEDROOM ONE 11' 11" x 9' 0" (3.63m x 2.74m) UPVC double glazed window to front aspect. Built-in cupboard with clothes hanging rail. TV point. Radiator.
BEDROOM TWO 9' 0" x 8' 0" (2.74m x 2.44m) UPVC double glazed window to side aspect. Radiator.
SHOWER ROOM Having been completely re-fitted with walk-in shower with 'Rainfall' shower attachment, low level WC and wash hand basin over a fitted vanity unit. There is a UPVC double glazed high level window, LED spotlights, extractor, feature wall and floor tiling and a radiator.
OUTSIDE The property is neatly tucked away at the end of a peaceful cul-de-sac, having a large driveway, low maintenance lawned garden and a decorative slated area to the front and a pedestrian gate through to the side and rear garden. The detached single garage has an up and over door, power, light and a pedestrian door into the side garden area. The delightful and extremely private rear garden is sun filled benefitting from a raised paved patio, step down to a decorative stone area, on to the lawn, surrounded by well established and mature planting.
SALES SUMMARY & MATERIAL INFORMATION •Price : £270,000
•Tenure : Freehold
•Length of lease : N/A
•Annual ground rent amount : N/A
•Ground rent review period : N/A
•Annual service charge amount : N/A
•Service charge review period : N/A
•Council tax band : B
• EPC Rating: C
•Shared Ownership : N/A
• Property type: Semi-Detached Bungalow
• Property construction: Brick
• Number and types of room: Please refer to floorplan
• Electricity supply: Mains
• Water supply: Metered
• Sewerage: Public sewer
• Heating: Gas boiler, gas central heating
• Broadband: Fibre broadband
• Mobile signal / coverage: refer to Ofcom mobile coverage checker
• Parking: Garage & Off Road parking on driveway
• Building safety: No known hazards
• Restrictions: N/A
• Rights and easements: No known relevant rights or easements
• Coastal erosion risk: None
• Planning permission: No known planning permissions or proposals for development
• Accessibility/Adaptations: Lateral living
• Coalfield or mining area: No direct impact of any mining activity
THINKING OF SELLING We would be delighted to provide you with a free market appraisal/valuation of your own property. Please contact Phillips George to arrange a convenient appointment on 01162168178.
BUYING TO LET? Phillips George are expert, ARLA qualified letting agents with experience of all kinds of rental property across city and county. Should you need a rental valuation for your new property or on any of your existing portfolio, or simply want some advice on the current rental market, call us now on 01162168178.
DISCLAIMER & IMPORTANT INFORMATION Phillips George Sales & Lettings for themselves and the vendors of this property whose agents they are, give notice that these particulars are not to be relied upon as a statement or representation of fact and do not constitute any part of an offer or a contract. Intending purchasers must satisfy themselves by inspection or otherwise as to the correctness of each and any statements contained in these particulars. The vendors do not make or give and neither do Phillips George Sales & Lettings (nor any person in their employment) have authority to make any representation or warranty whatsoever in relation to the property.
None of the services, systems or appliances listed or shown in this specification have been tested by us and no guarantee as to their operating ability or efficiency is given. All floorplans and dimensions have been provided as a guide for prospective buyers only, and should not be relied on as a true representation.
Current money laundering regulations require us to confirm proof of identity and residency of anyone intending to purchase. We ask for your co-operation in providing the necessary documentation in order to avoid delays in agreeing the sale.

This property is marketed by

Phillips George Estate Agents - Wigston, Leicester, LE18
4.9/5 Rating
(42) reviews
Agent Statistics (Based on 42 Reviews) :