The UK's Largest Customer Review Website for the Property Industry
The UK's Largest Customer Review Website for the Property Industry
Back to Property Listings
Down Avenue, BA2 5QJ
Two bedroom end of terrace house with garden and driveway parking. Located on the south side of Bath and available 14 August unfurnished. No pets or students.
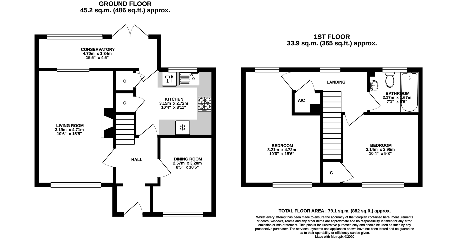
This two bedroom end of terrace house is located on Down Avenue, 1.6 miles from Bath city centre, and 0.1 miles from local shops including a bakery and McColl's convenience store. Set back from the road, the property has driveway parking and a front garden laid to lawn.
The property offers a smart and modern home for a professional couple, single, or small family.
Entering the house you come first to a hallway, with two reception rooms at the front of the property offering flexible options for living room, dining, and home office. The kitchen is at the back of the property and is fully fitted including white goods. A conservatory offers additional space, and leads out to the back garden which is laid with patio and includes a shed.
Upstairs in the house are two bedrooms, which have been fitted with carpets. The bathroom includes shower over bath, WC, and sink with cabinet, as well as a heated towel rail.
The property benefits from gas central heating and double glazing. Offered unfurnished, it is available for 14 August move in.

Agent Statistics (Based on 99 Reviews) :