The UK's Largest Customer Review Website for the Property Industry
The UK's Largest Customer Review Website for the Property Industry
Back to Property Listings
Dorian Drive, Clarkston, G76
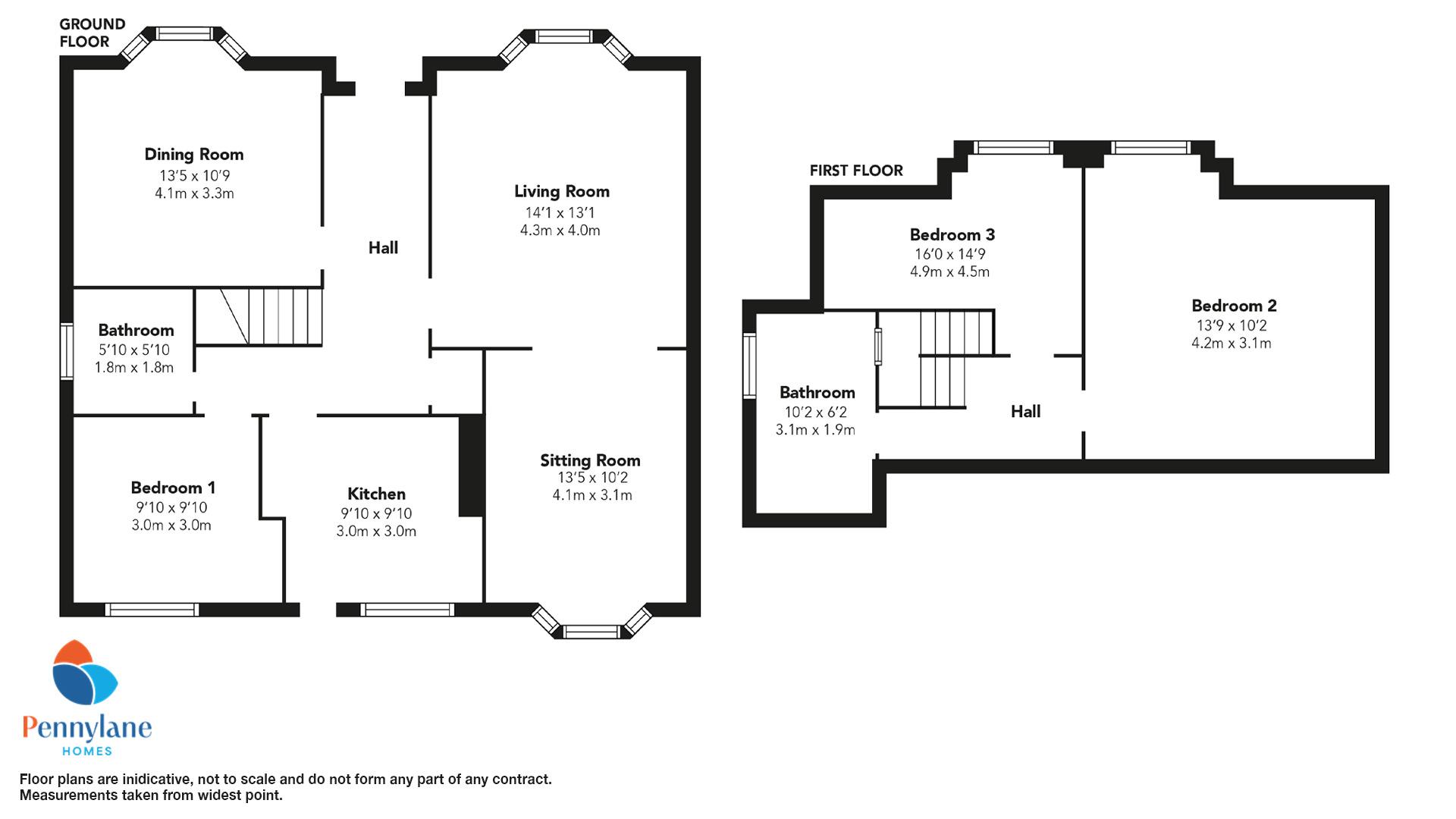
*** CLOSING DATE - THURSDAY 15TH MAY @ 12 NOON *** The property is accessed via a welcoming entrance hallway with stairway to upper level. There is a large open plan living space with pocket doors offering a divide when required for a spacious lounge area and a separate dining room with large dual aspect windows creating a bright and airy space. To the rear, there is a fitted kitchen, requiring a degree of modernisation but offering a spacious area with access to the rear garden. A fantastic double bedroom to the front benefits from a traditional bay window and, being on the ground floor, could be utilised for any purpose. A further double bedroom is quietly situated to the rear and there is a downstairs bathroom with corner shower cubicle.
On the upper level, there is an extensive double bedroom with vaulted ceiling and large window as well as multiple fitted wardrobes offering essential storage. Further storage is available within the upper hallway and there is a small single bedroom to the front. A larger than average family bathroom is located on the upper hallway comprising a three piece suite including bath.
The property benefits from gas central heating and double glazing throughout.
The property occupies an extensive corner plot with wrap around private garden grounds laid mainly to lawn with mature shrubs, hedging and trees, a perfect place for family gatherings. To the rear, there is a detached garage with carport area offering driveway parking.
Clarkston is a well established residential area where all local amenities are available within easy reach as well as fantastic schooling readily available. Williamwood Train Station is a short walk from the property, offering an easy commute to Glasgow City Centre and beyond.
Notice
Please note we have not tested any apparatus, fixtures, fittings, or services. Interested parties must undertake their own investigation into the working order of these items. All measurements are approximate and photographs provided for guidance only.
Council Tax
Renfrewshire Council, Band G
Utilities
Electric: Mains Supply
Gas: Mains Supply
Water: Mains Supply
Sewerage: Mains Supply
Broadband: Unknown
Telephone: Unknown
Other Items
Heating: Gas Central Heating
Garden/Outside Space: Yes
Parking: Yes
Garage: Yes

Agent Statistics (Based on 197 Reviews) :