The UK's Largest Customer Review Website for the Property Industry
The UK's Largest Customer Review Website for the Property Industry
Back to Property Listings
Ditchfield, Reach
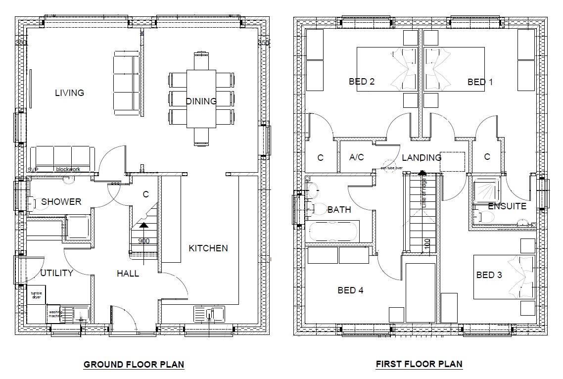
A brand new 4 bedroom individual detached house forming part of an established residential cul-de-sac in a popular village and with superb views to the rear over open farmland. The property is offered with NO CHAIN and benefits from a double aspect living room and dining room both with bi-folding doors, a well equipped new fitted kitchen, separate utility room and a ground floor shower room/WC. Additional features include 4 bedrooms with 1 ensuite, ground floor air source under floor heating and a large garden.
Entrance Hall - with stairs leading to the first floor, tiled flooring with under floor heating.
Utility Room - 2.25 x 1.95 (7'4" x 6'4") - with sink and drainer, fitted base and wall mounted cupboards, tiled flooring with under floor heating, half glazed door to outside.
Shower Room/Wc - with shower cubicle, low level WC, hand basin.
Living Room - 4.43 x 3.50 (14'6" x 11'5") - a double aspect room with under floor heating, bi-folding doors leading to the rear garden.
Kitchen - 4.55 x 2.96 (14'11" x 9'8") - with a range of modern base and wall mounted units, worktops and upstands, inset sink, integrated eye level oven and grill, ceramic hob and extractor hood over, full height integrated fridge and freezer, integrated dishwasher, tiled flooring with under floor heating, opening leading to;
Dining Area - 4.44 x 3.50 (14'6" x 11'5") - a double aspect room with a pair of doors leading into the living room, tiled flooring with under floor heating, bi-folding doors leading to the rear garden.
First Floor -
Landing -
Bedroom 1 - 3.49 x 3.35 (4.44 max) (11'5" x 10'11" (14'6" max) -
Enuite Shower Room - with a tiled shower cubicle, hand basin, low level WC.
Bedroom 2 - 3.51 x 3.36 (11'6" x 11'0") - with a built-in cupboard.
Bedroom 3 - 2.97 x 2.87 (4.55 max) (9'8" x 9'4" (14'11" max)) -
Bedroom 4 - 4.04 x 2.35 (13'3" x 7'8") -
Bathroom - with a bath, hand basin, low level WC.
Outside - To the front of the property is a large open plan block paved driveway with a planting area to the side and a covered porch canopy over the front door. A side access via a paved pathway leads to a large rear garden with a raised paved patio area and aspect to the rear over open farmland.
Sales Agents Notes - Tenure - Freehold
Council Tax Band - New Build TBC
Property Type - Detached House
Property Construction - Traditional Brick
Number & Types of Room - Please refer to the floorplan
Square Footage -
Parking - Driveway
Utilities / Services
Electric Supply - Mains
Water Supply - Mains
Sewerage - Mains
Heating sources - Air Source Heat Pump, under floor heating.
Broadband Connected - No
Broadband Type - N/A
Mobile Signal/Coverage - N/A
Restrictions - We have been made aware this property does contain restrictive covenants - please refer to the land registry title for more information.
Building Safety - The vendor has made us aware that, to the best of their knowledge, there is no asbestos or unsafe cladding present at the property and to the best of their knowledge, the property is not as risk of collapse.
Accessibility / Adaptations - The vendor has made us aware that, to the best of their knowledge, there has been no adaptations made to the property for accessibility requirements during their ownership.
Stamp Duty thresholds have and are changing imminently. Please familiarise yourself with the current thresholds and timescales before moving forward with any transactions. More details can be found at: https://www.gov.uk/stamp-duty-land-tax.

Agent Statistics (Based on 1313 Reviews) :