The UK's Largest Customer Review Website for the Property Industry
The UK's Largest Customer Review Website for the Property Industry
Back to Property Listings
Derby Road, Caversham
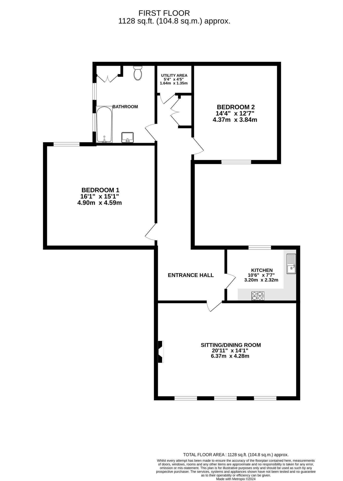
Masons are proud to offer this spacious two bedroom first floor apartment set within this beautiful Victorian property and located on a sought after tree lined private residential road in Caversham and close to Caversham & Reading centres, along with Reading mainline station. The property benefits from a 20ft sitting/dining room with feature fireplace, a 10ft kitchen, a 16ft master bedroom and a 14ft bedroom two. Further benefits include a large bathroom, a utility cupboard, off road parking, a garage and a fabulous well tended communal garden. Viewing recommended. SHARE OF FREEHOLD.
Front door to communal entrance hall, which has the stairs to the first floor and a door giving access to apartment 2.
Entrance hall has built-in cupboard and doors to:
Sitting/dining room: 20`11" x 14`1" front aspect windows, with period feature fireplace, space for sofa and table and chairs.
Kitchen: 10`6" x 7`7" side aspect window, a range of eye and base level units with roll edge tops and tiled surround, sink and drainer, integrated dishwasher, oven, hob and extractor and space for additional appliances.
Master bedroom: 16`1" x 15`1" side aspect window.
Bedroom 2: 14`4" x 12`7" front aspect window.
Bathroom: twin side aspect window, a panel enclosed bath with shower over, low level wc and wash basin.
Utility cupboard: space for appliances with plumbing.
Outside: this property comes with an off road parking space and a garage. There is a good size and beautifully kept communal gardens, which extend around the property and offer a variety of plants, shrubs, trees and flowers. Viewing highly recommended.
Notice
Whilst every care has been taken in the preparation of these particulars, and they are believed to be correct, they are not warranted and intending purchasers/lessees should satisfy themselves as to the correctness of the information given.Please note we have not tested any apparatus, fixtures, fittings, or services. Interested parties must undertake their own investigation into the working order of these items. All measurements are approximate and photographs provided for guidance only.
Council Tax
Reading Borough Council, Band C
Utilities
Electric: Mains Supply
Gas: None
Water: Mains Supply
Sewerage: None
Broadband: None
Telephone: None
Other Items
Heating: Gas Central Heating
Garden/Outside Space: Yes
Parking: Yes
Garage: Yes

Agent Statistics (Based on 70 Reviews) :