The UK's Largest Customer Review Website for the Property Industry
The UK's Largest Customer Review Website for the Property Industry
Back to Property Listings
Deanston Drive, Glasgow, G41
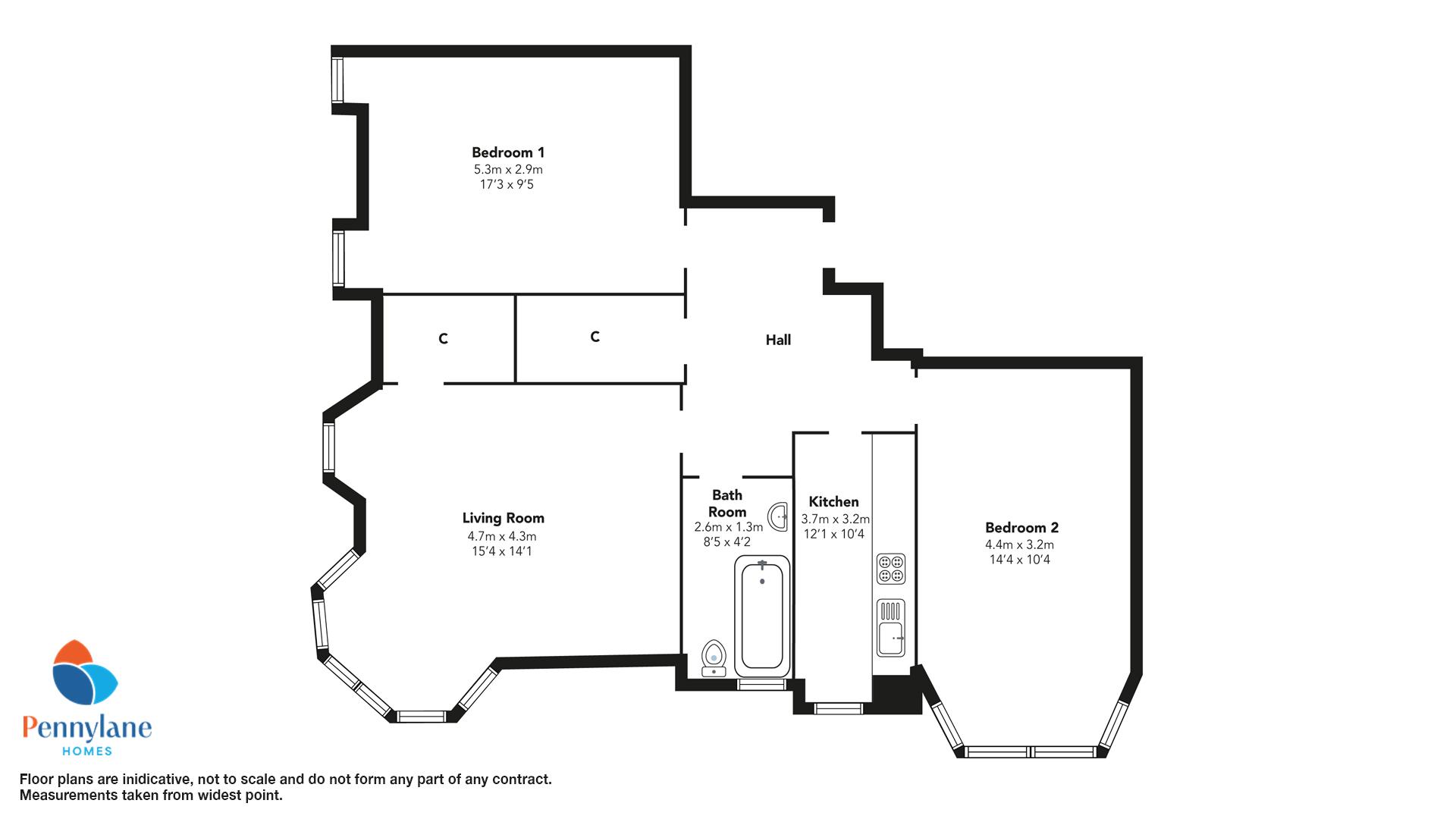
The property is accessed via a welcoming entrance hallway opening into all rooms. The lounge, as with the rest of the property, benefits from traditional high ceilings and a beautiful corner bay window offering a dual aspect outlook and creating a bright and airy space. The galley style kitchen comprises a combination of wall and floor mounted units with integrated oven and four burner gas hob. There are two spacious double bedrooms with the master bedroom currently utilised as a dining room and benefiting from two large windows. The second bedroom has a further bay window and is also double in size. The galley style bathroom comprises a modern three piece white suite with electric shower over the bath.
The property has fantastic storage throughout with several large cupboards and also benefits from gas central heating and double glazing throughout as well as secure door entry.
Externally there are communal rear gardens.
Deanston Drive is a popular area with many residential and commercial properties. All local amenities are available within easy reach and Shawlands Cross is a short walk from the property where all manner of retail and leisure opportuities are available.
what3words /// speech.farmer.gender
Notice
Please note we have not tested any apparatus, fixtures, fittings, or services. Interested parties must undertake their own investigation into the working order of these items. All measurements are approximate and photographs provided for guidance only.
Council Tax
Renfrewshire Council, Band C
Utilities
Electric: Mains Supply
Gas: Mains Supply
Water: Mains Supply
Sewerage: Mains Supply
Broadband: Unknown
Telephone: Unknown
Other Items
Heating: Gas Central Heating
Garden/Outside Space: Yes
Parking: No
Garage: No

Agent Statistics (Based on 197 Reviews) :